




Book your tour. Save an average of $18,473. We'll handle the rest.
- Confirmed tours
- Get matched & compare top deals
- Expert help, no pressure
- No added fees
Estimated value based on Jome data, T&C apply
Why tour with Jome?
- No pressure toursTour at your own pace with no sales pressure
- Expert guidanceGet insights from our home buying experts
- Exclusive accessSee homes and deals not available elsewhere
Jome is featured in
- Single-Family
- Under construction
- $163.19/sqft
- $108/quarterly HOA
Home description
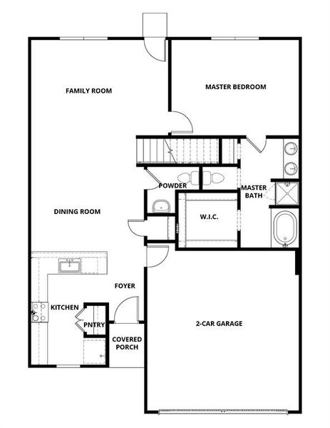
The Wilder is a spacious two-story home with five bedrooms, two-and-a-half bathrooms, and open-concept living areas designed for both comfort and connection. A private downstairs master suite offers a relaxing retreat, while each secondary bedroom includes its own walk-in closet for added storage. The upstairs loft provides a flexible space that can easily transform into a game room, home office, or play area to suit your family’s needs. Ideal for entertaining, the Wilder’s layout seamlessly connects the kitchen, dining area and family room, with even more space to host in the backyard or loft. With included upgrades, this home delivers the perfect blend of style, functionality, and room to grow.
LGI Homes, MLS 21112847
May also be listed on the LGI Homes website
Information last verified by Jome: Today at 1:36 AM (December 5, 2025)
Home highlights
Book your tour. Save an average of $18,473. We'll handle the rest.
We collect exclusive builder offers, book your tours, and support you from start to housewarming.
- Confirmed tours
- Get matched & compare top deals
- Expert help, no pressure
- No added fees
Estimated value based on Jome data, T&C apply
Home details
- Property status:
- Under construction
- Lot size (acres):
- 0.13
- Size:
- 2,616 sqft
- Stories:
- 2
- Beds:
- 5
- Baths:
- 2
- Half baths:
- 1
- Garage spaces:
- 2
- Fence:
- Wood Fence
Construction details
- Builder Name:
- LGI Homes
- Year Built:
- 2025
- Roof:
- Composition Roofing
Home features & finishes
- Cooling:
- Ceiling Fan(s)Central Air
- Flooring:
- Vinyl FlooringCarpet Flooring
- Foundation Details:
- Slab
- Garage/Parking:
- Door OpenerGarageFront Entry Garage/ParkingAttached Garage
- Home amenities:
- Home Accessibility Features
- Interior Features:
- Walk-In Closet
- Kitchen:
- DishwasherMicrowave OvenOvenRefrigeratorDisposalGas CooktopGas OvenKitchen Range
- Property amenities:
- SidewalkBackyard
- Rooms:
- Open Concept Floorplan
- Security system:
- Smoke DetectorCarbon Monoxide Detector
Utility information
- Heating:
- Water Heater, Gas Heating, Tankless water heater
- Utilities:
- City Water System, High Speed Internet Access, Cable TV

Community details
Vista West
by LGI Homes, Fort Worth, TX
- 25 homes
- 12 plans
- 1,175 - 2,616 sqft
View Vista West details
More homes in Vista West
Floor plans in Vista West
About the builder - LGI Homes
Neighborhood
Home address
- City:
- Fort Worth
- County:
- Tarrant
- Zip Code:
- 76108
Schools in White Settlement Independent School District
GreatSchools’ Summary Rating calculation is based on 4 of the school’s themed ratings, including test scores, student/academic progress, college readiness, and equity. This information should only be used as a reference. Jome is not affiliated with GreatSchools and does not endorse or guarantee this information. Please reach out to schools directly to verify all information and enrollment eligibility. Data provided by GreatSchools.org © 2025
Places of interest
Getting around
Air quality
Noise level
A Soundscore™ rating is a number between 50 (very loud) and 100 (very quiet) that tells you how loud a location is due to environmental noise.
Natural hazards risk
Climate hazards can impact homes and communities, with risks varying by location. These scores reflect the potential impact of natural disasters and climate-related risks on Tarrant County
Provided by FEMA

Considering this home?
Our expert will guide your tour, in-person or virtual
Need more information?
Text or call (888) 486-2818
Financials
Estimated monthly payment
Similar homes nearby
Recently added communities in this area
Nearby communities in Fort Worth
New homes in nearby cities
More New Homes in Fort Worth, TX
LGI Homes, MLS 21112847
IDX information is provided exclusively for personal, non-commercial use, and may not be used for any purpose other than to identify prospective properties consumers may be interested in purchasing. You may not reproduce or redistribute this data, it is for viewing purposes only. This data is deemed reliable, but is not guaranteed accurate by the MLS or NTREIS.
Read moreLast checked Dec 5, 4:00 am
- Home
- New homes
- Texas
- Dallas-Fort Worth Area
- Tarrant County
- Fort Worth
- Vista West
- 900 Sedona Dr, Fort Worth, TX 76108





























