








Book your tour. Save an average of $18,473. We'll handle the rest.
We collect exclusive builder offers, book your tours, and support you from start to housewarming.
- Confirmed tours
- Get matched & compare top deals
- Expert help, no pressure
- No added fees
Estimated value based on Jome data, T&C apply







































Why tour with Jome?
- No pressure toursTour at your own pace with no sales pressure
- Expert guidanceGet insights from our home buying experts
- Exclusive accessSee homes and deals not available elsewhere
Jome is featured in
- Single-Family
- $205.11/sqft
- $2,488/annual HOA
- East facing
Home description
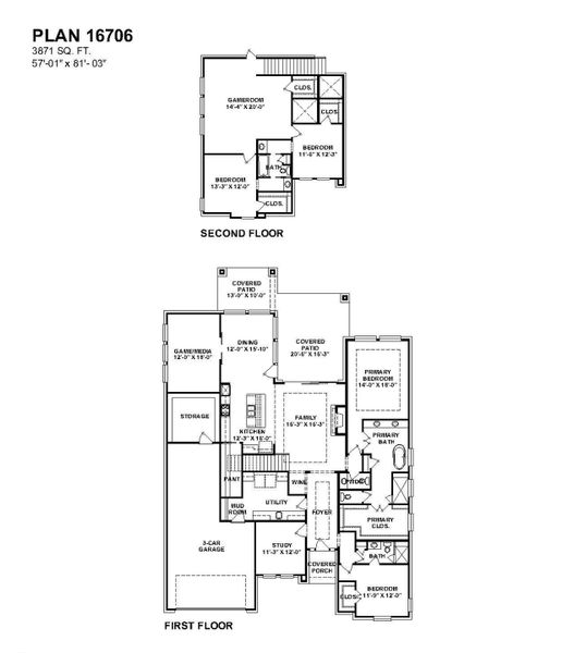
NEW CONSTRUCTION BY PARTNERS IN BUILDING. Enjoy quiet serenity of a gated, country club community in this custom home offering refined comfort, thoughtful functionality, & timeless style all within the exclusive gates of The Reserve at Weston Lakes. Four bedrooms, 3 bathrooms, & multiple flexible living areas for everyday living & entertaining. Family room seamlessly flows into dining area & gourmet kitchen, featuring large island, walk-in pantry, & wine storage. Primary suite's a private retreat with a luxurious bath & walk-in closet. Secondary bedroom adjacent full bath ideal for guests or multigenerational living. Other highlights include private study, mud room, & a game/media room for entertainment. Upstairs, 2 bedrooms with access to game room for gatherings. Outdoor living shines with 2 covered patios, ideal setting for dining al fresco or enjoying peaceful evenings. New Lamar CISD schools in the area, low taxes, several community parks & country club amenities.
Partners In Building, MLS 57282227
May also be listed on the Partners in Building website
Information last verified by Jome: Today at 2:30 AM (April 1, 2026)
Book your tour. Save an average of $18,473. We'll handle the rest.
We collect exclusive builder offers, book your tours, and support you from start to housewarming.
- Confirmed tours
- Get matched & compare top deals
- Expert help, no pressure
- No added fees
Estimated value based on Jome data, T&C apply
Home details
- Property status:
- Pending/Under contract
- Lot size (acres):
- 0.12
- Size:
- 3,871 sqft
- Stories:
- 2
- Beds:
- 4
- Baths:
- 3
- Half baths:
- 1
- Garage spaces:
- 3
- Facing direction:
- East
Construction details
- Builder Name:
- Partners in Building
- Year Built:
- 2026
- Roof:
- Metal Roofing, Composition Roofing
Home features & finishes
- Appliances:
- Sprinkler System
- Construction Materials:
- Brick
- Cooling:
- Ceiling Fan(s)
- Flooring:
- Vinyl FlooringCarpet FlooringTile Flooring
- Foundation Details:
- Slab
- Garage/Parking:
- GarageAttached Garage
- Home amenities:
- ENERGY STAR CertifiedGreen Construction
- Interior Features:
- Ceiling-HighWired For SecurityWalk-In ClosetFoyerPantryWalk-In Pantry
- Kitchen:
- DishwasherMicrowave OvenOvenDisposalGas CooktopKitchen IslandDouble Oven
- Laundry facilities:
- DryerWasherUtility/Laundry Room
- Lighting:
- Lighting
- Property amenities:
- Gas Log FireplaceBackyardCabinetsFireplace
- Rooms:
- KitchenFamily Room

Get a consultation with our New Homes Expert
- See how your home builds wealth
- Plan your home-buying roadmap
- Discover hidden gems
Utility information
- Heating:
- Gas Heating
- Utilities:
- HVAC

Community details
Weston Lakes
by Partners in Building, Fulshear, TX
View Weston Lakes details
About the builder - Partners in Building
Neighborhood
Home address
Schools in Lamar Consolidated Independent School District
- Grades PK-05Privatesimonton christian academy3.3 mi9703 fm 1489na
- Grades M-MPublicviola gilmore randle elementary5.3 mi5902 sycamore ranch lnna
GreatSchools’ Summary Rating calculation is based on 4 of the school’s themed ratings, including test scores, student/academic progress, college readiness, and equity. This information should only be used as a reference. Jome is not affiliated with GreatSchools and does not endorse or guarantee this information. Please reach out to schools directly to verify all information and enrollment eligibility. Data provided by GreatSchools.org © 2025
Places of interest
Getting around
Air quality

Considering this home?
Our expert will guide your tour, in-person or virtual
Need more information?
Text or call (888) 545-5198
Financials
Estimated monthly payment
Let us help you find your dream home
How many bedrooms are you looking for?
Similar homes nearby
Recently added communities in this area
Nearby communities in Fulshear
New homes in nearby cities
More New Homes in Fulshear, TX
Partners In Building, MLS 57282227
Copyright © 2025, Houston Realtors Information Service, Inc. The information provided is exclusively for consumers’ personal, non-commercial use, and may not be used for any purpose other than to identify prospective properties consumers may be interested in purchasing. Information is deemed reliable but not guaranteed. All information provided should be independently verified.
Read moreLast checked Apr 1, 8:50 am
- Jome
- New homes search
- Texas
- Greater Houston Area
- Fort Bend County
- Fulshear
- Weston Lakes
- 3311 Winterwood Wy, Fulshear, TX 77441
























