













Book your tour. Save an average of $18,473. We'll handle the rest.
We collect exclusive builder offers, book your tours, and support you from start to housewarming.
- Confirmed tours
- Get matched & compare top deals
- Expert help, no pressure
- No added fees
Estimated value based on Jome data, T&C apply
Why tour with Jome?
- No pressure toursTour at your own pace with no sales pressure
- Expert guidanceGet insights from our home buying experts
- Exclusive accessSee homes and deals not available elsewhere
Jome is featured in
- Single-Family
- $212.09/sqft
- $1,400/annual HOA
- North facing
Home description
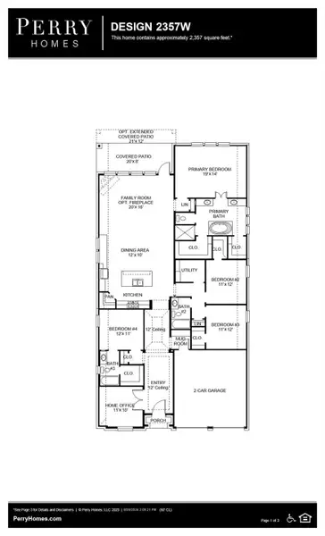
READY FOR MOVE IN!! Extended entry highlights 12-foot coffered ceiling. Home office with French doors set at entry. Dining area flows into open family room with a wood mantel fireplace and wall of windows. Open kitchen offers extra counter space, corner walk-in pantry, 5-burner gas cooktop and generous island with built-in seating space. Spacious primary suite. Double doors lead to primary bath with dual vanities, garden tub, separate glass-enclosed shower and two walk-in closets. Private guest suite with full bathroom and walk-in closet. All bedrooms include walk-in closets. Extended covered backyard patio. Mud room off two-car garage.
Perry Homes Realty, LLC, MLS 71791885
May also be listed on the Perry Homes website
Information last verified by Jome: Today at 2:34 AM (March 4, 2026)
Book your tour. Save an average of $18,473. We'll handle the rest.
We collect exclusive builder offers, book your tours, and support you from start to housewarming.
- Confirmed tours
- Get matched & compare top deals
- Expert help, no pressure
- No added fees
Estimated value based on Jome data, T&C apply
Home details
- Property status:
- Pending/Under contract
- Collection:
- Legacy 50'
- Lot size (acres):
- 0.14
- Size:
- 2,357 sqft
- Stories:
- 1
- Beds:
- 4
- Baths:
- 3
- Garage spaces:
- 2
- Facing direction:
- North
Construction details
- Builder Name:
- Perry Homes
- Completion Date:
- January, 2026
- Year Built:
- 2025
- Roof:
- Composition Roofing
Home features & finishes
- Appliances:
- Sprinkler System
- Construction Materials:
- BrickStone
- Flooring:
- Carpet FlooringTile Flooring
- Foundation Details:
- Slab
- Garage/Parking:
- GarageAttached Garage
- Interior Features:
- Ceiling-HighWired For SecurityWalk-In ClosetFoyerPantry
- Kitchen:
- DishwasherMicrowave OvenOvenDisposalGas CooktopKitchen IslandGas Oven
- Laundry facilities:
- DryerUtility/Laundry Room
- Property amenities:
- BackyardPatioFireplacePorch
- Rooms:
- Primary Bedroom On MainKitchenOffice/StudyMudroomDining RoomFamily RoomOpen Concept FloorplanPrimary Bedroom Downstairs

Get a consultation with our New Homes Expert
- See how your home builds wealth
- Plan your home-buying roadmap
- Discover hidden gems
Utility information
- Heating:
- Gas Heating

Community details
Legacy at Legacy
by Perry Homes, League City, TX
- 7 homes
- 22 plans
- 2,127 - 3,241 sqft
View Legacy details
More homes in Legacy
- Home at address 6726 Mountain Brook Wy, League City, TX 77573

2357W
Legacy 50'
$499,900
- 4 bd
- 3 ba
- 2,357 sqft
6726 Mountain Brook Wy, League City, TX 77573
- Home at address 729 Eagle Ford Ln, League City, TX 77573

Home
$509,900
- 4 bd
- 3 ba
- 2,357 sqft
729 Eagle Ford Ln, League City, TX 77573
- Home at address 729 Eagle Ford Ln, League City, TX 77546

2357W
Legacy 50'
$509,900
- 4 bd
- 3 ba
- 2,357 sqft
729 Eagle Ford Ln, League City, TX 77546
- Home at address 6721 Hillside View Ln, League City, TX 77573

2797W
Legacy 50'
$549,900
- 4 bd
- 3 ba
- 2,797 sqft
6721 Hillside View Ln, League City, TX 77573
- Home at address 6701 Hillside View Ln, League City, TX 77573

2694W
Legacy 50'
$559,900
- 4 bd
- 3.5 ba
- 2,694 sqft
6701 Hillside View Ln, League City, TX 77573
- Home at address 6725 Hillside View Ln, League City, TX 77573

2694W
Legacy 50'
$624,900
- 4 bd
- 3.5 ba
- 2,694 sqft
6725 Hillside View Ln, League City, TX 77573
Floor plans in Legacy
About the builder - Perry Homes

- 384communities on Jome
- 1,396homes on Jome
Neighborhood
Home address
- City:
- League City
- County:
- Galveston
- Zip Code:
- 77573
Schools in Clear Creek Independent School District
GreatSchools’ Summary Rating calculation is based on 4 of the school’s themed ratings, including test scores, student/academic progress, college readiness, and equity. This information should only be used as a reference. Jome is not affiliated with GreatSchools and does not endorse or guarantee this information. Please reach out to schools directly to verify all information and enrollment eligibility. Data provided by GreatSchools.org © 2025
Places of interest
Getting around
Air quality

Considering this home?
Our expert will guide your tour, in-person or virtual
Need more information?
Text or call (888) 488-9243
Financials
Estimated monthly payment
Let us help you find your dream home
How many bedrooms are you looking for?
Similar homes nearby
Recently added communities in this area
Nearby communities in League City
New homes in nearby cities
More New Homes in League City, TX
Perry Homes Realty, LLC, MLS 71791885
Copyright © 2025, Houston Realtors Information Service, Inc. The information provided is exclusively for consumers’ personal, non-commercial use, and may not be used for any purpose other than to identify prospective properties consumers may be interested in purchasing. Information is deemed reliable but not guaranteed. All information provided should be independently verified.
Read moreLast checked Mar 4, 2:50 am
- Jome
- New homes search
- Texas
- Greater Houston Area
- Galveston County
- League City
- Legacy
- Legacy 50'
- 6717 Hillside View Ln, League City, TX 77573
































