














Book your tour. Save an average of $18,473. We'll handle the rest.
- Confirmed tours
- Get matched & compare top deals
- Expert help, no pressure
- No added fees
Estimated value based on Jome data, T&C apply
















- 3 bd
- 2.5 ba
- 2,528 sqft
10714 Midnight Wy, Richmond, TX 77469
Why tour with Jome?
- No pressure toursTour at your own pace with no sales pressure
- Expert guidanceGet insights from our home buying experts
- Exclusive accessSee homes and deals not available elsewhere
Jome is featured in
- Single-Family
- Quick move-in
- $170.29/sqft
- $1,400/annual HOA
Home description
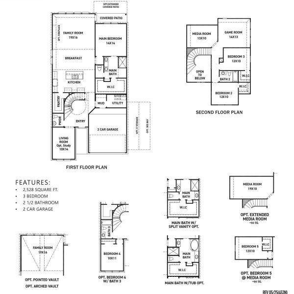
The Newmark Homes Newton floor plan in the Portrait Series features 2,528 sqft, 3 bedrooms, 2.5 bathrooms, and a 2-car garage. This two-story floor plan offers an enlarged main shower option, study option, 2 kitchen upgrade options, main bedroom bay option, fireplace options, family room vault options, and covered patio options. The second floor offers a second main bedroom option. Discover Austin Point, a unique new home community spanning 4,700 acres in the heart of Fort Bend County, less than 30 minutes from the Houston metro.
RE/MAX Fine Properties, MLS 30287705
May also be listed on the Newmark Homes website
Information last verified by Jome: Today at 2:33 AM (January 16, 2026)
Book your tour. Save an average of $18,473. We'll handle the rest.
We collect exclusive builder offers, book your tours, and support you from start to housewarming.
- Confirmed tours
- Get matched & compare top deals
- Expert help, no pressure
- No added fees
Estimated value based on Jome data, T&C apply
Home details
- Property status:
- Move-in ready
- Size:
- 2,528 sqft
- Stories:
- 2
- Beds:
- 3
- Baths:
- 2
- Half baths:
- 1
- Garage spaces:
- 2
- Facing direction:
- Northeast
Construction details
- Builder Name:
- Newmark Homes
- Year Built:
- 2025
- Roof:
- Composition Roofing
Home features & finishes
- Appliances:
- Sprinkler System
- Construction Materials:
- Brick
- Flooring:
- Carpet FlooringTile Flooring
- Foundation Details:
- Slab
- Garage/Parking:
- GarageAttached Garage
- Home amenities:
- Green Construction
- Interior Features:
- Ceiling-HighWalk-In ClosetPantry
- Kitchen:
- DishwasherMicrowave OvenDisposalGas CooktopKitchen Island
- Laundry facilities:
- DryerWasherUtility/Laundry Room
- Property amenities:
- BackyardCovered PatioPatioFireplace
- Rooms:
- Primary Bedroom On MainKitchenPowder RoomGame RoomMedia RoomMudroomFamily RoomLiving RoomBreakfast AreaOpen Concept FloorplanPrimary Bedroom Downstairs

Get a consultation with our New Homes Expert
- See how your home builds wealth
- Plan your home-buying roadmap
- Discover hidden gems
Utility information
- Heating:
- Gas Heating
- Utilities:
- HVAC

Community details
Austin Point at Austin Point
by Newmark Homes, Richmond, TX
- 8 homes
- 10 plans
- 2,134 - 2,776 sqft
View Austin Point details
More homes in Austin Point
- Home at address 5014 Pegasus Wy, Richmond, TX 77469

Rockwall
$410,500
- 4 bd
- 3 ba
- 2,300 sqft
5014 Pegasus Wy, Richmond, TX 77469
- Home at address 5007 N Star Trl, Richmond, TX 77469

Montague
$415,250
- 4 bd
- 3 ba
- 2,259 sqft
5007 N Star Trl, Richmond, TX 77469
- Home at address 5010 Pegasus Wy, Richmond, TX 77469

Armstrong
$415,500
- 4 bd
- 3 ba
- 2,649 sqft
5010 Pegasus Wy, Richmond, TX 77469
- Home at address 5003 N Star Trl, Richmond, TX 77469

Presidio
$453,250
- 4 bd
- 3.5 ba
- 2,556 sqft
5003 N Star Trl, Richmond, TX 77469
- Home at address 5023 N Star Trl, Richmond, TX 77469

Presidio
$455,500
- 4 bd
- 3.5 ba
- 2,556 sqft
5023 N Star Trl, Richmond, TX 77469
- Home at address 10718 Midnight Ct, Richmond, TX 77469

Presidio
$480,000
- 5 bd
- 3 ba
- 2,556 sqft
10718 Midnight Ct, Richmond, TX 77469
Floor plans in Austin Point
About the builder - Newmark Homes
Neighborhood
Home address
Schools in Lamar Consolidated Independent School District
- Grades M-MPublicsteenbergen middle3.3 mi4113 fm 2977 rdna
- Grades PK-05Publicadriane mathews gray elementary3.9 mi5055 sunrise meadow lnna
GreatSchools’ Summary Rating calculation is based on 4 of the school’s themed ratings, including test scores, student/academic progress, college readiness, and equity. This information should only be used as a reference. Jome is not affiliated with GreatSchools and does not endorse or guarantee this information. Please reach out to schools directly to verify all information and enrollment eligibility. Data provided by GreatSchools.org © 2025
Places of interest
Getting around
Air quality

Considering this home?
Our expert will guide your tour, in-person or virtual
Need more information?
Text or call (888) 486-2818
Financials
Estimated monthly payment
Let us help you find your dream home
How many bedrooms are you looking for?
Similar homes nearby
Recently added communities in this area
Nearby communities in Richmond
New homes in nearby cities
More New Homes in Richmond, TX
RE/MAX Fine Properties, MLS 30287705
Copyright © 2025, Houston Realtors Information Service, Inc. The information provided is exclusively for consumers’ personal, non-commercial use, and may not be used for any purpose other than to identify prospective properties consumers may be interested in purchasing. Information is deemed reliable but not guaranteed. All information provided should be independently verified.
Read moreLast checked Jan 16, 2:50 pm
- Jome
- New homes search
- Texas
- Greater Houston Area
- Fort Bend County
- Richmond
- Austin Point
- 10714 Midnight Wy, Richmond, TX 77469


































