














Book your tour. Save an average of $18,473. We'll handle the rest.
- Confirmed tours
- Get matched & compare top deals
- Expert help, no pressure
- No added fees
Estimated value based on Jome data, T&C apply

















Why tour with Jome?
- No pressure toursTour at your own pace with no sales pressure
- Expert guidanceGet insights from our home buying experts
- Exclusive accessSee homes and deals not available elsewhere
Jome is featured in
- Single-Family
- Quick move-in
- $176.94/sqft
- $110/monthly HOA
Home description
Welcome to Erin Park, a gated community featuring 23 beautifully designed homes, perfectly positioned just minutes from The Heights. Modern two-story and three-story homes are available, with four different floor plans to choose from. Homes come with a refrigerator and window blinds throughout. Here, your pets can enjoy the community dog park. You're just a short drive from the lively White Oak Music Hall, the social hotspot Woodlands Social, and the vibrant streets of Downtown Houston. The upcoming White Oak District, a 20,000-square-foot mixed-use commercial development, promises to enhance the neighborhood with additional dining, shopping, and entertainment options right down the street. Schedule your showing today!
The Sears Group, MLS 88966056
May also be listed on the CitySide Homes website
Information last verified by Jome: Today at 2:33 AM (January 18, 2026)
Home highlights
Seventeen‑block Houston arts zone hosting opera, ballet, theater & dining steps from downtown living.
Book your tour. Save an average of $18,473. We'll handle the rest.
We collect exclusive builder offers, book your tours, and support you from start to housewarming.
- Confirmed tours
- Get matched & compare top deals
- Expert help, no pressure
- No added fees
Estimated value based on Jome data, T&C apply
Home details
- Property status:
- Move-in ready
- Neighborhood:
- Northside Village
- Lot size (acres):
- 0.04
- Size:
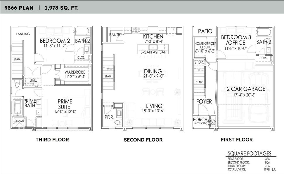
- 1,978 sqft
- Stories:
- 3+
- Beds:
- 3
- Baths:
- 3
- Half baths:
- 1
- Garage spaces:
- 2
Construction details
- Builder Name:
- CitySide Homes
- Year Built:
- 2025
- Roof:
- Composition Roofing
Home features & finishes
- Appliances:
- Sprinkler System
- Flooring:
- Vinyl FlooringCarpet FlooringTile Flooring
- Foundation Details:
- Slab
- Garage/Parking:
- Door OpenerGarageAttached Garage
- Home amenities:
- Green Construction
- Interior Features:
- Ceiling-HighWired For SecurityWalk-In ClosetFoyerPantryBreakfast BarWalk-In PantryStaircasesWindow Coverings
- Kitchen:
- DishwasherMicrowave OvenOvenRefrigeratorDisposalGas CooktopKitchen IslandGas OvenKitchen Range
- Laundry facilities:
- DryerWasher
- Lighting:
- Lighting
- Property amenities:
- BarBackyard
- Rooms:
- Kitchen

Get a consultation with our New Homes Expert
- See how your home builds wealth
- Plan your home-buying roadmap
- Discover hidden gems
Utility information
- Heating:
- Zoned Heating, Water Heater, Gas Heating
- Utilities:
- HVAC

Community details
Erin Park
by CitySide Homes, Houston, TX
- 3 homes
- 3 plans
- 1,396 - 1,978 sqft
View Erin Park details
Community amenities
- Energy Efficient
More homes in Erin Park
- Home at address 1013 Erin St, Unit S, Houston, TX 77009

9366
$339,990
- 3 bd
- 3.5 ba
- 1,978 sqft
1013 Erin St, Unit S, Houston, TX 77009
- Home at address 1013 Erin St, Unit U, Houston, TX 77009

9289
$349,990
- 3 bd
- 3.5 ba
- 1,978 sqft
1013 Erin St, Unit U, Houston, TX 77009
Floor plans in Erin Park
About the builder - CitySide Homes
Neighborhood
Home address
- Neighborhood:
- Northside Village
- City:
- Houston
Schools in Houston Independent School District
GreatSchools’ Summary Rating calculation is based on 4 of the school’s themed ratings, including test scores, student/academic progress, college readiness, and equity. This information should only be used as a reference. Jome is not affiliated with GreatSchools and does not endorse or guarantee this information. Please reach out to schools directly to verify all information and enrollment eligibility. Data provided by GreatSchools.org © 2025
Places of interest
Getting around
7 nearby routes: 6 bus, 1 rail, 0 otherAir quality
Noise level
A Soundscore™ rating is a number between 50 (very loud) and 100 (very quiet) that tells you how loud a location is due to environmental noise.

Considering this home?
Our expert will guide your tour, in-person or virtual
Need more information?
Text or call (888) 486-2818
Financials
Estimated monthly payment
Let us help you find your dream home
How many bedrooms are you looking for?
Similar homes nearby
Recently added communities in this area
Nearby communities in Houston
New homes in nearby cities
More New Homes in Houston, TX
The Sears Group, MLS 88966056
Copyright © 2025, Houston Realtors Information Service, Inc. The information provided is exclusively for consumers’ personal, non-commercial use, and may not be used for any purpose other than to identify prospective properties consumers may be interested in purchasing. Information is deemed reliable but not guaranteed. All information provided should be independently verified.
Read moreLast checked Jan 18, 8:50 am
- Jome
- New homes search
- Texas
- Greater Houston Area
- Harris County
- Houston
- Erin Park
- 1013 Erin St, Unit V, Houston, TX 77009




























