








Book your tour. Save an average of $18,473. We'll handle the rest.
We collect exclusive builder offers, book your tours, and support you from start to housewarming.
- Confirmed tours
- Get matched & compare top deals
- Expert help, no pressure
- No added fees
Estimated value based on Jome data, T&C apply
































Why tour with Jome?
- No pressure toursTour at your own pace with no sales pressure
- Expert guidanceGet insights from our home buying experts
- Exclusive accessSee homes and deals not available elsewhere
Jome is featured in
- Single-Family
- Quick move-in
- $157.28/sqft
- $225/quarterly HOA
Home description
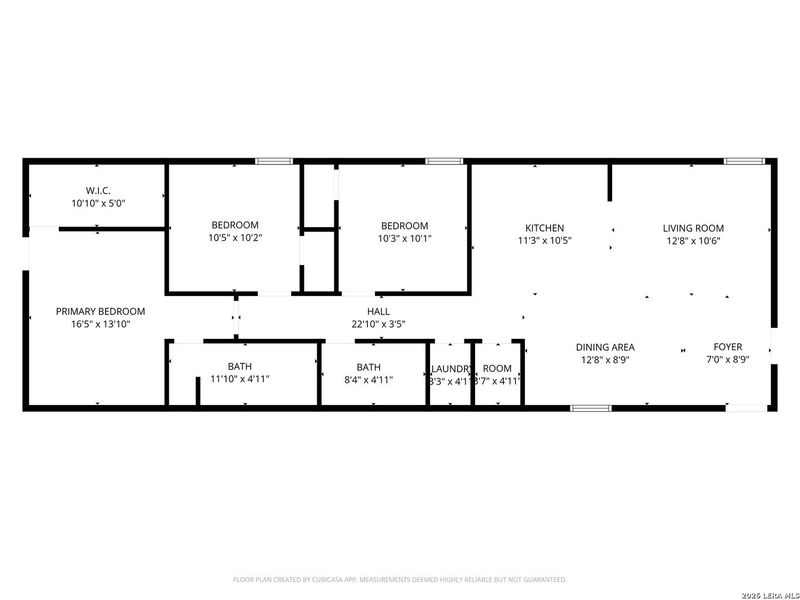
Conveniently located near Lackland AFB and an excellent option for military buyers, first-time buyers, and PCS relocations, this move-in ready single-story home offers a smart split-bedroom layout with thoughtful upgrades already done. The updated kitchen features an added island for additional prep space and seating, flowing into an open-concept living and dining area filled with natural light. Spacious primary suite with private bath. Two additional bedrooms offer flexibility for guests, a home office, or flex space. Dedicated laundry area and attached garage with opener. Freshly laid sod and a full irrigation system front and back keep the yard low maintenance year-round. Private fenced backyard. Refrigerator, washer, and dryer all convey - move in without purchasing a single appliance. Easy access to major highways, shopping, dining, and daily essentials. VA, FHA, and conventional financing welcome - ask about available options.
Keller Williams City-View, MLS 1956877
May also be listed on the Lennar website
Information last verified by Jome: Today at 2:06 AM (May 30, 2026)
Book your tour. Save an average of $18,473. We'll handle the rest.
We collect exclusive builder offers, book your tours, and support you from start to housewarming.
- Confirmed tours
- Get matched & compare top deals
- Expert help, no pressure
- No added fees
Estimated value based on Jome data, T&C apply
Home details
- Property status:
- Move-in ready
- Collection:
- Brookmill: Crestmore
- Lot size (acres):
- 0.11
- Size:
- 1,208 sqft
- Stories:
- 1
- Beds:
- 3
- Baths:
- 2
- Garage spaces:
- 2
- Fence:
- Privacy Fence
Construction details
- Builder Name:
- Lennar
- Completion Date:
- September, 2025
- Year Built:
- 2024
- Roof:
- Composition Roofing
Home features & finishes
- Appliances:
- Sprinkler System
- Cooling:
- Central Air
- Flooring:
- Vinyl FlooringCarpet Flooring
- Foundation Details:
- Slab
- Garage/Parking:
- GarageAttached Garage
- Interior Features:
- Walk-In ClosetFoyer
- Laundry facilities:
- Utility/Laundry Room
- Property amenities:
- SodPorch
- Rooms:
- Flex RoomPrimary Bedroom On MainKitchenOffice/StudyDining RoomFamily RoomOpen Concept FloorplanPrimary Bedroom Downstairs
Room details
Master Bedroom
Kitchen
Dining Room

Get a consultation with our New Homes Expert
- See how your home builds wealth
- Plan your home-buying roadmap
- Discover hidden gems
Utility information
- Heating:
- Central Heating, Gas Heating

Community details
Brookmill
by Lennar, San Antonio, TX
- 93 homes
- 43 plans
- 771 - 3,492 sqft
View Brookmill details
More homes in Brookmill
- Home at address 3926 Christinas Brk, San Antonio, TX 78245

Windrow
SavingsBrookmill: Broadview
$151,999
- 3 bd
- 2 ba
- 1,033 sqft
3926 Christinas Brk, San Antonio, TX 78245
- Home at address 4002 Christinas Brk, San Antonio, TX 78245

Windrow
SavingsBrookmill: Broadview
$151,999
- 3 bd
- 2 ba
- 1,033 sqft
4002 Christinas Brk, San Antonio, TX 78245
- Home at address 4006 Christinas Brk, San Antonio, TX 78245

Gates
SavingsBrookmill: Broadview
$162,999
- 3 bd
- 2 ba
- 1,192 sqft
4006 Christinas Brk, San Antonio, TX 78245
- Home at address 3934 Christinas Brk, San Antonio, TX 78245

Gates
SavingsBrookmill: Broadview
$164,999
- 3 bd
- 2 ba
- 1,192 sqft
3934 Christinas Brk, San Antonio, TX 78245
- Home at address 8655 Green Bliss, San Antonio, TX 78264

Home
$165,999
- 3 bd
- 2.5 ba
- 1,189 sqft
8655 Green Bliss, San Antonio, TX 78264
- Home at address 4007 Turbine Wheel, San Antonio, TX 78245

Hazel
SavingsBrookmill: Crestmore
$170,999
- 3 bd
- 2 ba
- 1,049 sqft
4007 Turbine Wheel, San Antonio, TX 78245
Floor plans in Brookmill
About the builder - Lennar

- 1,905communities on Jome
- 7,242homes on Jome
Neighborhood
Home address
- City:
- San Antonio
- County:
- Bexar
- Zip Code:
- 78245
Schools in Northside Independent School District
- Grades PK-04Privatetrain-up a child learning center / nursery0.8 mi9410 adams hlna
GreatSchools’ Summary Rating calculation is based on 4 of the school’s themed ratings, including test scores, student/academic progress, college readiness, and equity. This information should only be used as a reference. Jome is not affiliated with GreatSchools and does not endorse or guarantee this information. Please reach out to schools directly to verify all information and enrollment eligibility. Data provided by GreatSchools.org © 2025
Places of interest
Getting around
Air quality
Noise level
A Soundscore™ rating is a number between 50 (very loud) and 100 (very quiet) that tells you how loud a location is due to environmental noise.

Considering this home?
Our expert will guide your tour, in-person or virtual
Need more information?
Text or call (888) 545-5198
Financials
Estimated monthly payment
Let us help you find your dream home
How many bedrooms are you looking for?
Similar homes nearby
Recently added communities in this area
Nearby communities in San Antonio
New homes in nearby cities
More New Homes in San Antonio, TX
Keller Williams City-View, MLS 1956877
IDX information is provided exclusively for personal, non-commercial use, and may not be used for any purpose other than to identify prospective properties consumers may be interested in purchasing. Information is deemed reliable but not guaranteed.
Read moreLast checked May 30, 1:00 pm
- Jome
- New homes search
- Texas
- Greater San Antonio
- Bexar County
- San Antonio
- Brookmill
- Brookmill: Crestmore
- 3746 Glade Crk, San Antonio, TX 78245

































