









Book your tour. Save an average of $18,473. We'll handle the rest.
- Confirmed tours
- Get matched & compare top deals
- Expert help, no pressure
- No added fees
Estimated value based on Jome data, T&C apply
- 4 bd
- 4.5 ba
- 3,524 sqft
2281 Hagee Dr, Fredericksburg, TX 78624
Why tour with Jome?
- No pressure toursTour at your own pace with no sales pressure
- Expert guidanceGet insights from our home buying experts
- Exclusive accessSee homes and deals not available elsewhere
Jome is featured in
- Single-Family
- Quick move-in
- $1118.05/sqft
- $4,000/annual HOA
Home description
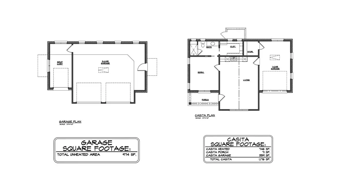
Nestled on Catfish Lake, this luxurious 4-bedroom, 4.5-bath home offers a serene retreat from your back porch overlooking the water. Located just moments away from the new Racquet Club and future Lake Club, convenience meets tranquility in this meticulously crafted masterpiece. Inside the main house, over 3,500 square feet of living space awaits, featuring an open-concept layout with high-end features and fixtures, perfect for both relaxation and entertainment. The gourmet kitchen seamlessly flows into the dining and living areas, while the left side of the home features the primary bedroom and bath, providing a private sanctuary separate from the main living areas. The primary suite boasts a spa-like ensuite bath and private access to the backyard patio. A 16' accordion door separates the gallery from the outdoor living area, seamlessly blending indoor and outdoor spaces for effortless entertaining and relaxation. Two additional bedrooms on the opposite side of the home and a detached 1-bedroom/1-bath casita offer comfort and privacy, ideal for family or guests. With a detached 2-car garage with cart storage and expansive outdoor spaces, this property combines convenience, sophistication, and the natural beauty of Catfish Lake in one remarkable package. Options not shown are a 2nd-story 1-bedroom/1-bath guest suite above the garage and a 2-bedroom/2-bath casita. A Boot Ranch Club Membership is required with each property purchase; annual Club dues are required. The Boot Ranch multi-generational membership extends member privileges to your parents, grandparents, children, adult children, grandchildren, and all their spouses so your family can enjoy exclusive membership privileges without additional membership dues.
Boot Ranch Realty, LLC, MLS 1424342
Information last verified by Jome: Yesterday at 7:04 AM (December 6, 2025)
Home highlights
Book your tour. Save an average of $18,473. We'll handle the rest.
We collect exclusive builder offers, book your tours, and support you from start to housewarming.
- Confirmed tours
- Get matched & compare top deals
- Expert help, no pressure
- No added fees
Estimated value based on Jome data, T&C apply
Home details
- Property status:
- Move-in ready
- Lot size (acres):
- 0.75
- Size:
- 3,524 sqft
- Stories:
- 1
- Beds:
- 4
- Baths:
- 4
- Half baths:
- 1
- Garage spaces:
- 2
- Fence:
- No Fence
- Facing direction:
- Southeast
Construction details
- Year Built:
- 2025
Home features & finishes
- Cooling:
- Central Air
- Garage/Parking:
- GarageAttached Garage
- Interior Features:
- Walk-In Closet
- Laundry facilities:
- Utility/Laundry Room
- Property amenities:
- BackyardPatioPorch
- Rooms:
- Primary Bedroom On MainGalleryOpen Concept FloorplanPrimary Bedroom Downstairs
Utility information
- Heating:
- Central Heating
- Utilities:
- Electricity Available, Natural Gas Available, Underground Utilities, Internet-Fiber, Water Available
Community amenities
- Common Grounds
- Dog Park
- Playground
- Fitness Center/Exercise Area
- Club House
- Golf Course
- Sport Court
- Tennis Courts
- Gated Community
- Community Pool
- Concierge Service
- Park Nearby
- Conference Room
- Car Charging Stations
- Fishing Pond
- Picnic Area
- Spa Zone
- Community Hot Tub
- Package Service
- Sport Facility
- Housekeeping
- Planned Social Activities
- Laundry Facility(s)
- Pet Amenities
- Cluster Mailbox
- Maintenance On-Site
- Google Fiber
Neighborhood
Home address
- City:
- Fredericksburg
- County:
- Gillespie
- Zip Code:
- 78624
Schools in Fredericksburg Independent School District
GreatSchools’ Summary Rating calculation is based on 4 of the school’s themed ratings, including test scores, student/academic progress, college readiness, and equity. This information should only be used as a reference. Jome is not affiliated with GreatSchools and does not endorse or guarantee this information. Please reach out to schools directly to verify all information and enrollment eligibility. Data provided by GreatSchools.org © 2025
Places of interest
Getting around
Natural hazards risk
Climate hazards can impact homes and communities, with risks varying by location. These scores reflect the potential impact of natural disasters and climate-related risks on Gillespie County
Provided by FEMA

Considering this home?
Our expert will guide your tour, in-person or virtual
Need more information?
Text or call (888) 486-2818
Financials
Similar homes nearby
Recently added communities in this area
Nearby communities in Fredericksburg
New homes in nearby cities
More New Homes in Fredericksburg, TX
Boot Ranch Realty, LLC, MLS 1424342
Based on information from the Austin Board of REALTORS® (alternatively, from ACTRIS) for the period through 08/13/2024. Neither the Board nor ACTRIS guarantees or is in any way responsible for its accuracy. All data is provided “AS IS” and with all faults. Data maintained by the Board or ACTRIS may not reflect all real estate activity in the market. Information being provided is for consumers’ personal, non-commercial use and may not be used for any purpose other than to identify prospective properties consumers may be interested in purchasing. The Digital Millennium Copyright Act of 1998, 17 U.S.C. § 512 (the “DMCA”) provides recourse for copyright owners who believe that material appearing on the Internet infringes their rights under U.S. copyright law. If you believe in good faith that any content or material made available in connection with our website or services infringes your copyright, you (or your agent) may send us a notice requesting that the content or material be removed, or access to it blocked. Notices must be sent in writing by email to DMCAnotice@MLSGrid.com. The DMCA requires that your notice of alleged copyright infringement include the following information: (1) description of the copyrighted work that is the subject of claimed infringement; (2) description of the alleged infringing content and information sufficient to permit us to locate the content; (3) contact information for you, including your address, telephone number and email address; (4) a statement by you that you have a good faith belief that the content in the manner complained of is not authorized by the copyright owner, or its agent, or by the operation of any law; (5) a statement by you, signed under penalty of perjury, that the information in the notification is accurate and that you have the authority to enforce the copyrights that are claimed to be infringed; and (6) a physical or electronic signature of the copyright owner or a person authorized to act on the copyright owner’s behalf. Failure to include all of the above information may result in the delay of the processing of your complaint.
Read moreLast checked Dec 7, 12:40 am
- Home
- New homes
- Texas
- Gillespie County
- Fredericksburg
- 2281 Hagee Dr, Fredericksburg, TX 78624










