



- 3 bd
- 2 ba
- 1,237 sqft
184 Showdown Rd, Abilene, TX 79602
- Single-Family
- $183.43/sqft
- West facing
- 0.13-acre lot
New Homes for Sale Near 184 Showdown Rd, Abilene, TX 79602
About this Home
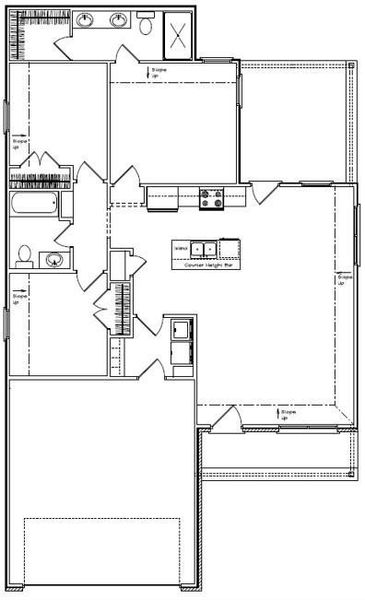
Owner Agent offering $5k toward buyer expenses. Reintroducing a cozy craftsman style home with modern amenities including an open concept floor plan, granite countertops and large laundry room. This East Gate Custom Home features three bedrooms including a primary bedroom with walk-in closet and ensuite bath complete with a dual vanity. Luxury vinyl plank will be installed in common areas and upgraded carpet in the bedrooms. This beauty includes a spacious eat in kitchen at a single level island with a large walk-in pantry and good-sized dining area included. Sod and irrigation will be installed in the front and back yard. Estimated completion late November.
Epique Realty LLC, MLS 20992294
Information last verified by Jome: Today at 12:58 AM (March 12, 2026)
Home details
- Property status:
- Sold
- Lot size (acres):
- 0.13
- Size:
- 1,237 sqft
- Stories:
- 1
- Beds:
- 3
- Baths:
- 2
- Garage spaces:
- 2
- Facing direction:
- West
Construction details
- Year Built:
- 2025
- Roof:
- Composition Roofing
Home features & finishes
- Construction Materials:
- ConcreteWoodFrame
- Cooling:
- Ceiling Fan(s)Central Air
- Flooring:
- Vinyl FlooringCarpet Flooring
- Garage/Parking:
- Door OpenerGarageFront Entry Garage/ParkingAttached Garage
- Interior Features:
- Walk-In ClosetPantryWalk-In PantryDouble Vanity
- Kitchen:
- DishwasherMicrowave OvenGranite countertopKitchen CountertopKitchen IslandKitchen Range
- Laundry facilities:
- Stackable Washer/DryerUtility/Laundry Room
- Property amenities:
- BackyardIrrigation
- Rooms:
- Primary Bedroom On MainOpen Concept FloorplanPrimary Bedroom Downstairs
Utility information
- Heating:
- Electric Heating, Water Heater, Central Heating
- Utilities:
- Electricity Available, City Water System, Cable Available, Individual Water Meter, Curbs
Neighborhood
Home address
Schools in Wylie Independent School District
GreatSchools’ Summary Rating calculation is based on 4 of the school’s themed ratings, including test scores, student/academic progress, college readiness, and equity. This information should only be used as a reference. Jome is not affiliated with GreatSchools and does not endorse or guarantee this information. Please reach out to schools directly to verify all information and enrollment eligibility. Data provided by GreatSchools.org © 2025
Getting around
Natural hazards risk
Provided by FEMA
Financials
Nearby communities in Abilene
Homes in Abilene Neighborhoods
Recently added communities in this area
Other Builders in Abilene, TX
Nearby sold homes
New homes in nearby cities
More New Homes in Abilene, TX
Epique Realty LLC, MLS 20992294
IDX information is provided exclusively for personal, non-commercial use, and may not be used for any purpose other than to identify prospective properties consumers may be interested in purchasing. You may not reproduce or redistribute this data, it is for viewing purposes only. This data is deemed reliable, but is not guaranteed accurate by the MLS or NTREIS.
Read moreLast checked Mar 12, 4:00 am
- Jome
- New homes search
- Texas
- Taylor County
- Abilene
- 184 Showdown Rd, Abilene, TX 79602


































