



Book your tour. Save an average of $18,473. We'll handle the rest.
- Confirmed tours
- Get matched & compare top deals
- Expert help, no pressure
- No added fees
Estimated value based on Jome data, T&C apply
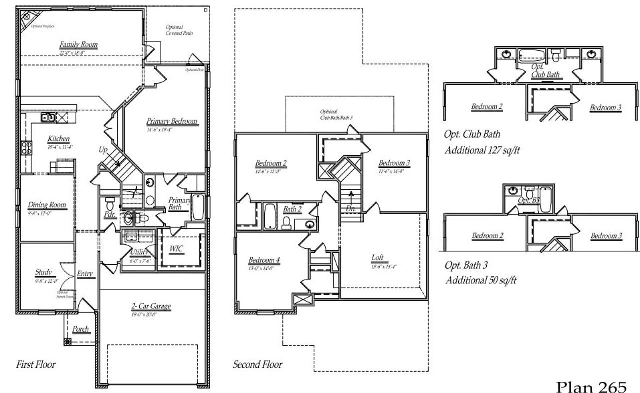
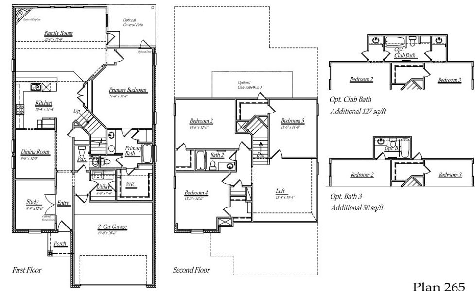
- 4 bd
- 3 ba
- 2,782 sqft
8714 Mallow Rose Wy, Rosharon, TX 77583
Why tour with Jome?
- No pressure toursTour at your own pace with no sales pressure
- Expert guidanceGet insights from our home buying experts
- Exclusive accessSee homes and deals not available elsewhere
Jome is featured in
- Single-Family
- $156.61/sqft
- $604/annual HOA
- East facing
Home description
This new home construction for sale is in the Huntington Place Community, a new neighborhood with a selection of new builds by Long Lake.
For more information regarding the amazing features available with this home, or to see the home in person, call or come visit our sales office today!
Long Lake Ltd
May also be listed on the Long Lake Ltd. website
Information last verified by Jome: Yesterday at 4:49 AM (January 19, 2026)
Book your tour. Save an average of $18,473. We'll handle the rest.
We collect exclusive builder offers, book your tours, and support you from start to housewarming.
- Confirmed tours
- Get matched & compare top deals
- Expert help, no pressure
- No added fees
Estimated value based on Jome data, T&C apply
Home details
- Property status:
- Pending/Under contract
- Lot size (acres):
- 0.14
- Size:
- 2,782 sqft
- Stories:
- 2
- Beds:
- 4
- Baths:
- 3
- Garage spaces:
- 2
- Facing direction:
- East
Construction details
- Builder Name:
- Long Lake Ltd.
- Year Built:
- 2025
- Roof:
- Composition Roofing
Home features & finishes
- Construction Materials:
- CementBrick
- Flooring:
- Carpet FlooringTile Flooring
- Foundation Details:
- Slab
- Garage/Parking:
- GarageAttached Garage
- Home amenities:
- Green Construction
- Interior Features:
- Ceiling-HighWalk-In ClosetPantryLoftWindow Coverings
- Kitchen:
- Range-Free StandingDishwasherMicrowave OvenOvenDisposalGas CooktopGas OvenKitchen Range
- Laundry facilities:
- DryerWasherUtility/Laundry Room
- Property amenities:
- DeckBackyardCovered PatioPatioPorch
- Rooms:
- KitchenPowder RoomGame RoomMedia RoomOffice/StudyDining RoomFamily RoomPrimary Bedroom Downstairs

Get a consultation with our New Homes Expert
- See how your home builds wealth
- Plan your home-buying roadmap
- Discover hidden gems
Utility information
- Heating:
- Water Heater, Gas Heating
- Utilities:
- HVAC

Community details
Huntington Place
by Long Lake Ltd., Rosharon, TX
- 16 homes
- 21 plans
- 1,450 - 2,902 sqft
View Huntington Place details
Community amenities
- Waterfront View
More homes in Huntington Place
- Home at address 615 Providence View Trl, Rosharon, TX 77583

Home
$355,000
- 4 bd
- 3.5 ba
- 2,347 sqft
615 Providence View Trl, Rosharon, TX 77583
- Home at address 631 Yard Master Trl, Rosharon, TX 77583

265
$375,990
- 4 bd
- 3.5 ba
- 2,655 sqft
631 Yard Master Trl, Rosharon, TX 77583
- Home at address 643 Yard Master Trl, Rosharon, TX 77583

264
$376,815
- 5 bd
- 3.5 ba
- 2,793 sqft
643 Yard Master Trl, Rosharon, TX 77583
- Home at address 8735 Mallow Rose Wy, Rosharon, TX 77583

218
$377,300
- 4 bd
- 3 ba
- 1,876 sqft
8735 Mallow Rose Wy, Rosharon, TX 77583
- Home at address 623 Yard Master Trl, Rosharon, TX 77583

270
$389,990
- 4 bd
- 3.5 ba
- 2,902 sqft
623 Yard Master Trl, Rosharon, TX 77583
- Home at address 619 Yard Master Trl, Rosharon, TX 77583

264
$392,990
- 5 bd
- 3.5 ba
- 2,793 sqft
619 Yard Master Trl, Rosharon, TX 77583
Floor plans in Huntington Place
About the builder - Long Lake Ltd.
Neighborhood
Home address
Schools in Fort Bend Independent School District
GreatSchools’ Summary Rating calculation is based on 4 of the school’s themed ratings, including test scores, student/academic progress, college readiness, and equity. This information should only be used as a reference. Jome is not affiliated with GreatSchools and does not endorse or guarantee this information. Please reach out to schools directly to verify all information and enrollment eligibility. Data provided by GreatSchools.org © 2025
Places of interest
Getting around
Air quality
Noise level
A Soundscore™ rating is a number between 50 (very loud) and 100 (very quiet) that tells you how loud a location is due to environmental noise.

Considering this home?
Our expert will guide your tour, in-person or virtual
Need more information?
Text or call (888) 486-2818
Financials
Estimated monthly payment
Let us help you find your dream home
How many bedrooms are you looking for?
Similar homes nearby
Recently added communities in this area
Nearby communities in Rosharon
New homes in nearby cities
More New Homes in Rosharon, TX
- Jome
- New homes search
- Texas
- Greater Houston Area
- Fort Bend County
- Rosharon
- Huntington Place
- 8714 Mallow Rose Wy, Rosharon, TX 77583

































