



Book your tour. Save an average of $18,473. We'll handle the rest.
- Confirmed tours
- Get matched & compare top deals
- Expert help, no pressure
- No added fees
Estimated value based on Jome data, T&C apply
- 2 bd
- 2.5 ba
- 1,076 sqft
1722 Broken Bow Rd, Granbury, TX 76049
Why tour with Jome?
- No pressure toursTour at your own pace with no sales pressure
- Expert guidanceGet insights from our home buying experts
- Exclusive accessSee homes and deals not available elsewhere
Jome is featured in
- Single-Family
- Under construction
- $232.25/sqft
- $18/annual HOA
Home description
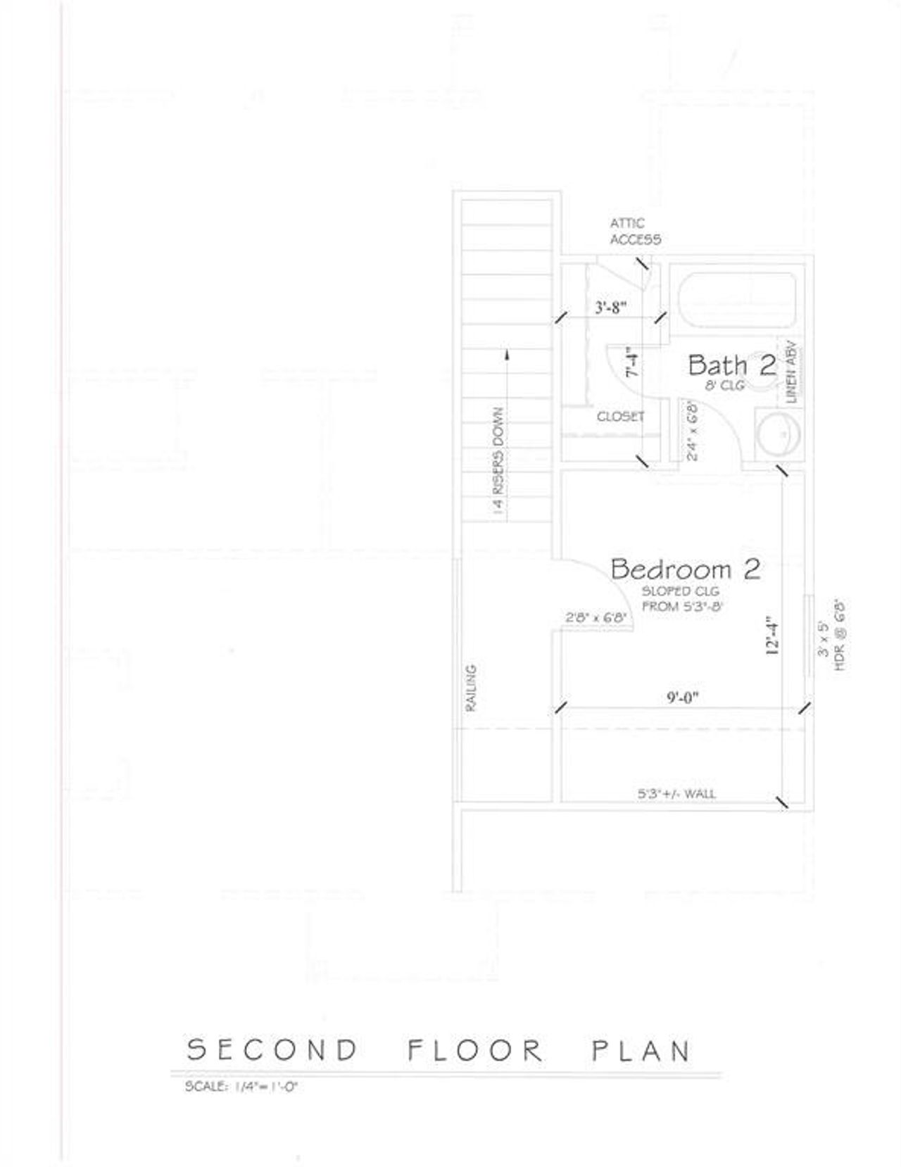
Proposed New Home Construction. Brand new home to be built in Western Hills Harbor. Lot has been cleared by builder. Lot is elevated and offers very nice views and is located just a few blocks from Lake Granbury! Western Hills Harbor is located outside the City limits. HOA is less than $100 per year and offers a community pool, clubhouse, and park. Kuketz Homes builds beautiful and upgraded homes affordably priced and packed with all the bells and whistles. Customization is available. Model home is available to view. This proposed home will be 1076 square feet, 2 bedroom, 2 full baths, and 1 half bath. Primary bedroom downstairs with walk in closet, and ensuite bath featuring granite countertops, double sinks, and oversized walk in shower. Ceiling fans in all rooms. Guest bedroom is upstairs with ensuite bath, granite countertops, walk in closet, and tub shower combo. Downstairs oversized living with electric fireplace available. Beautiful open kitchen with island, granite countertops, stainless appliances including cooktop stove, dishwasher, built in microwave, and refrigerator. Separate utility closet for the ultimate in space saving. Downstairs half bath for guests. Exterior will feature hard board siding, sod, gutters, concrete driveway, and carport. Average build time is 90-100 days. Come customize this proposed new construction home and make it your very own!
Scott Ashford Real Estate, LLC, MLS 20983138
Information last verified by Jome: Today at 12:46 AM (December 7, 2025)
Home highlights
Book your tour. Save an average of $18,473. We'll handle the rest.
We collect exclusive builder offers, book your tours, and support you from start to housewarming.
- Confirmed tours
- Get matched & compare top deals
- Expert help, no pressure
- No added fees
Estimated value based on Jome data, T&C apply
Home details
- Property status:
- Under construction
- Lot size (acres):
- 0.12
- Size:
- 1,076 sqft
- Stories:
- 1
- Beds:
- 2
- Baths:
- 2
- Half baths:
- 1
Construction details
- Year Built:
- 2025
- Roof:
- Composition Roofing, Shingle Roofing
Home features & finishes
- Cooling:
- Ceiling Fan(s)Central Air
- Flooring:
- Vinyl Flooring
- Foundation Details:
- Slab
- Garage/Parking:
- Car CarportCovered Garage/Parking
- Interior Features:
- Walk-In Closet
- Kitchen:
- DishwasherMicrowave OvenRefrigeratorElectric CooktopGranite countertopKitchen Island
- Laundry facilities:
- DryerWasher
- Lighting:
- Decorative/Designer Lighting
- Property amenities:
- Trees on propertyPatioPorch
- Rooms:
- Primary Bedroom On MainKitchenOpen Concept FloorplanPrimary Bedroom Downstairs
- Security system:
- Smoke Detector
Utility information
- Heating:
- Electric Heating, Water Heater, Central Heating
- Utilities:
- Electricity Available, Cable Available, Individual Water Meter, Aerobic Septic System, High Speed Internet Access, Cable TV
Community amenities
- Lake Access
- Club House
- Community Pool
- Park Nearby
- Boat Slip
Neighborhood
Home address
Schools in Granbury Independent School District
GreatSchools’ Summary Rating calculation is based on 4 of the school’s themed ratings, including test scores, student/academic progress, college readiness, and equity. This information should only be used as a reference. Jome is not affiliated with GreatSchools and does not endorse or guarantee this information. Please reach out to schools directly to verify all information and enrollment eligibility. Data provided by GreatSchools.org © 2025
Places of interest
Getting around
Air quality
Natural hazards risk
Climate hazards can impact homes and communities, with risks varying by location. These scores reflect the potential impact of natural disasters and climate-related risks on Hood County
Provided by FEMA

Considering this home?
Our expert will guide your tour, in-person or virtual
Need more information?
Text or call (888) 486-2818
Financials
Similar homes nearby
Recently added communities in this area
Nearby communities in Granbury
New homes in nearby cities
More New Homes in Granbury, TX
Scott Ashford Real Estate, LLC, MLS 20983138
IDX information is provided exclusively for personal, non-commercial use, and may not be used for any purpose other than to identify prospective properties consumers may be interested in purchasing. You may not reproduce or redistribute this data, it is for viewing purposes only. This data is deemed reliable, but is not guaranteed accurate by the MLS or NTREIS.
Read moreLast checked Dec 7, 4:00 pm
- Home
- New homes
- Texas
- Dallas-Fort Worth Area
- Hood County
- Granbury
- 1722 Broken Bow Rd, Granbury, TX 76049
























