












Book your tour. Save an average of $18,473. We'll handle the rest.
- Confirmed tours
- Get matched & compare top deals
- Expert help, no pressure
- No added fees
Estimated value based on Jome data, T&C apply









































- 4 bd
- 3.5 ba
- 2,853 sqft
31430 Greenville Creek Ln, Hockley, TX 77447
Why tour with Jome?
- No pressure toursTour at your own pace with no sales pressure
- Expert guidanceGet insights from our home buying experts
- Exclusive accessSee homes and deals not available elsewhere
Jome is featured in
- Single-Family
- Quick move-in
- $169.22/sqft
- $950/annual HOA
Home description
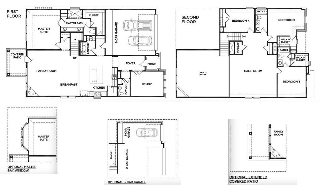
This stunning stone and brick home features an extended covered patio and grand entry with soaring ceilings. Inside, enjoy a formal dining room and open island kitchen with tile floors, a 10” deep undermount sink, tile backsplash, and built-in gas cooktop—perfect for entertaining. The spacious master suite offers a high ceiling, bay window, and spa-like bath with oversized shower, dual vanities, and walk-in closet. Upstairs boasts a large game room for family fun. An upgraded glass-textured front door and full irrigation system complete this exceptional home.
eXp Realty LLC, MLS 48828175
May also be listed on the McKinley Homes website
Information last verified by Jome: Today at 2:50 PM (January 17, 2026)
Book your tour. Save an average of $18,473. We'll handle the rest.
We collect exclusive builder offers, book your tours, and support you from start to housewarming.
- Confirmed tours
- Get matched & compare top deals
- Expert help, no pressure
- No added fees
Estimated value based on Jome data, T&C apply
Home details
- Property status:
- Move-in ready
- Size:
- 2,853 sqft
- Stories:
- 2
- Beds:
- 4
- Baths:
- 3
- Half baths:
- 1
- Garage spaces:
- 3
- Facing direction:
- South
Construction details
- Builder Name:
- McKinley Homes
- Year Built:
- 2025
- Roof:
- Composition Roofing
Home features & finishes
- Appliances:
- Sprinkler System
- Construction Materials:
- CementBrickStone
- Cooling:
- Ceiling Fan(s)
- Flooring:
- Carpet FlooringTile Flooring
- Foundation Details:
- Slab
- Garage/Parking:
- GarageAttached Garage
- Interior Features:
- Wired For SecurityFoyer
- Kitchen:
- DishwasherMicrowave OvenOvenDisposalGas CooktopKitchen IslandGas Oven
- Laundry facilities:
- DryerWasher
- Lighting:
- Lighting
- Property amenities:
- Backyard
- Rooms:
- Kitchen

Get a consultation with our New Homes Expert
- See how your home builds wealth
- Plan your home-buying roadmap
- Discover hidden gems
Utility information
- Heating:
- Electric Heating, Water Heater, Gas Heating

Community details
Stone Creek Ranch
by McKinley Homes, Hockley, TX
- 6 homes
- 9 plans
- 1,738 - 3,626 sqft
View Stone Creek Ranch details
More homes in Stone Creek Ranch
- Home at address 31211 Elmgrove Knoll Dr, Hockley, TX 77447

Home
$377,226
- 4 bd
- 3 ba
- 2,034 sqft
31211 Elmgrove Knoll Dr, Hockley, TX 77447
- Home at address 31207 Elmgrove Knoll Dr, Hockley, TX 77447

Home
$418,985
- 4 bd
- 3.5 ba
- 2,572 sqft
31207 Elmgrove Knoll Dr, Hockley, TX 77447
- Home at address 31406 Greenville Creek Ln, Hockley, TX 77447

Home
$493,919
- 4 bd
- 3.5 ba
- 3,233 sqft
31406 Greenville Creek Ln, Hockley, TX 77447
- Home at address 15907 Mimosa Cedar Cir, Hockley, TX 77447

Home
$494,554
- 5 bd
- 4 ba
- 3,233 sqft
15907 Mimosa Cedar Cir, Hockley, TX 77447
- Home at address 31414 Greenville Creek Ln, Hockley, TX 77447

Home
$499,223
- 4 bd
- 3.5 ba
- 3,233 sqft
31414 Greenville Creek Ln, Hockley, TX 77447
Floor plans in Stone Creek Ranch
About the builder - McKinley Homes
Neighborhood
Home address
Schools in Waller Independent School District
- Grades M-MPublicbryan lowe elementary1.9 mi31502 conifer farm drna
- Grades M-MPublicrichard t mcreavy elementary4.1 mi10330 prairieland crossingna
- Grades PK-KGPrivategrowing scholars montessori school5.4 mi13013 fry rdna
GreatSchools’ Summary Rating calculation is based on 4 of the school’s themed ratings, including test scores, student/academic progress, college readiness, and equity. This information should only be used as a reference. Jome is not affiliated with GreatSchools and does not endorse or guarantee this information. Please reach out to schools directly to verify all information and enrollment eligibility. Data provided by GreatSchools.org © 2025
Places of interest
Getting around
Air quality
Noise level
A Soundscore™ rating is a number between 50 (very loud) and 100 (very quiet) that tells you how loud a location is due to environmental noise.

Considering this home?
Our expert will guide your tour, in-person or virtual
Need more information?
Text or call (888) 486-2818
Financials
Estimated monthly payment
Let us help you find your dream home
How many bedrooms are you looking for?
Similar homes nearby
Recently added communities in this area
Nearby communities in Hockley
New homes in nearby cities
More New Homes in Hockley, TX
eXp Realty LLC, MLS 48828175
Copyright © 2025, Houston Realtors Information Service, Inc. The information provided is exclusively for consumers’ personal, non-commercial use, and may not be used for any purpose other than to identify prospective properties consumers may be interested in purchasing. Information is deemed reliable but not guaranteed. All information provided should be independently verified.
Read moreLast checked Jan 17, 2:50 pm
- Jome
- New homes search
- Texas
- Greater Houston Area
- Harris County
- Hockley
- Stone Creek Ranch
- 31430 Greenville Creek Ln, Hockley, TX 77447

































