













Book your tour. Save an average of $18,473. We'll handle the rest.
- Confirmed tours
- Get matched & compare top deals
- Expert help, no pressure
- No added fees
Estimated value based on Jome data, T&C apply


















Why tour with Jome?
- No pressure toursTour at your own pace with no sales pressure
- Expert guidanceGet insights from our home buying experts
- Exclusive accessSee homes and deals not available elsewhere
Jome is featured in
- Single-Family
- Quick move-in
- $194.76/sqft
- $53/monthly HOA
Home description
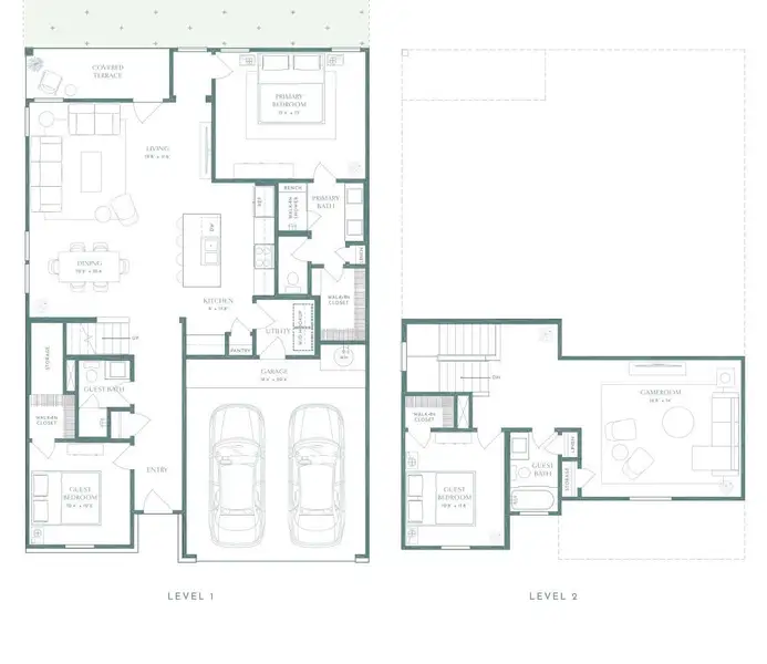
Major Price DropIncentives available with Preferred Lender. Huge price reduction! Welcome to the small, private gated community of Wellspring in Round Rock. Award-winning Clark Wilson Builder presents this thoughtfully designed 3 bedroom (two on main), 3 full bath (two on main) home + a large loft upstairs for extra flex space is ready to make customizable changes for each clients unique needs. This home creates the perfect combination of open concept for large gatherings as well as private sanctuary space. Features luxury vinyl flooring in entry, living, dining, and family. The spacious kitchen has large sparkling quartz countertops with an over-sized island, 42" cabinets with crown molding, ample cabinet space, a pantry, stainless steel Whirlpool vented microwave, dishwasher, and a 5 burner gas range. Primary bath has a dual vanity, a large oversized walk-in shower with bench, and spacious walk-in closet. Wellspring is a private gated community and includes a spacious sparkling resort style pool, pickleball court, gas grills, strolling gardens, yard games, low HOA fees ($53 per month) that include full yard maintenance (mow front and backyard). Full 2-car garage with garage door opener. Wellspring is located in a prime location for major transportation routes. Just minutes from Old Settlers Park, Kalahari Resort, downtown Round Rock, 9 miles from Samsung in Taylor, 35 minutes to Austin Bergstrom and 24 minutes to the Domain in North Austin. Wellspring is a mix of cottages (single-family) and townhomes, each with its own private fenced yard. Please visit our model home located at 5307 Bruno Street in Round Rock and let us show you an exceptional living experience.
GoldSher Properties, MLS 7004521
May also be listed on the Clark Wilson Builder website
Information last verified by Jome: Today at 12:40 AM (December 7, 2025)
Home highlights
Mixed‑use retail and entertainment center north of Austin with shops, dining, live events and walkable energy.
Book your tour. Save an average of $18,473. We'll handle the rest.
We collect exclusive builder offers, book your tours, and support you from start to housewarming.
- Confirmed tours
- Get matched & compare top deals
- Expert help, no pressure
- No added fees
Estimated value based on Jome data, T&C apply
Home details
- Property status:
- Move-in ready
- Lot size (acres):
- 0.08
- Size:
- 1,899 sqft
- Stories:
- 2
- Beds:
- 3
- Baths:
- 3
- Garage spaces:
- 2
- Facing direction:
- North
Construction details
- Builder Name:
- Clark Wilson Builder
- Year Built:
- 2025
- Roof:
- Shingle Roofing
Home features & finishes
- Appliances:
- Exhaust FanExhaust Fan Vented
- Construction Materials:
- ConcreteFrame
- Cooling:
- Ceiling Fan(s)Central Air
- Flooring:
- Vinyl FlooringCarpet FlooringTile Flooring
- Foundation Details:
- Slab
- Garage/Parking:
- GarageCovered Garage/ParkingAttached Garage
- Interior Features:
- Ceiling-HighWalk-In ClosetPantryDouble Vanity
- Kitchen:
- DishwasherMicrowave OvenDisposalGas CooktopQuartz countertopGranite countertopKitchen IslandGas OvenKitchen Range
- Laundry facilities:
- DryerUtility/Laundry Room
- Lighting:
- Lighting
- Property amenities:
- Backyard
- Rooms:
- Primary Bedroom On MainKitchenGame RoomDining RoomLiving RoomOpen Concept FloorplanPrimary Bedroom Downstairs
- Security system:
- Smoke Detector
Utility information
- Heating:
- Central Heating
- Utilities:
- Electricity Available, Natural Gas Available, Underground Utilities, Internet-Fiber, Phone Available, Water Available, High Speed Internet Access

Community details
Wellspring
by Clark Wilson Builder, Hutto, TX
- 4 homes
- 1,348 - 1,974 sqft
View Wellspring details
Community amenities
- Grill Area
- Common Grounds
- Playground
- Sport Court
- Gated Community
- BBQ Area
- Picnic Area
- Sport Facility
- Cluster Mailbox
- Sidewalks Available
- High Speed Internet Access
More homes in Wellspring
About the builder - Clark Wilson Builder
Neighborhood
Home address
- City:
- Hutto
- County:
- Williamson
- Zip Code:
- 78634
Schools in Hutto Independent School District
GreatSchools’ Summary Rating calculation is based on 4 of the school’s themed ratings, including test scores, student/academic progress, college readiness, and equity. This information should only be used as a reference. Jome is not affiliated with GreatSchools and does not endorse or guarantee this information. Please reach out to schools directly to verify all information and enrollment eligibility. Data provided by GreatSchools.org © 2025
Places of interest
Getting around
Air quality
Noise level
A Soundscore™ rating is a number between 50 (very loud) and 100 (very quiet) that tells you how loud a location is due to environmental noise.
Natural hazards risk
Climate hazards can impact homes and communities, with risks varying by location. These scores reflect the potential impact of natural disasters and climate-related risks on Williamson County
Provided by FEMA

Considering this home?
Our expert will guide your tour, in-person or virtual
Need more information?
Text or call (888) 486-2818
Financials
Estimated monthly payment
Similar homes nearby
Recently added communities in this area
Nearby communities in Hutto
New homes in nearby cities
More New Homes in Hutto, TX
GoldSher Properties, MLS 7004521
Based on information from the Austin Board of REALTORS® (alternatively, from ACTRIS) for the period through 08/13/2024. Neither the Board nor ACTRIS guarantees or is in any way responsible for its accuracy. All data is provided “AS IS” and with all faults. Data maintained by the Board or ACTRIS may not reflect all real estate activity in the market. Information being provided is for consumers’ personal, non-commercial use and may not be used for any purpose other than to identify prospective properties consumers may be interested in purchasing. The Digital Millennium Copyright Act of 1998, 17 U.S.C. § 512 (the “DMCA”) provides recourse for copyright owners who believe that material appearing on the Internet infringes their rights under U.S. copyright law. If you believe in good faith that any content or material made available in connection with our website or services infringes your copyright, you (or your agent) may send us a notice requesting that the content or material be removed, or access to it blocked. Notices must be sent in writing by email to DMCAnotice@MLSGrid.com. The DMCA requires that your notice of alleged copyright infringement include the following information: (1) description of the copyrighted work that is the subject of claimed infringement; (2) description of the alleged infringing content and information sufficient to permit us to locate the content; (3) contact information for you, including your address, telephone number and email address; (4) a statement by you that you have a good faith belief that the content in the manner complained of is not authorized by the copyright owner, or its agent, or by the operation of any law; (5) a statement by you, signed under penalty of perjury, that the information in the notification is accurate and that you have the authority to enforce the copyrights that are claimed to be infringed; and (6) a physical or electronic signature of the copyright owner or a person authorized to act on the copyright owner’s behalf. Failure to include all of the above information may result in the delay of the processing of your complaint.
Read moreLast checked Dec 7, 12:40 am
- Home
- New homes
- Texas
- Greater Austin Area
- Williamson County
- Hutto
- Wellspring
- 5315 Bruno St, Hutto, TX 78634






























