














Book your tour. Save an average of $18,473. We'll handle the rest.
We collect exclusive builder offers, book your tours, and support you from start to housewarming.
- Confirmed tours
- Get matched & compare top deals
- Expert help, no pressure
- No added fees
Estimated value based on Jome data, T&C apply



































- 5 bd
- 3.5 ba
- 2,588 sqft
254 Boatright Blvd, Jarrell, TX 76537
Why tour with Jome?
- No pressure toursTour at your own pace with no sales pressure
- Expert guidanceGet insights from our home buying experts
- Exclusive accessSee homes and deals not available elsewhere
Jome is featured in
- Single-Family
- Quick move-in
- $135.59/sqft
- $400/annual HOA
Home description
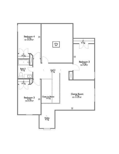
Upon entering this exceptional floor plan, you're immediately greeted with a high ceiling foyer. Walking into the open-concept kitchen and living room, you'll be stunned by the amount of space you have to gather. This five bedroom, three bath home has placed windows in the living room, primary bedroom, and dining room, crafting a home that is filled with natural light and charm. Granite countertops throughout and a large walk-in primary closet to top it all off and make this home exceptional.
May also be listed on the Stylecraft Builders website
Information last verified by Jome: Sunday at 11:04 PM (February 15, 2026)
Book your tour. Save an average of $18,473. We'll handle the rest.
We collect exclusive builder offers, book your tours, and support you from start to housewarming.
- Confirmed tours
- Get matched & compare top deals
- Expert help, no pressure
- No added fees
Estimated value based on Jome data, T&C apply
Home details
- Property status:
- Move-in ready
- Lot size (acres):
- 0.14
- Size:
- 2,588 sqft
- Stories:
- 2
- Beds:
- 5
- Baths:
- 3.5
- Garage spaces:
- 2
- Fence:
- Wood Fence
- Facing direction:
- Northwest
Construction details
- Builder Name:
- Stylecraft Builders
- Year Built:
- 2025
- Roof:
- Composition Roofing, Shingle Roofing
Home features & finishes
- Construction Materials:
- BrickStone
- Cooling:
- Ceiling Fan(s)
- Flooring:
- Vinyl FlooringCarpet FlooringTile Flooring
- Foundation Details:
- Slab
- Garage/Parking:
- GarageAttached Garage
- Interior Features:
- Walk-In ClosetFoyerPantryDouble Vanity
- Kitchen:
- DishwasherMicrowave OvenOvenDisposal
- Laundry facilities:
- Utility/Laundry Room
- Property amenities:
- BackyardCabinetsPorch
- Rooms:
- Primary Bedroom On MainKitchenPowder RoomGame RoomOffice/StudyDining RoomLiving RoomOpen Concept FloorplanPrimary Bedroom Downstairs

Get a consultation with our New Homes Expert
- See how your home builds wealth
- Plan your home-buying roadmap
- Discover hidden gems
Utility information
- Heating:
- Electric Heating
- Utilities:
- Electricity Available, Sewer Available, Water Available

Community details
Eastern Wells
by Stylecraft Builders, Jarrell, TX
- 8 homes
- 4 plans
- 1,354 - 2,588 sqft
View Eastern Wells details
More homes in Eastern Wells
- Home at address 121 Walk Wy, Jarrell, TX 76537

The 1443
$270,900
- 3 bd
- 2 ba
- 1,447 sqft
121 Walk Wy, Jarrell, TX 76537
- Home at address 124 Maybelline Rd, Jarrell, TX 76537

The 1443
$272,900
- 3 bd
- 2 ba
- 1,448 sqft
124 Maybelline Rd, Jarrell, TX 76537
- Home at address 270 Boatright Blvd, Jarrell, TX 76537

The 1363
$275,900
- 3 bd
- 2 ba
- 1,354 sqft
270 Boatright Blvd, Jarrell, TX 76537
- Home at address 308 Boatright Blvd, Jarrell, TX 76537

The 1363
$279,900
- 3 bd
- 2 ba
- 1,354 sqft
308 Boatright Blvd, Jarrell, TX 76537
- Home at address 290 Boatright Blvd, Jarrell, TX 76537

The 1363
$279,900
- 3 bd
- 2 ba
- 1,354 sqft
290 Boatright Blvd, Jarrell, TX 76537
- Home at address 120 Maybelline Rd, Jarrell, TX 76537

The 1475
$280,900
- 4 bd
- 2 ba
- 1,514 sqft
120 Maybelline Rd, Jarrell, TX 76537
Floor plans in Eastern Wells
About the builder - Stylecraft Builders
Neighborhood
Home address
- City:
- Jarrell
- County:
- Williamson
- Zip Code:
- 76537
Schools in Jarrell Independent School District
- Grades M-MPublicnew middle #21.3 mi2401 e fm 487na
- Grades PK-05Publicdouble creek elementary1.7 mi855 cr 307na
GreatSchools’ Summary Rating calculation is based on 4 of the school’s themed ratings, including test scores, student/academic progress, college readiness, and equity. This information should only be used as a reference. Jome is not affiliated with GreatSchools and does not endorse or guarantee this information. Please reach out to schools directly to verify all information and enrollment eligibility. Data provided by GreatSchools.org © 2025
Places of interest
Getting around
Air quality

Considering this home?
Our expert will guide your tour, in-person or virtual
Need more information?
Text or call (888) 488-9243
Financials
Estimated monthly payment
Let us help you find your dream home
How many bedrooms are you looking for?
Similar homes nearby
Recently added communities in this area
Nearby communities in Jarrell
New homes in nearby cities
More New Homes in Jarrell, TX
- Jome
- New homes search
- Texas
- Greater Austin Area
- Williamson County
- Jarrell
- Eastern Wells
- 254 Boatright Blvd, Jarrell, TX 76537
































