



































- 5 bd
- 4.5 ba
- 3,799 sqft
2206 Railhead Trl, Waxahachie, TX 75165
- Single-Family
- $164.52/sqft
- $550/annual HOA
- West facing
New Homes for Sale Near 2206 Railhead Trl, Waxahachie, TX 75165
About this Home
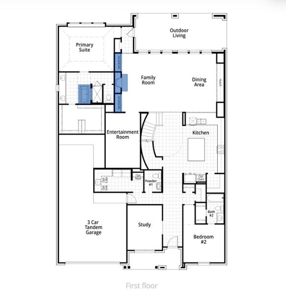
MLS# 21012575 - Built by Highland Homes - September completion! ~ Oversized lot that is situated next to a green space and has green space behind it - so how perfect is that! This Royston offers a modern exterior that will draw attention before your guest walks inside this dream home and once, they do they will be blown away with the soaring ceilings in the family and dining room, endless large windows for refreshing natural light and can we talk about this designer staircase. Once you move past all the beauty of the flooring, countertops on the island and peninsula you will have all the functional benefits of 5 bedrooms, 4 bathrooms plus a powder, study, entertainment room and a large game room which is perfect for entertaining. This home is a must see and it is the only one of its kind in Dove Hollow. Our community pool is open along with our two playgrounds so you dont have to wait for the amenities in a new community - we have them now.
Dina Verteramo, MLS 21012575
May also be listed on the Highland Homes website
Information last verified by Jome: Today at 1:21 AM (January 17, 2026)
Home details
- Property status:
- Sold
- Lot size (acres):
- 0.22
- Size:
- 3,799 sqft
- Stories:
- 2
- Beds:
- 5
- Baths:
- 4
- Half baths:
- 1
- Garage spaces:
- 3
- Fence:
- Wood Fence, Metal Fence
- Facing direction:
- West
Construction details
- Builder Name:
- Highland Homes
- Completion Date:
- September, 2025
- Year Built:
- 2025
- Roof:
- Composition Roofing
Home features & finishes
- Appliances:
- Exhaust Fan VentedSprinkler System
- Construction Materials:
- BrickFrame
- Cooling:
- Ceiling Fan(s)Central Air
- Flooring:
- Ceramic FlooringWood FlooringCarpet FlooringTile Flooring
- Foundation Details:
- Slab
- Garage/Parking:
- Door OpenerGarageFront Entry Garage/ParkingAttached GarageTandem Parking
- Home amenities:
- Green Construction
- Interior Features:
- Walk-In ClosetPantryStorageFlat Screen WiringDouble Vanity
- Kitchen:
- DishwasherMicrowave OvenDisposalGas CooktopKitchen IslandElectric Oven
- Laundry facilities:
- DryerWasherStackable Washer/DryerUtility/Laundry Room
- Lighting:
- Exterior LightingLightingDecorative/Designer Lighting
- Property amenities:
- SidewalkGas Log FireplaceBackyardLandscapingOutdoor LivingPatioFireplaceSmart Home SystemPorch
- Rooms:
- Primary Bedroom On MainKitchenPowder RoomGame RoomOffice/StudyDining RoomFamily RoomOpen Concept FloorplanPrimary Bedroom Downstairs
- Security system:
- Smoke DetectorCarbon Monoxide Detector
Utility information
- Heating:
- Water Heater, Central Heating, Gas Heating, Tankless water heater
- Utilities:
- Underground Utilities, HVAC, City Water System, Individual Water Meter, Individual Gas Meter, High Speed Internet Access, Cable TV, Curbs

Community details
Dove Hollow
by Highland Homes, Waxahachie, TX
- 5 homes
- 14 plans
- 2,083 - 3,917 sqft
View Dove Hollow details
Community amenities
- Playground
- Club House
- Community Pool
- Park Nearby
- Sidewalks Available
More homes in Dove Hollow
- Home at address 549 Lockhart St, Waxahachie, TX 75165

$635,000
Under construction- 5 bd
- 5.5 ba
- 3,917 sqft
549 Lockhart St, Waxahachie, TX 75165
Floor plans in Dove Hollow
About the builder - Highland Homes
Neighborhood
Home address
- City:
- Waxahachie
- County:
- Ellis
- Zip Code:
- 75165
Schools in Waxahachie Independent School District
GreatSchools’ Summary Rating calculation is based on 4 of the school’s themed ratings, including test scores, student/academic progress, college readiness, and equity. This information should only be used as a reference. Jome is not affiliated with GreatSchools and does not endorse or guarantee this information. Please reach out to schools directly to verify all information and enrollment eligibility. Data provided by GreatSchools.org © 2025
Places of interest
Getting around
Air quality
Noise level
A Soundscore™ rating is a number between 50 (very loud) and 100 (very quiet) that tells you how loud a location is due to environmental noise.
Financials
Nearby communities in Waxahachie
Homes in Waxahachie by Highland Homes
Recently added communities in this area
Other Builders in Waxahachie, TX
Nearby sold homes
New homes in nearby cities
More New Homes in Waxahachie, TX
Dina Verteramo, MLS 21012575
IDX information is provided exclusively for personal, non-commercial use, and may not be used for any purpose other than to identify prospective properties consumers may be interested in purchasing. You may not reproduce or redistribute this data, it is for viewing purposes only. This data is deemed reliable, but is not guaranteed accurate by the MLS or NTREIS.
Read moreLast checked Jan 17, 4:00 pm
- Jome
- New homes search
- Texas
- Dallas-Fort Worth Area
- Ellis County
- Waxahachie
- Dove Hollow
- 2206 Railhead Trl, Waxahachie, TX 75165









































































