









Book your tour. Save an average of $18,473. We'll handle the rest.
We collect exclusive builder offers, book your tours, and support you from start to housewarming.
- Confirmed tours
- Get matched & compare top deals
- Expert help, no pressure
- No added fees
Estimated value based on Jome data, T&C apply





















Why tour with Jome?
- No pressure toursTour at your own pace with no sales pressure
- Expert guidanceGet insights from our home buying experts
- Exclusive accessSee homes and deals not available elsewhere
Jome is featured in
- Single-Family
- Quick move-in
- $180.73/sqft
- $800/annual HOA
Home description
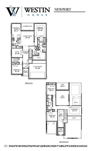
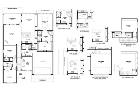
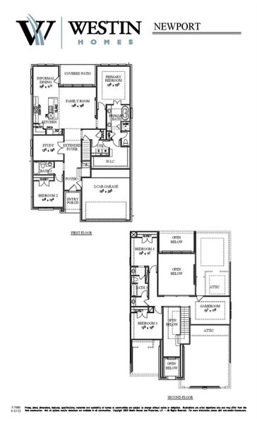
MOVE IN READY! Westin Homes NEW Construction (Newport, Elevation A) Beautiful two-story Westin Home featuring 4 spacious bedrooms (2 downstairs) and 3 full bathrooms. Designed for modern living, the open layout includes a private study, informal dining, and a stunning island kitchen that flows into a soaring two-story family room filled with natural light. Upstairs offers a large game room and two additional bedrooms, creating the perfect retreat for family or guests. Enjoy outdoor living on the covered patio and the convenience of an attached 2-car garage. Located just north of I-10 and west of the Grand Parkway in thriving Katy, Sunterra is a 1,039-acre master-planned community offering resort-style living. Dive into the Crystal Lagoons® amenity—swim, paddleboard, or relax on the beach. With plans for 2,200 homes, scenic lakes, parks, playgrounds, and a stunning Amenity Village with clubhouse and pool, Sunterra is where lifestyle meets luxury.
Westin Homes, MLS 19390551
May also be listed on the Westin Homes website
Information last verified by Jome: Today at 2:34 AM (April 15, 2026)
Home highlights
Major Houston business hub home to energy giants, top jobs, and master-planned communities with greenbelt access.
Book your tour. Save an average of $18,473. We'll handle the rest.
We collect exclusive builder offers, book your tours, and support you from start to housewarming.
- Confirmed tours
- Get matched & compare top deals
- Expert help, no pressure
- No added fees
Estimated value based on Jome data, T&C apply
Home details
- Property status:
- Move-in ready
- Collection:
- Sunterra (Katy ISD)
- Lot size (acres):
- 0.15
- Size:
- 2,600 sqft
- Stories:
- 2
- Beds:
- 4
- Baths:
- 3
- Garage spaces:
- 2
- Facing direction:
- West
Construction details
- Builder Name:
- Westin Homes
- Year Built:
- 2025
- Roof:
- Composition Roofing
Home features & finishes
- Appliances:
- Exhaust Fan
- Construction Materials:
- CementBrickStone
- Cooling:
- Ceiling Fan(s)
- Flooring:
- Carpet FlooringTile Flooring
- Foundation Details:
- Slab
- Garage/Parking:
- GarageAttached Garage
- Home amenities:
- ENERGY STAR CertifiedGreen Construction
- Interior Features:
- Ceiling-HighWalk-In ClosetFoyerPantryWalk-In Pantry
- Kitchen:
- DishwasherMicrowave OvenDisposalGas CooktopKitchen IslandElectric Oven
- Laundry facilities:
- DryerWasherUtility/Laundry Room
- Lighting:
- Lighting
- Property amenities:
- Electric FireplacePatioFireplacePorch
- Rooms:
- KitchenGame RoomDining RoomFamily RoomPrimary Bedroom Downstairs

Get a consultation with our New Homes Expert
- See how your home builds wealth
- Plan your home-buying roadmap
- Discover hidden gems
Utility information
- Heating:
- Gas Heating
- Utilities:
- HVAC
- Water source:
- Public

Community details
Sunterra at Sunterra
by Westin Homes, Katy, TX
- 14 homes
- 17 plans
- 2,600 - 3,306 sqft
View Sunterra details
Community amenities
- Energy Efficient
More homes in Sunterra
- Home at address 27039 Costa Creek Dr, Katy, TX 77493

The Davenport
Sunterra (Katy ISD)
$499,610
- 4 bd
- 3.5 ba
- 2,782 sqft
27039 Costa Creek Dr, Katy, TX 77493
- Home at address 5606 Sandcastle Ridge Dr, Katy, TX 77493

The Ellicott
Sunterra (Katy ISD)
$544,835
- 4 bd
- 3.5 ba
- 3,040 sqft
5606 Sandcastle Ridge Dr, Katy, TX 77493
- Home at address 27011 Costa Creek Dr, Katy, TX 77493

The Maxwell II
Sunterra (Katy ISD)
$549,395
- 4 bd
- 3.5 ba
- 3,000 sqft
27011 Costa Creek Dr, Katy, TX 77493
- Home at address 5607 Sandcastle Ridge Dr, Katy, TX 77493

The Maxwell II
Sunterra (Katy ISD)
$554,985
- 4 bd
- 3.5 ba
- 3,000 sqft
5607 Sandcastle Ridge Dr, Katy, TX 77493
- Home at address 3148 Stingray Cove Dr, Katy, TX 77493

The Albany IX
Sunterra (Katy ISD)
$555,000
- 4 bd
- 3.5 ba
- 3,090 sqft
3148 Stingray Cove Dr, Katy, TX 77493
- Home at address 5615 Sandcastle Ridge Dr, Katy, TX 77493

The Alden IX
Sunterra (Katy ISD)
$564,501
- 4 bd
- 3.5 ba
- 3,134 sqft
5615 Sandcastle Ridge Dr, Katy, TX 77493
Floor plans in Sunterra
About the builder - Westin Homes
Neighborhood
Home address
Schools in Katy Independent School District
- Grades PK-05Publicnew elementary #442.6 mi7400 innovation drna
- Grades PK-05Publicrussell & cindi faldyn elementary3.1 mi25615 clay rdna
GreatSchools’ Summary Rating calculation is based on 4 of the school’s themed ratings, including test scores, student/academic progress, college readiness, and equity. This information should only be used as a reference. Jome is not affiliated with GreatSchools and does not endorse or guarantee this information. Please reach out to schools directly to verify all information and enrollment eligibility. Data provided by GreatSchools.org © 2025
Places of interest
Getting around
Air quality

Considering this home?
Our expert will guide your tour, in-person or virtual
Need more information?
Text or call (888) 545-5198
Financials
Estimated monthly payment
Let us help you find your dream home
How many bedrooms are you looking for?
Similar homes nearby
Recently added communities in this area
Nearby communities in Katy
New homes in nearby cities
More New Homes in Katy, TX
Westin Homes, MLS 19390551
Copyright © 2025, Houston Realtors Information Service, Inc. The information provided is exclusively for consumers’ personal, non-commercial use, and may not be used for any purpose other than to identify prospective properties consumers may be interested in purchasing. Information is deemed reliable but not guaranteed. All information provided should be independently verified.
Read moreLast checked Apr 15, 8:50 am
- Jome
- New homes search
- Texas
- Greater Houston Area
- Waller County
- Katy
- Sunterra
- Sunterra (Katy ISD)
- 3244 Stingray Cove Dr, Katy, TX 77493

































