














Book your tour. Save an average of $18,473. We'll handle the rest.
- Confirmed tours
- Get matched & compare top deals
- Expert help, no pressure
- No added fees
Estimated value based on Jome data, T&C apply
































- 4 bd
- 3.5 ba
- 3,171 sqft
5515 Handlewood Ln, Rosenberg, TX 77471
Why tour with Jome?
- No pressure toursTour at your own pace with no sales pressure
- Expert guidanceGet insights from our home buying experts
- Exclusive accessSee homes and deals not available elsewhere
Jome is featured in
- Single-Family
- $143.25/sqft
- $685/annual HOA
- Northeast facing
Home description
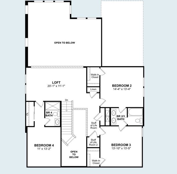
Discover Kingdom Heights, an amenity-rich community in Rosenberg, TX featuring K. Hovnanian's Looks - professionally curated interior designs. Welcome to this gorgeous two-story El Paso, showcasing our beautiful Classic Look! This home offers 4 beds, 3.5 baths, and a 2-car garage. An elegant formal dining room leads to a gourmet island kitchen, with Tilden white stacked cabinets and Statuary Classique quartz, via a convenient butler's pantry. The bright, open great room has a cozy fireplace. The tranquil primary suite features a huge walk-in closet and a spa-like bath with a barn door and freestanding tub. A versatile loft upstairs and a cozy covered patio complete this home. Located just off US-59 South and HWY 6, residents of this community enjoy easy access to shopping and dining, as well as Lamar Consolidated ISD schools. Resort-style amenities include scenic lakes, a swimming pool, hiking and biking trails, and a playground. Offered by: K. Hovnanian of Houston II, L.L.C
K. Hovnanian Homes, MLS 38356693
May also be listed on the K. Hovnanian® Homes website
Information last verified by Jome: Today at 2:31 AM (December 7, 2025)
Home highlights
Major Houston business hub home to energy giants, top jobs, and master-planned communities with greenbelt access.
Book your tour. Save an average of $18,473. We'll handle the rest.
We collect exclusive builder offers, book your tours, and support you from start to housewarming.
- Confirmed tours
- Get matched & compare top deals
- Expert help, no pressure
- No added fees
Estimated value based on Jome data, T&C apply
Home details
- Property status:
- Pending/Under contract
- Lot size (acres):
- 0.17
- Size:
- 3,171 sqft
- Stories:
- 2
- Beds:
- 4
- Baths:
- 3.5
- Garage spaces:
- 2
- Facing direction:
- Northeast
Construction details
- Builder Name:
- K. Hovnanian® Homes
- Completion Date:
- September, 2025
- Year Built:
- 2025
- Roof:
- Composition Roofing
Home features & finishes
- Construction Materials:
- CementBrickStone
- Cooling:
- Ceiling Fan(s)
- Flooring:
- Carpet FlooringTile Flooring
- Foundation Details:
- Slab
- Garage/Parking:
- GarageAttached Garage
- Home amenities:
- Green Construction
- Interior Features:
- Ceiling-HighWired For SecurityWalk-In ClosetFoyerPantryWalk-In PantryStaircasesLoft
- Kitchen:
- DishwasherMicrowave OvenOvenDisposalGas CooktopKitchen IslandGas OvenKitchen RangeDouble OvenElectric Oven
- Laundry facilities:
- DryerWasherUtility/Laundry Room
- Property amenities:
- Gas Log FireplaceBackyardButler's PantryCovered Outdoor LivingCabinetsPatioFireplacePorch
- Rooms:
- Primary Bedroom On MainKitchenEntry HallPowder RoomDining RoomFamily RoomOpen Concept FloorplanPrimary Bedroom Downstairs
Utility information
- Heating:
- Gas Heating
- Utilities:
- HVAC

Community details
Kingdom Heights
by K. Hovnanian® Homes, Rosenberg, TX
- 13 homes
- 6 plans
- 2,005 - 3,464 sqft
View Kingdom Heights details
More homes in Kingdom Heights
Floor plans in Kingdom Heights
About the builder - K. Hovnanian® Homes
Neighborhood
Home address
Schools in Lamar Consolidated Independent School District
- Grades PK-PKPublicjuan seguin early childhood center2.2 mi605 mabel stna
GreatSchools’ Summary Rating calculation is based on 4 of the school’s themed ratings, including test scores, student/academic progress, college readiness, and equity. This information should only be used as a reference. Jome is not affiliated with GreatSchools and does not endorse or guarantee this information. Please reach out to schools directly to verify all information and enrollment eligibility. Data provided by GreatSchools.org © 2025
Places of interest
Getting around
Air quality
Natural hazards risk
Climate hazards can impact homes and communities, with risks varying by location. These scores reflect the potential impact of natural disasters and climate-related risks on Fort Bend County
Provided by FEMA

Considering this home?
Our expert will guide your tour, in-person or virtual
Need more information?
Text or call (888) 486-2818
Financials
Estimated monthly payment
Similar homes nearby
Recently added communities in this area
Nearby communities in Rosenberg
New homes in nearby cities
More New Homes in Rosenberg, TX
K. Hovnanian Homes, MLS 38356693
Copyright © 2025, Houston Realtors Information Service, Inc. The information provided is exclusively for consumers’ personal, non-commercial use, and may not be used for any purpose other than to identify prospective properties consumers may be interested in purchasing. Information is deemed reliable but not guaranteed. All information provided should be independently verified.
Read moreLast checked Dec 7, 8:50 am
- Home
- New homes
- Texas
- Greater Houston Area
- Fort Bend County
- Rosenberg
- Kingdom Heights
- 5515 Handlewood Ln, Rosenberg, TX 77471


































