

Book your tour. Save an average of $18,473. We'll handle the rest.
- Confirmed tours
- Get matched & compare top deals
- Expert help, no pressure
- No added fees
Estimated value based on Jome data, T&C apply
Why tour with Jome?
- No pressure toursTour at your own pace with no sales pressure
- Expert guidanceGet insights from our home buying experts
- Exclusive accessSee homes and deals not available elsewhere
Jome is featured in
- Single-Family
- Quick move-in
- $200/sqft
- $450/annual HOA
Home description
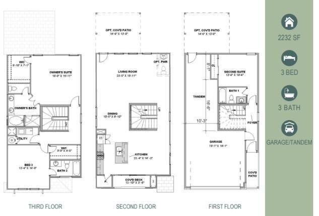
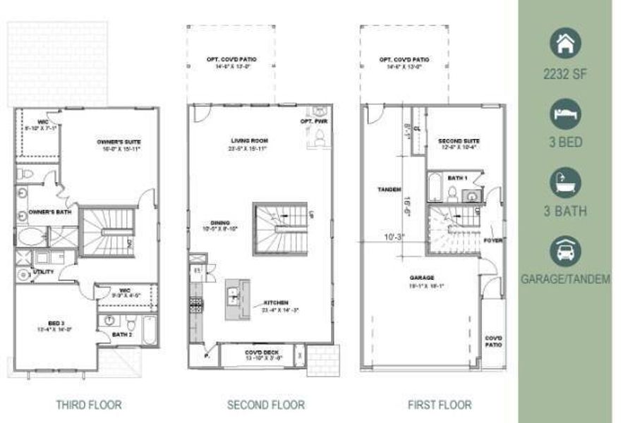
Experience modern comfort in this beautifully designed 2,232 SF home, offering 3 bedrooms, 3 full baths, and a tandem garage. Ideally located in a sought-after community, this home is just minutes from downtown, blending convenience with contemporary style. The open-concept layout features a spacious family room, elegant dining area, and a gourmet kitchen with ample counter space, perfect for hosting and everyday living. The owner’s suite is a private retreat, boasting a spa-inspired en-suite bath and a walk-in closet. Secondary bedrooms are well-sized for versatility, whether for family, guests, or a home office. Thoughtful design elements maximize space, comfort, and functionality, making this home a true standout. Enjoy outdoor relaxation on the covered porch or patio. Don’t miss your opportunity to own this exceptional home—schedule your private tour today!
Compass RE Texas, LLC - Houston, MLS 96615248
May also be listed on the Saratoga Homes website
Information last verified by Jome: Today at 2:32 AM (December 7, 2025)
Home highlights
NASA’s mission control hub supporting human spaceflight, STEM careers, and tech innovation in the Houston area.
Book your tour. Save an average of $18,473. We'll handle the rest.
We collect exclusive builder offers, book your tours, and support you from start to housewarming.
- Confirmed tours
- Get matched & compare top deals
- Expert help, no pressure
- No added fees
Estimated value based on Jome data, T&C apply
Home details
- Property status:
- Move-in ready
- Neighborhood:
- Central Southwest
- Size:
- 2,232 sqft
- Stories:
- 3+
- Beds:
- 4
- Baths:
- 3
- Garage spaces:
- 3
- Facing direction:
- East
Construction details
- Builder Name:
- Saratoga Homes
- Year Built:
- 2025
- Roof:
- Composition Roofing
Home features & finishes
- Construction Materials:
- StuccoBrick
- Cooling:
- Ceiling Fan(s)
- Flooring:
- Vinyl FlooringCarpet FlooringTile Flooring
- Foundation Details:
- Slab
- Garage/Parking:
- GarageAttached GarageTandem Parking
- Home amenities:
- Green Construction
- Interior Features:
- Ceiling-HighWalk-In ClosetFoyerPantryBreakfast BarWalk-In Pantry
- Kitchen:
- DishwasherMicrowave OvenOvenDisposalGas CooktopKitchen IslandGas OvenKitchen Range
- Laundry facilities:
- DryerWasher
- Property amenities:
- BarDeckBackyardPatioPorch
- Rooms:
- Kitchen
Utility information
- Heating:
- Water Heater, Gas Heating
- Utilities:
- HVAC

Community details
Skyview
by Saratoga Homes, Alvin, TX
- 5 homes
- 4 plans
- 2,137 - 2,637 sqft
View Skyview details
More homes in Skyview
Floor plans in Skyview
About the builder - Saratoga Homes
Neighborhood
Home address
Schools in Alvin Independent School District
- Grades PK-05Publicnew elementary #1223.2 mi301 e house stna
- Grades PK-05Publicnew elementary #1213.2 mi301 e house stna
GreatSchools’ Summary Rating calculation is based on 4 of the school’s themed ratings, including test scores, student/academic progress, college readiness, and equity. This information should only be used as a reference. Jome is not affiliated with GreatSchools and does not endorse or guarantee this information. Please reach out to schools directly to verify all information and enrollment eligibility. Data provided by GreatSchools.org © 2025
Places of interest
Getting around
Air quality
Noise level
A Soundscore™ rating is a number between 50 (very loud) and 100 (very quiet) that tells you how loud a location is due to environmental noise.
Natural hazards risk
Climate hazards can impact homes and communities, with risks varying by location. These scores reflect the potential impact of natural disasters and climate-related risks on Harris County
Provided by FEMA

Considering this home?
Our expert will guide your tour, in-person or virtual
Need more information?
Text or call (888) 486-2818
Financials
Estimated monthly payment
Similar homes nearby
Recently added communities in this area
Nearby communities in Houston
New homes in nearby cities
More New Homes in Houston, TX
Compass RE Texas, LLC - Houston, MLS 96615248
Copyright © 2025, Houston Realtors Information Service, Inc. The information provided is exclusively for consumers’ personal, non-commercial use, and may not be used for any purpose other than to identify prospective properties consumers may be interested in purchasing. Information is deemed reliable but not guaranteed. All information provided should be independently verified.
Read moreLast checked Dec 7, 8:50 am
- Home
- New homes
- Texas
- Greater Houston Area
- Harris County
- Houston
- Skyview
- 12513 Bestview Ct, Houston, TX 77511





























