














Book your tour. Save an average of $18,473. We'll handle the rest.
We collect exclusive builder offers, book your tours, and support you from start to housewarming.
- Confirmed tours
- Get matched & compare top deals
- Expert help, no pressure
- No added fees
Estimated value based on Jome data, T&C apply




- 5 bd
- 4 ba
- 3,541 sqft
1850 Viking Dr, Houston, TX 77018
Why tour with Jome?
- No pressure toursTour at your own pace with no sales pressure
- Expert guidanceGet insights from our home buying experts
- Exclusive accessSee homes and deals not available elsewhere
Jome is featured in
- Single-Family
- Quick move-in
- $374.19/sqft
- South facing
Home description
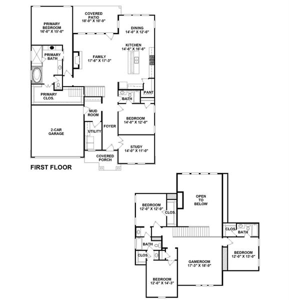
Still time to customize selections with Partners in Building a beautiful 2-story, 5-bed, 4-bath home in the sought-after Oak Forest subdivision. Currently under construction. Lot in Zone X, not in flood plain. Be greeted by a grand foyer that exudes elegance &sets the tone for the rest of the home. Main floor is designed with convenience, a mud room, covered patio for outdoor relaxation, & both primary & secondary bedrooms for added flexibility & privacy. Three secondary bedrooms & a game room upstairs to entertain guests or spend quality time with family. This home provides plenty of room for all your needs. The practicality of walk-in closets, a walk-in pantry, and a study adds to the functionality of the property, ensuring that every space is utilized efficiently. Enjoy the amenities of the Oak Forest neighborhood and take advantage of being zoned for top-rated schools. This home seamlessly blends comfort & style. Make this exceptional property in Oak Forest your new haven.
Partners In Building, MLS 89176151
May also be listed on the Partners in Building website
Information last verified by Jome: Today at 2:31 AM (February 15, 2026)
Book your tour. Save an average of $18,473. We'll handle the rest.
We collect exclusive builder offers, book your tours, and support you from start to housewarming.
- Confirmed tours
- Get matched & compare top deals
- Expert help, no pressure
- No added fees
Estimated value based on Jome data, T&C apply
Home details
- Property status:
- Move-in ready
- Neighborhood:
- Oak Forest - Garden Oaks
- Lot size (acres):
- 0.17
- Size:
- 3,541 sqft
- Stories:
- 2
- Beds:
- 5
- Baths:
- 4
- Garage spaces:
- 2
- Facing direction:
- South
Construction details
- Builder Name:
- Partners in Building
- Year Built:
- 2026
- Roof:
- Composition Roofing
Home features & finishes
- Appliances:
- Sprinkler System
- Construction Materials:
- StuccoCementStoneWood Siding
- Cooling:
- Ceiling Fan(s)
- Flooring:
- Wood FlooringCarpet FlooringTile Flooring
- Foundation Details:
- Slab
- Garage/Parking:
- GarageAttached Garage
- Home amenities:
- ENERGY STAR CertifiedGreen Construction
- Interior Features:
- Ceiling-HighWalk-In ClosetFoyerWalk-In Pantry
- Kitchen:
- DishwasherMicrowave OvenOvenDisposalGas CooktopKitchen IslandGas OvenKitchen RangeDouble Oven
- Laundry facilities:
- DryerWasher
- Lighting:
- Lighting
- Property amenities:
- DeckGas Log FireplaceBackyardCabinetsPatioFireplacePorch
- Rooms:
- Kitchen

Get a consultation with our New Homes Expert
- See how your home builds wealth
- Plan your home-buying roadmap
- Discover hidden gems
Utility information
- Heating:
- Electric Heating, Gas Heating
- Utilities:
- HVAC
About the builder - Partners in Building
Neighborhood
Home address
- Neighborhood:
- Oak Forest - Garden Oaks
- City:
- Houston
Schools in Houston Independent School District
GreatSchools’ Summary Rating calculation is based on 4 of the school’s themed ratings, including test scores, student/academic progress, college readiness, and equity. This information should only be used as a reference. Jome is not affiliated with GreatSchools and does not endorse or guarantee this information. Please reach out to schools directly to verify all information and enrollment eligibility. Data provided by GreatSchools.org © 2025
Places of interest
Getting around
2 nearby routes: 2 bus, 0 rail, 0 otherAir quality
Noise level
A Soundscore™ rating is a number between 50 (very loud) and 100 (very quiet) that tells you how loud a location is due to environmental noise.
Natural hazards risk
Provided by FEMA

Considering this home?
Our expert will guide your tour, in-person or virtual
Need more information?
Text or call (888) 486-2818
Financials
Estimated monthly payment
Let us help you find your dream home
How many bedrooms are you looking for?
Similar homes nearby
Recently added communities in this area
Nearby communities in Houston
New homes in nearby cities
More New Homes in Houston, TX
Partners In Building, MLS 89176151
Copyright © 2025, Houston Realtors Information Service, Inc. The information provided is exclusively for consumers’ personal, non-commercial use, and may not be used for any purpose other than to identify prospective properties consumers may be interested in purchasing. Information is deemed reliable but not guaranteed. All information provided should be independently verified.
Read moreLast checked Feb 15, 2:50 am
- Jome
- New homes search
- Texas
- Greater Houston Area
- Harris County
- Houston
- 1850 Viking Dr, Houston, TX 77018




























