














Book your tour. Save an average of $18,473. We'll handle the rest.
- Confirmed tours
- Get matched & compare top deals
- Expert help, no pressure
- No added fees
Estimated value based on Jome data, T&C apply




















- 4 bd
- 4.5 ba
- 3,496 sqft
1449 Amanda Paige Dr, Georgetown, TX 78628
Why tour with Jome?
- No pressure toursTour at your own pace with no sales pressure
- Expert guidanceGet insights from our home buying experts
- Exclusive accessSee homes and deals not available elsewhere
Jome is featured in
- Single-Family
- Quick move-in
- $234.27/sqft
- $840/annual HOA
Home description
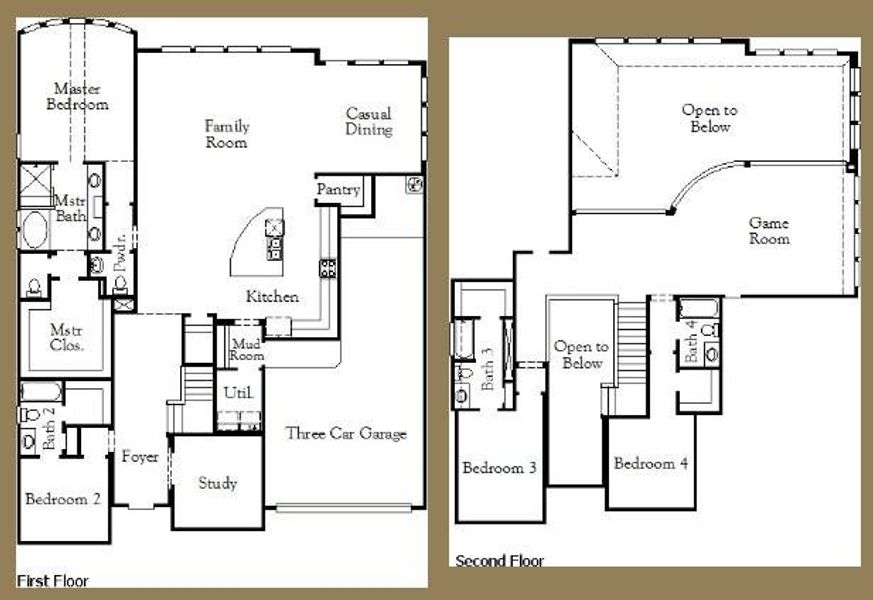
New Coventry Home! This two-story, Winters floor plan includes four bedrooms and four and a half bathrooms, blending comfort and functionality. The main level features an open-concept design, connecting the gourmet kitchen, great room, and dining area. The entrance and great room boast soaring 19' ceilings, adding grandeur to the space. A first-floor primary suite includes a spa-inspired bathroom with a free-standing tub and a massive walk-in closet. The secondary suite downstairs offers privacy for guests, complete with a shower with a glass door. Upstairs, each bedroom has access to a well-appointed bathroom. A versatile, extra large, game room adds space for entertainment. The home also includes a mudroom off the garage for added convenience. With over 20 windows on the rear walls of the home, it offers abundant natural light. The upgraded elevation features a combination of stone, brick, and stucco. The three-car garage provides ample storage, and the layout ensures optimal flow and accessibility. Schedule your tour today! ** Ask us about our low interest rates & special financing! Visit Onsite for details – subject to change without notice. **
New Home Now, MLS 7540561
May also be listed on the Coventry Homes website
Information last verified by Jome: Yesterday at 7:07 AM (December 6, 2025)
Home highlights
Mixed‑use retail and entertainment center north of Austin with shops, dining, live events and walkable energy.
Book your tour. Save an average of $18,473. We'll handle the rest.
We collect exclusive builder offers, book your tours, and support you from start to housewarming.
- Confirmed tours
- Get matched & compare top deals
- Expert help, no pressure
- No added fees
Estimated value based on Jome data, T&C apply
Home details
- Property status:
- Move-in ready
- Lot size (acres):
- 0.24
- Lot width (feet):
- 60
- Size:
- 3,496 sqft
- Stories:
- 2
- Beds:
- 4
- Baths:
- 4
- Half baths:
- 1
- Garage spaces:
- 3
- Fence:
- Wood Fence
- Facing direction:
- West
Construction details
- Builder Name:
- Coventry Homes
- Year Built:
- 2025
- Roof:
- Composition Roofing, Shingle Roofing
Home features & finishes
- Appliances:
- Exhaust FanExhaust Fan Vented
- Construction Materials:
- ConcreteFrame
- Cooling:
- Central Air
- Flooring:
- Wood FlooringCarpet FlooringTile Flooring
- Foundation Details:
- Slab
- Garage/Parking:
- Door OpenerGarageAttached Garage
- Home amenities:
- Green Construction
- Interior Features:
- Ceiling-HighWalk-In ClosetFoyerPantryDouble Vanity
- Kitchen:
- DishwasherMicrowave OvenOvenDisposalStainless Steel AppliancesGas CooktopBuilt-In OvenQuartz countertopSelf Cleaning OvenCook TopElectric Oven
- Laundry facilities:
- Utility/Laundry Room
- Lighting:
- Exterior Lighting
- Property amenities:
- Soaking TubPatioPorch
- Rooms:
- Primary Bedroom On MainKitchenPowder RoomGame RoomOffice/StudyDining RoomFamily RoomOpen Concept FloorplanPrimary Bedroom Downstairs
- Security system:
- Smoke Detector
Utility information
- Heating:
- Thermostat, Water Heater, Central Heating, Tankless water heater
- Utilities:
- Electricity Available, Natural Gas Available, Underground Utilities, HVAC, High Speed Internet Access

Community details
Parkside On The River at Parkside on the River
by Coventry Homes, Georgetown, TX
- 18 homes
- 13 plans
- 2,114 - 4,126 sqft
View Parkside On The River details
Community amenities
- Common Grounds
- Playground
- Park Nearby
- Car Charging Stations
- Fishing Pond
- Picnic Area
- Sidewalks Available
More homes in Parkside On The River
Floor plans in Parkside On The River
About the builder - Coventry Homes
Neighborhood
Home address
- City:
- Georgetown
- County:
- Williamson
- Zip Code:
- 78628
Schools in Leander Independent School District
GreatSchools’ Summary Rating calculation is based on 4 of the school’s themed ratings, including test scores, student/academic progress, college readiness, and equity. This information should only be used as a reference. Jome is not affiliated with GreatSchools and does not endorse or guarantee this information. Please reach out to schools directly to verify all information and enrollment eligibility. Data provided by GreatSchools.org © 2025
Places of interest
Getting around
Air quality
Natural hazards risk
Climate hazards can impact homes and communities, with risks varying by location. These scores reflect the potential impact of natural disasters and climate-related risks on Williamson County
Provided by FEMA

Considering this home?
Our expert will guide your tour, in-person or virtual
Need more information?
Text or call (888) 486-2818
Financials
Estimated monthly payment
Similar homes nearby
Recently added communities in this area
Nearby communities in Georgetown
New homes in nearby cities
More New Homes in Georgetown, TX
New Home Now, MLS 7540561
Based on information from the Austin Board of REALTORS® (alternatively, from ACTRIS) for the period through 08/13/2024. Neither the Board nor ACTRIS guarantees or is in any way responsible for its accuracy. All data is provided “AS IS” and with all faults. Data maintained by the Board or ACTRIS may not reflect all real estate activity in the market. Information being provided is for consumers’ personal, non-commercial use and may not be used for any purpose other than to identify prospective properties consumers may be interested in purchasing. The Digital Millennium Copyright Act of 1998, 17 U.S.C. § 512 (the “DMCA”) provides recourse for copyright owners who believe that material appearing on the Internet infringes their rights under U.S. copyright law. If you believe in good faith that any content or material made available in connection with our website or services infringes your copyright, you (or your agent) may send us a notice requesting that the content or material be removed, or access to it blocked. Notices must be sent in writing by email to DMCAnotice@MLSGrid.com. The DMCA requires that your notice of alleged copyright infringement include the following information: (1) description of the copyrighted work that is the subject of claimed infringement; (2) description of the alleged infringing content and information sufficient to permit us to locate the content; (3) contact information for you, including your address, telephone number and email address; (4) a statement by you that you have a good faith belief that the content in the manner complained of is not authorized by the copyright owner, or its agent, or by the operation of any law; (5) a statement by you, signed under penalty of perjury, that the information in the notification is accurate and that you have the authority to enforce the copyrights that are claimed to be infringed; and (6) a physical or electronic signature of the copyright owner or a person authorized to act on the copyright owner’s behalf. Failure to include all of the above information may result in the delay of the processing of your complaint.
Read moreLast checked Dec 7, 12:40 am
- Home
- New homes
- Texas
- Greater Austin Area
- Williamson County
- Georgetown
- Parkside On The River
- 1449 Amanda Paige Dr, Georgetown, TX 78628









































