














Book your tour. Save an average of $18,473. We'll handle the rest.
- Confirmed tours
- Get matched & compare top deals
- Expert help, no pressure
- No added fees
Estimated value based on Jome data, T&C apply




















Why tour with Jome?
- No pressure toursTour at your own pace with no sales pressure
- Expert guidanceGet insights from our home buying experts
- Exclusive accessSee homes and deals not available elsewhere
Jome is featured in
- Single-Family
- Under construction
- $290.27/sqft
- $2,155/annual HOA
Home description
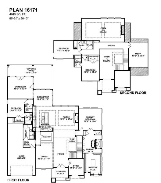
Early Stages of Construction-Still time to personalize plan and design features! Stunning 2-story, 4 bedroom home is perfectly situated in the beautiful community of Bridgeland. Experience the open concept of this home with a wall of windows, high ceilings, and natural lighting. In the heart of the home, you will find an island kitchen stocked with high-end appliances, and custom cabinetry. Plenty of room for gatherings in the first floor gameroom, with direct access to the large covered patio. A convenient home office and impressive wine area sit just off the expansive foyer. The primary suite features an oversized walk-in closet and ensuite bath. The primary bathroom has impressive finishes including a carwash shower and soaking tub. The home also features 3 secondary bedrooms (one downstairs and two upstairs) each with ensuite baths. Enjoy movie night in the upstairs media room. Spacious 3-car garage and utility room with built-ins. Close to everything the Cypress area has to offer.
Partners In Building, MLS 38477390
May also be listed on the Partners in Building website
Information last verified by Jome: Today at 2:30 AM (December 7, 2025)
Home highlights
Major Houston business hub home to energy giants, top jobs, and master-planned communities with greenbelt access.
Book your tour. Save an average of $18,473. We'll handle the rest.
We collect exclusive builder offers, book your tours, and support you from start to housewarming.
- Confirmed tours
- Get matched & compare top deals
- Expert help, no pressure
- No added fees
Estimated value based on Jome data, T&C apply
Home details
- Property status:
- Under construction
- Lot size (acres):
- 0.43
- Size:
- 4,649 sqft
- Stories:
- 2
- Beds:
- 4
- Baths:
- 4.5
- Garage spaces:
- 3
- Facing direction:
- West
Construction details
- Builder Name:
- Partners in Building
- Year Built:
- 2026
- Roof:
- Composition Roofing
Home features & finishes
- Construction Materials:
- Stucco
- Cooling:
- Ceiling Fan(s)
- Flooring:
- Wood FlooringCarpet FlooringTile Flooring
- Foundation Details:
- Slab
- Garage/Parking:
- GarageAttached Garage
- Home amenities:
- Green Construction
- Interior Features:
- Ceiling-HighWalk-In ClosetFoyerWalk-In Pantry
- Kitchen:
- DishwasherMicrowave OvenOvenDisposalGas CooktopKitchen IslandDouble Oven
- Laundry facilities:
- DryerWasher
- Property amenities:
- DeckBackyardPatioFireplace
- Rooms:
- Kitchen
Utility information
- Heating:
- Gas Heating
- Utilities:
- HVAC

Community details
Bridgeland at Bridgeland
by Partners in Building, Cypress, TX
- 4 homes
- 4,649 - 5,489 sqft
View Bridgeland details
More homes in Bridgeland
About the builder - Partners in Building
Neighborhood
Home address
Schools in Waller Independent School District
- Grades PK-KGPrivategrowing scholars montessori school6.0 mi13013 fry rdna
GreatSchools’ Summary Rating calculation is based on 4 of the school’s themed ratings, including test scores, student/academic progress, college readiness, and equity. This information should only be used as a reference. Jome is not affiliated with GreatSchools and does not endorse or guarantee this information. Please reach out to schools directly to verify all information and enrollment eligibility. Data provided by GreatSchools.org © 2025
Places of interest
Getting around
Air quality
Natural hazards risk
Climate hazards can impact homes and communities, with risks varying by location. These scores reflect the potential impact of natural disasters and climate-related risks on Harris County
Provided by FEMA

Considering this home?
Our expert will guide your tour, in-person or virtual
Need more information?
Text or call (888) 486-2818
Financials
Estimated monthly payment
Similar homes nearby
Recently added communities in this area
Nearby communities in Cypress
New homes in nearby cities
More New Homes in Cypress, TX
Partners In Building, MLS 38477390
Copyright © 2025, Houston Realtors Information Service, Inc. The information provided is exclusively for consumers’ personal, non-commercial use, and may not be used for any purpose other than to identify prospective properties consumers may be interested in purchasing. Information is deemed reliable but not guaranteed. All information provided should be independently verified.
Read moreLast checked Dec 7, 8:50 pm
- Home
- New homes
- Texas
- Greater Houston Area
- Harris County
- Cypress
- Bridgeland
- 11115 Sunny Cliff Pl, Cypress, TX 77433



























