













Book your tour. Save an average of $18,473. We'll handle the rest.
- Confirmed tours
- Get matched & compare top deals
- Expert help, no pressure
- No added fees
Estimated value based on Jome data, T&C apply
Why tour with Jome?
- No pressure toursTour at your own pace with no sales pressure
- Expert guidanceGet insights from our home buying experts
- Exclusive accessSee homes and deals not available elsewhere
Jome is featured in
- Single-Family
- Quick move-in
- $168.03/sqft
- $480/annual HOA
Home description
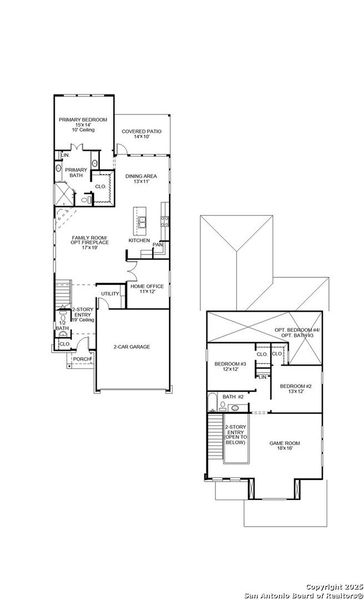
Front porch with two-story entry. Large family room with wall of windows. Home office with French door entry just off the family room. Island kitchen with built-in seating space and a corner walk-in pantry opens to the dining area. Secluded primary suite. Primary bath offers dual vanities, walk-in closet and a large glass enclosed shower. Second level offers a large game room with a wall of windows, secondary bedrooms with walk-in closets, two full bathrooms and a linen closet. Covered backyard patio and a multi-zone sprinkler system. Utility room just off two-car garage.
Perry Homes Realty, LLC, MLS 1919518
May also be listed on the Perry Homes website
Information last verified by Jome: Today at 2:02 AM (January 18, 2026)
Book your tour. Save an average of $18,473. We'll handle the rest.
We collect exclusive builder offers, book your tours, and support you from start to housewarming.
- Confirmed tours
- Get matched & compare top deals
- Expert help, no pressure
- No added fees
Estimated value based on Jome data, T&C apply
Home details
- Property status:
- Move-in ready
- Lot size (acres):
- 0.11
- Size:
- 2,618 sqft
- Stories:
- 2
- Beds:
- 4
- Baths:
- 3.5
- Garage spaces:
- 2
- Fence:
- Privacy Fence
- Facing direction:
- South
Construction details
- Builder Name:
- Perry Homes
- Year Built:
- 2025
- Roof:
- Composition Roofing
Home features & finishes
- Appliances:
- Sprinkler System
- Cooling:
- Central Air
- Flooring:
- Ceramic FlooringStone FlooringCarpet FlooringTile Flooring
- Foundation Details:
- Slab
- Garage/Parking:
- GarageAttached Garage
- Home amenities:
- Home Accessibility FeaturesGreen Construction
- Interior Features:
- Walk-In Closet
- Laundry facilities:
- Utility/Laundry Room
- Property amenities:
- SodBathtub in primaryPatioFireplace
- Rooms:
- Flex RoomKitchenGame RoomOffice/StudyDining RoomFamily Room
Room details
Master Bedroom
Kitchen
Dining Room

Get a consultation with our New Homes Expert
- See how your home builds wealth
- Plan your home-buying roadmap
- Discover hidden gems
Utility information
- Heating:
- Central Heating, Gas Heating
- Utilities:
- City Water System

Community details
Veranda 40' at Veranda
by Perry Homes, San Antonio, TX
- 4 homes
- 1,556 - 2,618 sqft
View Veranda 40' details
More homes in Veranda 40'
- Home at address 1529 Alsatian Ave, San Antonio, TX 78253

2392W
$424,900
- 4 bd
- 3.5 ba
- 2,392 sqft
1529 Alsatian Ave, San Antonio, TX 78253
- Home at address 1556 Alsatian Ave, San Antonio, TX 78253

2585W
$439,900
- 5 bd
- 4 ba
- 1,556 sqft
1556 Alsatian Ave, San Antonio, TX 78253
Floor plans in Veranda 40'
About the builder - Perry Homes

- 248communities on Jome
- 1,331homes on Jome
Neighborhood
Home address
- City:
- San Antonio
- County:
- Bexar
- Zip Code:
- 78253
Schools in Northside Independent School District
- Grades PK-06Privatelittle lions learning academy0.5 mi1127 mindie lnna
GreatSchools’ Summary Rating calculation is based on 4 of the school’s themed ratings, including test scores, student/academic progress, college readiness, and equity. This information should only be used as a reference. Jome is not affiliated with GreatSchools and does not endorse or guarantee this information. Please reach out to schools directly to verify all information and enrollment eligibility. Data provided by GreatSchools.org © 2025
Places of interest
Getting around
Air quality

Considering this home?
Our expert will guide your tour, in-person or virtual
Need more information?
Text or call (888) 486-2818
Financials
Estimated monthly payment
Let us help you find your dream home
How many bedrooms are you looking for?
Similar homes nearby
Recently added communities in this area
Nearby communities in San Antonio
New homes in nearby cities
More New Homes in San Antonio, TX
Perry Homes Realty, LLC, MLS 1919518
IDX information is provided exclusively for personal, non-commercial use, and may not be used for any purpose other than to identify prospective properties consumers may be interested in purchasing. Information is deemed reliable but not guaranteed.
Read moreLast checked Jan 18, 7:00 am
- Jome
- New homes search
- Texas
- Greater San Antonio
- Bexar County
- San Antonio
- Veranda 40'
- 13215 Klein Pr, San Antonio, TX 78253




























