








Book your tour. Save an average of $18,473. We'll handle the rest.
We collect exclusive builder offers, book your tours, and support you from start to housewarming.
- Confirmed tours
- Get matched & compare top deals
- Expert help, no pressure
- No added fees
Estimated value based on Jome data, T&C apply















Why tour with Jome?
- No pressure toursTour at your own pace with no sales pressure
- Expert guidanceGet insights from our home buying experts
- Exclusive accessSee homes and deals not available elsewhere
Jome is featured in
- Single-Family
- Quick move-in
- $255.9/sqft
- $2,340/annual HOA
Home description
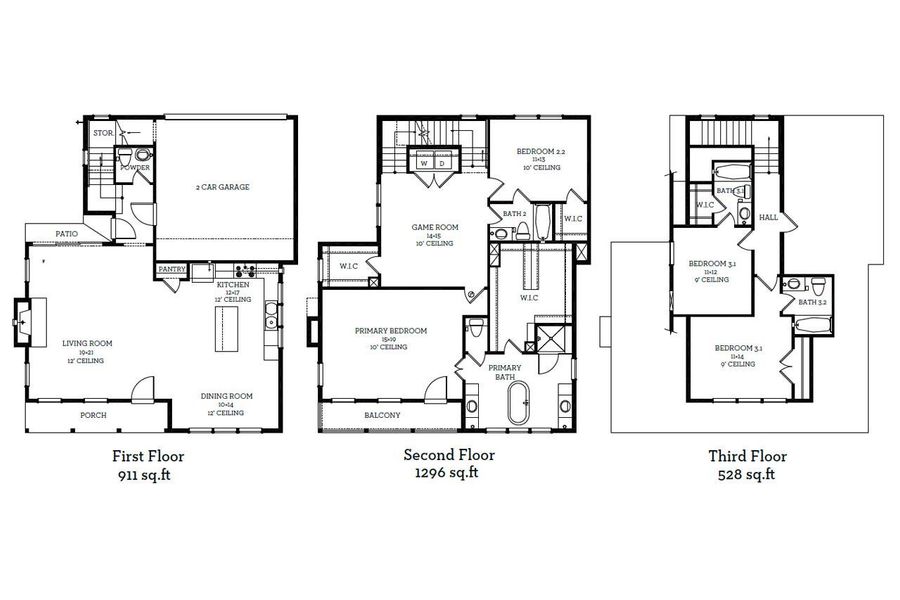
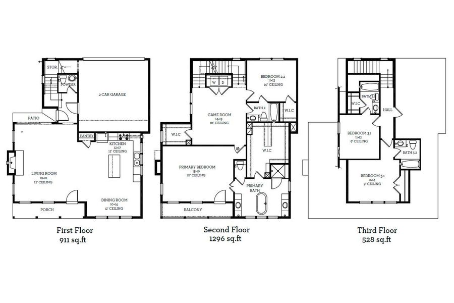
Model Home with 4 bedrooms and a Game Room! 1st floor living with a nice front porch facing a lushly landscaped courtyard on the end so you have open views! 10' tall glass retractable doors to back yard so you can extend your living space to the outdoors. Nice fireplace too! Bosch appliances in kitchen, quartz countertops and furniture grade cabinets in white and gray. Large island. Primary Suite is superb with free floating soaking tub, separate vanities and so much natural light! Huge freestanding shower with bench seat and a closet that is the size of a secondary bedroom! Game room in the middle of the 2nd floor perfect for the kids or gatherings. Home has so much flexibility with 2 living areas and 4 bedrooms. Easy access into Downtown, Medical Center, freeways to airports, and U of H. Great restaurants surround the neighborhood including James Beard award winners! 2 blocks to the light rail going to Downtown and the Med Center.
Intown Homes, MLS 17733262
May also be listed on the InTown Homes website
Information last verified by Jome: Today at 2:50 PM (April 20, 2026)
Book your tour. Save an average of $18,473. We'll handle the rest.
We collect exclusive builder offers, book your tours, and support you from start to housewarming.
- Confirmed tours
- Get matched & compare top deals
- Expert help, no pressure
- No added fees
Estimated value based on Jome data, T&C apply
Home details
- Property status:
- Move-in ready
- Neighborhood:
- Greater Eastwood
- Lot size (acres):
- 0.06
- Size:
- 2,735 sqft
- Stories:
- 3+
- Beds:
- 4
- Baths:
- 4
- Half baths:
- 1
- Garage spaces:
- 2
- Fence:
- Partial Fence
- Facing direction:
- East
Construction details
- Builder Name:
- InTown Homes
- Year Built:
- 2026
- Roof:
- Composition Roofing
Home features & finishes
- Appliances:
- Sprinkler System
- Construction Materials:
- Cement
- Cooling:
- Ceiling Fan(s)
- Flooring:
- Wood FlooringCarpet FlooringTile Flooring
- Foundation Details:
- Slab
- Garage/Parking:
- GarageAttached Garage
- Home amenities:
- ENERGY STAR CertifiedGreen Construction
- Interior Features:
- Ceiling-HighWalk-In ClosetCrown MoldingFoyerPantryStorageSound System Wiring
- Kitchen:
- DishwasherMicrowave OvenRefrigeratorDisposalGas CooktopKitchen Island
- Laundry facilities:
- DryerWasherUtility/Laundry Room
- Property amenities:
- BalconyGas Log FireplaceBackyardPots & Pans DrawersCabinetsFireplaceYardPorch
- Rooms:
- KitchenPowder RoomGame RoomDining RoomFamily RoomOpen Concept FloorplanPrimary Bedroom Upstairs

Get a consultation with our New Homes Expert
- See how your home builds wealth
- Plan your home-buying roadmap
- Discover hidden gems
Utility information
- Heating:
- Water Heater, Gas Heating
- Sewer:
- Public Sewer
- Utilities:
- HVAC
- Water source:
- Public

Community details
Eastwood Green
by InTown Homes, Houston, TX
- 6 homes
- 2,206 - 3,169 sqft
View Eastwood Green details
More homes in Eastwood Green
- Home at address 5304 S Capitol St, Houston, TX 77023

Home
$650,000
- 4 bd
- 4.5 ba
- 2,539 sqft
5304 S Capitol St, Houston, TX 77023
- Home at address 642 Delmar St, Houston, TX 77011

Home
$700,500
- 4 bd
- 4.5 ba
- 2,735 sqft
642 Delmar St, Houston, TX 77011
- Home at address 5302 S Capitol St, Houston, TX 77011

Home
$750,000
- 4 bd
- 4.5 ba
- 2,879 sqft
5302 S Capitol St, Houston, TX 77011
- Home at address 5206 S Capitol St, Houston, TX 77023

Home
$825,000
- 4 bd
- 4.5 ba
- 3,169 sqft
5206 S Capitol St, Houston, TX 77023
About the builder - InTown Homes
Neighborhood
Home address
- Neighborhood:
- Greater Eastwood
- City:
- Houston
Schools in Houston Independent School District
GreatSchools’ Summary Rating calculation is based on 4 of the school’s themed ratings, including test scores, student/academic progress, college readiness, and equity. This information should only be used as a reference. Jome is not affiliated with GreatSchools and does not endorse or guarantee this information. Please reach out to schools directly to verify all information and enrollment eligibility. Data provided by GreatSchools.org © 2025
Places of interest
Getting around
7 nearby routes: 5 bus, 2 rail, 0 otherAir quality
Noise level
A Soundscore™ rating is a number between 50 (very loud) and 100 (very quiet) that tells you how loud a location is due to environmental noise.

Considering this home?
Our expert will guide your tour, in-person or virtual
Need more information?
Text or call (888) 545-5198
Financials
Estimated monthly payment
Let us help you find your dream home
How many bedrooms are you looking for?
Similar homes nearby
Recently added communities in this area
Nearby communities in Houston
New homes in nearby cities
More New Homes in Houston, TX
Intown Homes, MLS 17733262
Copyright © 2025, Houston Realtors Information Service, Inc. The information provided is exclusively for consumers’ personal, non-commercial use, and may not be used for any purpose other than to identify prospective properties consumers may be interested in purchasing. Information is deemed reliable but not guaranteed. All information provided should be independently verified.
Read moreLast checked Apr 20, 8:50 pm
- Jome
- New homes search
- Texas
- Greater Houston Area
- Harris County
- Houston
- Eastwood Green
- 642 Delmar St, Houston, TX 77023


























