



Book your tour. Save an average of $18,473. We'll handle the rest.
- Confirmed tours
- Get matched & compare top deals
- Expert help, no pressure
- No added fees
Estimated value based on Jome data, T&C apply
- 3 bd
- 3.5 ba
- 2,049 sqft
200 W 56Th St, Unit 3104, Austin, TX 78751
Why tour with Jome?
- No pressure toursTour at your own pace with no sales pressure
- Expert guidanceGet insights from our home buying experts
- Exclusive accessSee homes and deals not available elsewhere
Jome is featured in
- Multi-Family
- $329.92/sqft
- $295/monthly HOA
- 783 days on Jome
Home description
Kramer (2033 sq. ft.) is a townhome with 3 bedrooms, 3 bathrooms and 2-car garage. Excludes land.
May also be listed on the Milestone Community Builders website
Information last verified by Jome: Friday at 5:50 AM (April 19, 2024)
Home highlights
UT Austin pulses with music, research, and burnt orange spirit at the heart of the city.
Book your tour. Save an average of $18,473. We'll handle the rest.
We collect exclusive builder offers, book your tours, and support you from start to housewarming.
- Confirmed tours
- Get matched & compare top deals
- Expert help, no pressure
- No added fees
Estimated value based on Jome data, T&C apply
Home details
- Property status:
- Not available
- Neighborhood:
- Highland
- Size:
- 2,049 sqft
- Stories:
- 3+
- Beds:
- 3
- Baths:
- 3.5
- Garage spaces:
- 2
Construction details
- Builder Name:
- Milestone Community Builders
- Completion Date:
- January, 2024
Home features & finishes
- Garage/Parking:
- GarageCar Charging Stations
- Interior Features:
- Ceiling-High
- Kitchen:
- Gas Cooktop
- Laundry facilities:
- DryerWasher
- Property amenities:
- Bathtub in primary
- Rooms:
- Flex RoomOffice/Study

Get a consultation with our New Homes Expert
- See how your home builds wealth
- Plan your home-buying roadmap
- Discover hidden gems

Community details
Koenig Townhomes
by Milestone Community Builders, Austin, TX
- 10 homes
- 2 plans
- 1,525 - 1,525 sqft
View Koenig Townhomes details
More homes in Koenig Townhomes
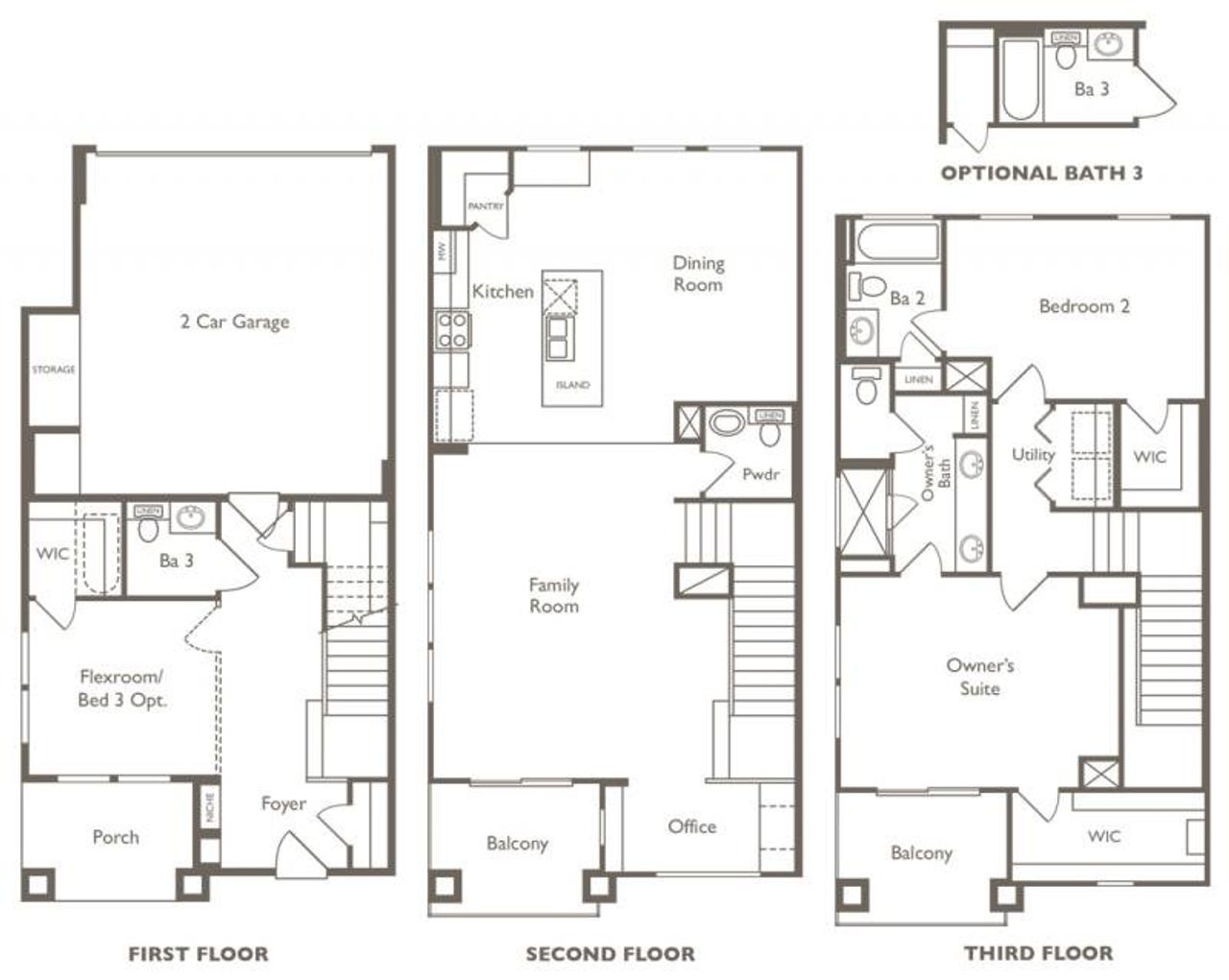
Floor plans in Koenig Townhomes
About the builder - Milestone Community Builders
Neighborhood
Home address
Schools in Austin Independent School District
- Grades 06-12Privateacademy of thought and industry austin0.4 mi5815 airport blvdna
GreatSchools’ Summary Rating calculation is based on 4 of the school’s themed ratings, including test scores, student/academic progress, college readiness, and equity. This information should only be used as a reference. Jome is not affiliated with GreatSchools and does not endorse or guarantee this information. Please reach out to schools directly to verify all information and enrollment eligibility. Data provided by GreatSchools.org © 2025
Places of interest
Getting around
12 nearby routes: 11 bus, 1 rail, 0 otherAir quality
Noise level
A Soundscore™ rating is a number between 50 (very loud) and 100 (very quiet) that tells you how loud a location is due to environmental noise.
Natural hazards risk
Climate hazards can impact homes and communities, with risks varying by location. These scores reflect the potential impact of natural disasters and climate-related risks on Travis County
Provided by FEMA

Considering this home?
Our expert will guide your tour, in-person or virtual
Need more information?
Text or call (888) 486-2818
Financials
Let us help you find your dream home
How many bedrooms are you looking for?
Similar homes nearby
Recently added communities in this area
Nearby communities in Austin
New homes in nearby cities
More New Homes in Austin, TX
- Jome
- New homes search
- Texas
- Greater Austin Area
- Travis County
- Austin
- Koenig Townhomes
- 200 W 56Th St, Unit 3104, Austin, TX 78751































