



Book your tour. Save an average of $18,473. We'll handle the rest.
We collect exclusive builder offers, book your tours, and support you from start to housewarming.
- Confirmed tours
- Get matched & compare top deals
- Expert help, no pressure
- No added fees
Estimated value based on Jome data, T&C apply

Why tour with Jome?
- No pressure toursTour at your own pace with no sales pressure
- Expert guidanceGet insights from our home buying experts
- Exclusive accessSee homes and deals not available elsewhere
Jome is featured in
- Single-Family
- Under construction
- $252.46/sqft
- 47 days on Jome
Home description
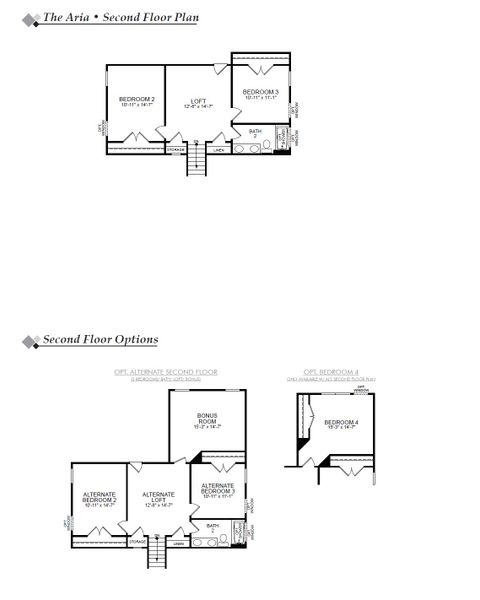
The Aria is a three-bedroom, two-and-a-half-bath home with an alley garage, first-floor primary bedroom with attached primary bath, formal dining room, spacious family room, kitchen with island and pantry, and a covered rear porch. The second floor features two bedrooms, a full bath, and an upstairs loft.
May also be listed on the Eastwood Homes website
Information last verified by Jome: Today at 6:28 AM (April 20, 2026)
Book your tour. Save an average of $18,473. We'll handle the rest.
We collect exclusive builder offers, book your tours, and support you from start to housewarming.
- Confirmed tours
- Get matched & compare top deals
- Expert help, no pressure
- No added fees
Estimated value based on Jome data, T&C apply
Home details
- Property status:
- Under construction
- Size:
- 2,032 sqft
- Stories:
- 2
- Beds:
- 3
- Baths:
- 2
- Half baths:
- 1
- Garage spaces:
- 2
Construction details
- Builder Name:
- Eastwood Homes
Home features & finishes
- Garage/Parking:
- GarageAttached Garage
- Interior Features:
- Walk-In ClosetFoyerPantryTray CeilingLoft
- Laundry facilities:
- Utility/Laundry Room
- Property amenities:
- Porch
- Rooms:
- KitchenPowder RoomDining RoomFamily RoomPrimary Bedroom Downstairs

Get a consultation with our New Homes Expert
- See how your home builds wealth
- Plan your home-buying roadmap
- Discover hidden gems

Community details
Colleton Park
by Eastwood Homes, Aiken, SC
- 4 homes
- 2,032 - 3,215 sqft
View Colleton Park details
More homes in Colleton Park
- Home at address B3 Pascalis Pl, Aiken, SC 29803

Cannon
$488,990
- 3 bd
- 2.5 ba
- 2,080 sqft
B3 Pascalis Pl, Aiken, SC 29803
- Home at address 371 Pascalis Pl, Aiken, SC 29803

Brinson
$519,990
- 3 bd
- 2.5 ba
- 2,772 sqft
371 Pascalis Pl, Aiken, SC 29803
- Home at address 252 Devereux Dr, Aiken, SC 29803

Vanderhorst
$635,990
- 4 bd
- 3.5 ba
- 3,215 sqft
252 Devereux Dr, Aiken, SC 29803
About the builder - Eastwood Homes
Neighborhood
Home address
Schools in Aiken County School District
GreatSchools’ Summary Rating calculation is based on 4 of the school’s themed ratings, including test scores, student/academic progress, college readiness, and equity. This information should only be used as a reference. Jome is not affiliated with GreatSchools and does not endorse or guarantee this information. Please reach out to schools directly to verify all information and enrollment eligibility. Data provided by GreatSchools.org © 2025
Getting around
Air quality

Considering this home?
Our expert will guide your tour, in-person or virtual
Need more information?
Text or call (888) 545-5198
Financials
Estimated monthly payment
Let us help you find your dream home
How many bedrooms are you looking for?
Similar homes nearby
Recently added communities in this area
Nearby communities in Aiken
New homes in nearby cities
More New Homes in Aiken, SC
- Jome
- New homes search
- South Carolina
- Aiken County
- Aiken
- Colleton Park
- 263 Devereux Dr, Aiken, SC 29803



























