


Book your tour. Save an average of $18,473. We'll handle the rest.
We collect exclusive builder offers, book your tours, and support you from start to housewarming.
- Confirmed tours
- Get matched & compare top deals
- Expert help, no pressure
- No added fees
Estimated value based on Jome data, T&C apply


Why tour with Jome?
- No pressure toursTour at your own pace with no sales pressure
- Expert guidanceGet insights from our home buying experts
- Exclusive accessSee homes and deals not available elsewhere
Jome is featured in
- Single-Family
- Under construction
- $160.48/sqft
- 102 days on Jome
Home description
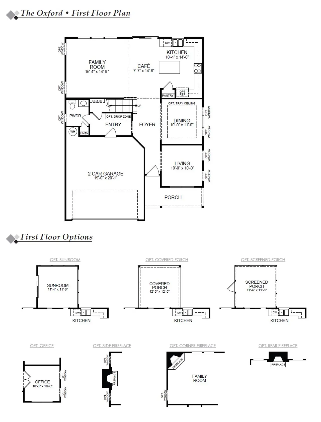
The Oxford is a two-story, four-bedroom, two-and-a-half-bath home with a formal living room, formal dining room, kitchen with island, spacious family room, and a covered rear porch. The second floor features all four bedrooms, an unfinished storage area, and a laundry room.
May also be listed on the Eastwood Homes website
Information last verified by Jome: Yesterday at 6:40 AM (May 24, 2026)
Book your tour. Save an average of $18,473. We'll handle the rest.
We collect exclusive builder offers, book your tours, and support you from start to housewarming.
- Confirmed tours
- Get matched & compare top deals
- Expert help, no pressure
- No added fees
Estimated value based on Jome data, T&C apply
Home details
- Property status:
- Under construction
- Size:
- 2,212 sqft
- Stories:
- 2
- Beds:
- 4
- Baths:
- 2
- Half baths:
- 1
- Garage spaces:
- 2
Construction details
- Builder Name:
- Eastwood Homes
Home features & finishes
- Garage/Parking:
- Garage
- Interior Features:
- Tray CeilingLoft
- Property amenities:
- Porch
- Rooms:
- Dining Room

Get a consultation with our New Homes Expert
- See how your home builds wealth
- Plan your home-buying roadmap
- Discover hidden gems

Community details
Highland Bluff
by Eastwood Homes, Aiken, SC
- 5 homes
- 7 plans
- 1,477 - 2,520 sqft
View Highland Bluff details
More homes in Highland Bluff
- Home at address 646 Pherson St, Aiken, SC 29801

Ellerbe
$329,990
- 4 bd
- 2.5 ba
- 1,913 sqft
646 Pherson St, Aiken, SC 29801
Floor plans in Highland Bluff
About the builder - Eastwood Homes
Neighborhood
Home address
Schools in Aiken County School District
- Grades M-MPublicaiken performing arts academy charter0.5 mi130 avery lanena
GreatSchools’ Summary Rating calculation is based on 4 of the school’s themed ratings, including test scores, student/academic progress, college readiness, and equity. This information should only be used as a reference. Jome is not affiliated with GreatSchools and does not endorse or guarantee this information. Please reach out to schools directly to verify all information and enrollment eligibility. Data provided by GreatSchools.org © 2025
Getting around
Air quality

Considering this home?
Our expert will guide your tour, in-person or virtual
Need more information?
Text or call (888) 545-5198
Financials
Estimated monthly payment
Let us help you find your dream home
How many bedrooms are you looking for?
Similar homes nearby
Recently added communities in this area
Nearby communities in Aiken
New homes in nearby cities
More New Homes in Aiken, SC
- Jome
- New homes search
- South Carolina
- Aiken County
- Aiken
- Highland Bluff
- 660 Pherson St, Aiken, SC 29801




























