














Book your tour. Save an average of $18,473. We'll handle the rest.
- Confirmed tours
- Get matched & compare top deals
- Expert help, no pressure
- No added fees
Estimated value based on Jome data, T&C apply



- 4 bd
- 2.5 ba
- 2,701 sqft
5000 Connor Ct, North Charleston, SC 29406
Why tour with Jome?
- No pressure toursTour at your own pace with no sales pressure
- Expert guidanceGet insights from our home buying experts
- Exclusive accessSee homes and deals not available elsewhere
Jome is featured in
- Single-Family
- Quick move-in
- $179.53/sqft
- 0.15-acre lot
Home description
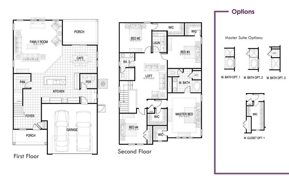
LET'S BUILD THIS DREAM HOME FOR YOU! 3-4 Beds. Welcome to the Del Mar II Home Plan--where comfort meets sophistication in this stunning two-story retreat! From the moment you step through the grand foyer, you'll feel the wow-factor. The open-concept layout flows effortlessly into a chef-inspired kitchen with a massive island perfect for casual breakfasts, lively dinner parties, or late-night chats with friends. The primary suite is a true sanctuary--spacious, serene, and fit for royalty--with 2 walk-in closets that dreams are made of.Need extra space? The generously sized additional bedrooms and loft are ideal for guests, a cozy home office, or your personal creative studio. Enjoy the convenience of a finished 2-car garage elegant craftsman-style trim and soaring 9-ft ceilings. Don't miss your chance to live in luxury and style!Your Home, Your Vision. This isn't just a house it's a blank canvas waiting for your personal touch. Step into a space where your imagination leads the way. Whether you're drawn to bold colors, warm textures, or sleek modern lines, this home is designed to reflect you. Make your mark. Create a space that tells your story. Indigo Place is more than a place to live it's a place to thrive.
HQ Real Estate LLC, MLS 25022693
May also be listed on the Hunter Quinn Homes website
Information last verified by Jome: Today at 7:37 AM (January 18, 2026)
Book your tour. Save an average of $18,473. We'll handle the rest.
We collect exclusive builder offers, book your tours, and support you from start to housewarming.
- Confirmed tours
- Get matched & compare top deals
- Expert help, no pressure
- No added fees
Estimated value based on Jome data, T&C apply
Home details
- Property status:
- Move-in ready
- Lot size (acres):
- 0.15
- Size:
- 2,701 sqft
- Stories:
- 2
- Beds:
- 4
- Baths:
- 2
- Half baths:
- 1
- Garage spaces:
- 2
Construction details
- Builder Name:
- Hunter Quinn Homes
- Year Built:
- 2025
Home features & finishes
- Construction Materials:
- Vinyl Siding
- Cooling:
- Central Air
- Flooring:
- Ceramic FlooringLaminate FlooringVinyl FlooringTile Flooring
- Garage/Parking:
- Garage
- Interior Features:
- Ceiling-HighWalk-In ClosetLoftGarden Tub
- Kitchen:
- Kitchen Island
- Laundry facilities:
- WasherUtility/Laundry Room
- Property amenities:
- Patio
- Rooms:
- Dining RoomLiving Room

Get a consultation with our New Homes Expert
- See how your home builds wealth
- Plan your home-buying roadmap
- Discover hidden gems
Utility information
- Heating:
- Heat Pump

Community details
Indigo Place
by Hunter Quinn Homes, North Charleston, SC
- 12 homes
- 9 plans
- 1,470 - 3,095 sqft
View Indigo Place details
More homes in Indigo Place
- Home at address 8619 Connor Ct, North Charleston, SC 29406

Arlington
$449,000
- 4 bd
- 3 ba
- 2,020 sqft
8619 Connor Ct, North Charleston, SC 29406
- Home at address 4000 Connor Ct, North Charleston, SC 29406

Home
$461,900
- 5 bd
- 3.5 ba
- 2,298 sqft
4000 Connor Ct, North Charleston, SC 29406
- Home at address 8625 Connor Ct, North Charleston, SC 29406

Arlington
$494,960
- 4 bd
- 3 ba
- 2,020 sqft
8625 Connor Ct, North Charleston, SC 29406
- Home at address 7000 Connor Ct, North Charleston, SC 29406

Home
$499,900
- 4 bd
- 3.5 ba
- 2,840 sqft
7000 Connor Ct, North Charleston, SC 29406
- Home at address 8000 Connor Ct, North Charleston, SC 29406

Home
$518,900
- 5 bd
- 3.5 ba
- 3,095 sqft
8000 Connor Ct, North Charleston, SC 29406
- Home at address 8617 Connor Ct, North Charleston, SC 29406

Maywood I
$529,000
- 4 bd
- 3 ba
- 2,800 sqft
8617 Connor Ct, North Charleston, SC 29406
Floor plans in Indigo Place
About the builder - Hunter Quinn Homes
Neighborhood
Home address
- City:
- North Charleston
- County:
- Charleston
- Zip Code:
- 29406
Schools in Charleston County School District
GreatSchools’ Summary Rating calculation is based on 4 of the school’s themed ratings, including test scores, student/academic progress, college readiness, and equity. This information should only be used as a reference. Jome is not affiliated with GreatSchools and does not endorse or guarantee this information. Please reach out to schools directly to verify all information and enrollment eligibility. Data provided by GreatSchools.org © 2025
Places of interest
Getting around
Air quality
Noise level
A Soundscore™ rating is a number between 50 (very loud) and 100 (very quiet) that tells you how loud a location is due to environmental noise.

Considering this home?
Our expert will guide your tour, in-person or virtual
Need more information?
Text or call (888) 486-2818
Financials
Estimated monthly payment
Let us help you find your dream home
How many bedrooms are you looking for?
Similar homes nearby
Recently added communities in this area
Nearby communities in North Charleston
New homes in nearby cities
More New Homes in North Charleston, SC
HQ Real Estate LLC, MLS 25022693
IDX information is provided exclusively for personal, non-commercial use, and may not be used for any purpose other than to identify prospective properties consumers may be interested in purchasing. Copyright Charleston Trident Multiple Listing Service, Inc. All rights reserved. Information is deemed reliable but not guaranteed.
Read moreLast checked Jan 18, 1:55 pm
- Jome
- New homes search
- South Carolina
- Charleston Metropolitan Area
- Charleston County
- North Charleston
- Indigo Place
- 5000 Connor Ct, North Charleston, SC 29406

































