














Book your tour. Save an average of $18,473. We'll handle the rest.
- Confirmed tours
- Get matched & compare top deals
- Expert help, no pressure
- No added fees
Estimated value based on Jome data, T&C apply







Why tour with Jome?
- No pressure toursTour at your own pace with no sales pressure
- Expert guidanceGet insights from our home buying experts
- Exclusive accessSee homes and deals not available elsewhere
Jome is featured in
- Single-Family
- Under construction
- $198.69/sqft
- 0.15-acre lot
Home description
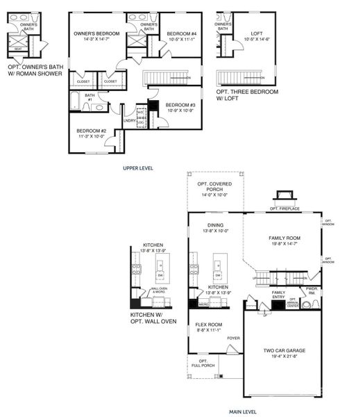
Welcome to the Ballenger — a spacious, flexible home designed to fit your lifestyle. Choose from beautiful exteriors with covered entries and personalize your interior with a flex room perfect for an office, study, or relaxation. The open-concept family room flows seamlessly into a modern kitchen featuring kitchen cabinets with crown moulding, quartz countertops, and a stylish wall tile backsplash, plus stainless-steel appliances. Elevate your cooking space with an optional wall oven. Add extra windows or a covered porch to enjoy sunny days, or a cozy fireplace for chilly evenings. A coat closet and family entry on the main level add everyday convenience. Upstairs, find three large bedrooms including an owner’s suite with two walk-in closets and a spa-like bath with dual vanities and a framed shower door. A linen closet and second-floor laundry offer added ease. Fourth bedroom converted into loft — ideal for a playroom, homework zone, or creative space. Located minutes from I-485, I-77, and local schools, enjoy shopping and dining at Riverbend Village, Super Target, and Lowe’s, or explore Mountain Island Lake. Future amenities include a pocket park and gathering space — perfect for making memories. To be built. Primary residence. Photos for illustrative purposes only.
NVR Homes, Inc./Ryan Homes, MLS CAR4313771
May also be listed on the Ryan Homes website
Information last verified by Jome: Today at 5:00 AM (December 19, 2025)
Home highlights
Major public research university in Charlotte offering strong STEM programs and fueling regional innovation and growth.
Book your tour. Save an average of $18,473. We'll handle the rest.
We collect exclusive builder offers, book your tours, and support you from start to housewarming.
- Confirmed tours
- Get matched & compare top deals
- Expert help, no pressure
- No added fees
Estimated value based on Jome data, T&C apply
Home details
- Property status:
- Under construction
- Lot size (acres):
- 0.15
- Size:
- 2,149 sqft
- Stories:
- 2
- Beds:
- 3
- Baths:
- 2
- Half baths:
- 1
- Garage spaces:
- 2
Construction details
- Builder Name:
- Ryan Homes
- Year Built:
- 2026
Home features & finishes
- Construction Materials:
- Cement
- Flooring:
- Vinyl FlooringCarpet Flooring
- Foundation Details:
- Slab
- Garage/Parking:
- Door OpenerGarageFront Entry Garage/ParkingAttached Garage
- Interior Features:
- Walk-In ClosetFoyerPantrySliding DoorsStorage
- Kitchen:
- DishwasherMicrowave OvenDisposalKitchen IslandKitchen RangeElectric Oven
- Laundry facilities:
- Laundry Facilities On Upper LevelDryerWasherUtility/Laundry Room
- Property amenities:
- PatioPorch
- Rooms:
- AtticOpen Concept Floorplan
- Security system:
- Smoke DetectorCarbon Monoxide Detector

Get a consultation with our New Homes Expert
- See how your home builds wealth
- Plan your home-buying roadmap
- Discover hidden gems
Utility information
- Heating:
- Water Heater, Gas Heating
- Utilities:
- Natural Gas on Property, Underground Utilities, Cable Available

Community details
Kelton
by Ryan Homes, Charlotte, NC
- 1 home
- 7 plans
- 1,868 - 3,010 sqft
View Kelton details
Community amenities
- Sidewalks Available
- Recreational Facilities
Floor plans in Kelton
About the builder - Ryan Homes
Neighborhood
Home address
- City:
- Charlotte
- County:
- Mecklenburg
- Zip Code:
- 28216
Schools in Charlotte-Mecklenburg Schools
- Grades PK-12Privatebrisbane academy3.2 mi5901 statesville rdna
GreatSchools’ Summary Rating calculation is based on 4 of the school’s themed ratings, including test scores, student/academic progress, college readiness, and equity. This information should only be used as a reference. Jome is not affiliated with GreatSchools and does not endorse or guarantee this information. Please reach out to schools directly to verify all information and enrollment eligibility. Data provided by GreatSchools.org © 2025
Places of interest
Getting around
Air quality
Noise level
A Soundscore™ rating is a number between 50 (very loud) and 100 (very quiet) that tells you how loud a location is due to environmental noise.
Natural hazards risk
Climate hazards can impact homes and communities, with risks varying by location. These scores reflect the potential impact of natural disasters and climate-related risks on Mecklenburg County
Provided by FEMA

Considering this home?
Our expert will guide your tour, in-person or virtual
Need more information?
Text or call (888) 486-2818
Financials
Estimated monthly payment
Let us help you find your dream home
How many bedrooms are you looking for?
Similar homes nearby
Recently added communities in this area
Nearby communities in Charlotte
New homes in nearby cities
More New Homes in Charlotte, NC
NVR Homes, Inc./Ryan Homes, MLS CAR4313771
Based on information submitted to the MLS GRID as of 10/21/2024 2:31 PM CDT. All data is obtained from various sources and may not have been verified by the broker or MLS GRID. Supplied Open House Information is subject to change without notice. All information should be independently reviewed and verified for accuracy. Properties may or may not be listed by the office/agent presenting the information. Properties displayed may be listed or sold by various participants in the MLS. The Digital Millennium Copyright Act of 1998, 17 U.S.C. § 512 (the “DMCA”) provides recourse for copyright owners who believe that material appearing on the Internet infringes their rights under U.S. copyright law. If you believe in good faith that any content or material made available in connection with our website or services infringes your copyright, you (or your agent) may send us a notice requesting that the content or material be removed, or access to it blocked. Notices must be sent in writing by email to DMCAnotice@MLSGrid.com. The DMCA requires that your notice of alleged copyright infringement include the following information: (1) description of the copyrighted work that is the subject of claimed infringement; (2) description of the alleged infringing content and information sufficient to permit us to locate the content; (3) contact information for you, including your address, telephone number and email address; (4) a statement by you that you have a good faith belief that the content in the manner complained of is not authorized by the copyright owner, or its agent, or by the operation of any law; (5) a statement by you, signed under penalty of perjury, that the information in the notification is accurate and that you have the authority to enforce the copyrights that are claimed to be infringed; and (6) a physical or electronic signature of the copyright owner or a person authorized to act on the copyright owner’s behalf. Failure to include all of the above information may result in the delay of the processing of your complaint.
Read moreLast checked Dec 19, 5:00 am
- Jome
- New homes search
- North Carolina
- Charlotte Metropolitan Area
- Mecklenburg County
- Charlotte
- Kelton
- 5006 Pineapple Lily Wy, Charlotte, NC 28216




































