








Book your tour. Save an average of $18,473. We'll handle the rest.
We collect exclusive builder offers, book your tours, and support you from start to housewarming.
- Confirmed tours
- Get matched & compare top deals
- Expert help, no pressure
- No added fees
Estimated value based on Jome data, T&C apply






























Why tour with Jome?
- No pressure toursTour at your own pace with no sales pressure
- Expert guidanceGet insights from our home buying experts
- Exclusive accessSee homes and deals not available elsewhere
Jome is featured in
- Townhouse
- Quick move-in
- $198.02/sqft
- $160/monthly HOA
Home description
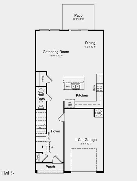
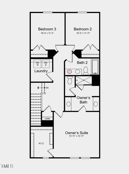
New Construction - April Completion! Built by America's Most Trusted Home Builder. Welcome to the Magnolia at 8763 Wardle Court in Forestville Station! This charming two-story townhome is where connection and comfort come naturally. From the covered front porch, step into an open layout that flows from the foyer to a stylish kitchen with a center island, generous storage, and easy access to the dining area and great room. Upstairs, the spacious primary suite stretches across the front of the home and features a walk-in closet and two separate vanities for smooth mornings. Two secondary bedrooms share a full bath, and the laundry room is thoughtfully placed for convenience. Located in Forestville Station, you'll love being close to top-rated Wake County schools, I-540, I-40, and all the best of downtown Raleigh, Durham, and Research Triangle Park. Additional highlights include: an additional sink added to the secondary bathroom. Photos are for representative purposes only. MLS#10116686
Taylor Morrison of Carolinas,, MLS 10116686
May also be listed on the Taylor Morrison website
Information last verified by Jome: Yesterday at 10:10 PM (April 14, 2026)
Home highlights
Book your tour. Save an average of $18,473. We'll handle the rest.
We collect exclusive builder offers, book your tours, and support you from start to housewarming.
- Confirmed tours
- Get matched & compare top deals
- Expert help, no pressure
- No added fees
Estimated value based on Jome data, T&C apply
Home details
- Property status:
- Move-in ready
- Lot size (acres):
- 0.05
- Size:
- 1,616 sqft
- Stories:
- 2
- Beds:
- 3
- Baths:
- 2
- Half baths:
- 1
- Garage spaces:
- 1
- Fence:
- No Fence
- Facing direction:
- Northeast
Construction details
- Builder Name:
- Taylor Morrison
- Year Built:
- 2026
- Roof:
- Roof Gutter, Shingle Roofing
Home features & finishes
- Construction Materials:
- CementStone
- Cooling:
- Central Air
- Flooring:
- Laminate FlooringCarpet FlooringTile Flooring
- Foundation Details:
- Slab
- Garage/Parking:
- Door OpenerGarageFront Entry Garage/ParkingAttached Garage
- Interior Features:
- Walk-In Closet
- Kitchen:
- DishwasherMicrowave OvenGas CooktopQuartz countertopKitchen IslandGas OvenKitchen Range
- Laundry facilities:
- Laundry Facilities On Upper LevelUtility/Laundry Room
- Property amenities:
- Cul-de-sacBasementLandscapingPorch
- Rooms:
- KitchenDining Room
Room details
Master Bedroom
Dining Room
Bedroom 2

Get a consultation with our New Homes Expert
- See how your home builds wealth
- Plan your home-buying roadmap
- Discover hidden gems
Utility information
- Heating:
- Zoned Heating, Water Heater, Gas Heating, Forced Air Heating
- Sewer:
- Public Sewer
- Water source:
- Public

Community details
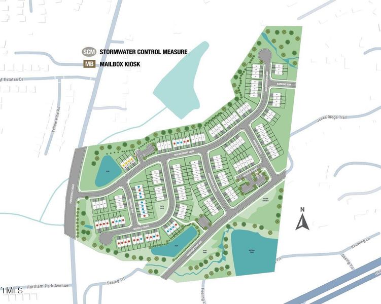
Forestville Station
by Taylor Morrison, Wake Forest, NC
- 15 homes
- 4 plans
- 1,616 - 1,885 sqft
View Forestville Station details
Community amenities
- Playground
- Park Nearby
- Sidewalks Available
More homes in Forestville Station
- Home at address 8763 Wardle Ct, Wake Forest, NC 27587

Magnolia
Savings$319,999
- 3 bd
- 2.5 ba
- 1,616 sqft
8763 Wardle Ct, Wake Forest, NC 27587
- Home at address 8750 Wardle Ct, Wake Forest, NC 27587

Sage
Savings$329,999
- 3 bd
- 2.5 ba
- 1,714 sqft
8750 Wardle Ct, Wake Forest, NC 27587
- Home at address 8813 Malmesbury Ln, Wake Forest, NC 27587

Home
Savings$334,999
- 3 bd
- 2.5 ba
- 1,714 sqft
8813 Malmesbury Ln, Wake Forest, NC 27587
- Home at address 8813 Malmesbury Ln, Wake Forest, NC 27587

Sage
Savings$334,999
- 3 bd
- 2.5 ba
- 1,714 sqft
8813 Malmesbury Ln, Wake Forest, NC 27587
- Home at address 8742 Wardle Ct, Wake Forest, NC 27587

Sage
Savings$339,999
- 3 bd
- 2.5 ba
- 1,714 sqft
8742 Wardle Ct, Wake Forest, NC 27587
- Home at address 8765 Wardle Ct, Wake Forest, NC 27587

Sage
Savings$339,999
- 3 bd
- 2.5 ba
- 1,714 sqft
8765 Wardle Ct, Wake Forest, NC 27587
Floor plans in Forestville Station
About the builder - Taylor Morrison

- 314communities on Jome
- 1,312homes on Jome
Neighborhood
Home address
Schools in Wake County Schools
GreatSchools’ Summary Rating calculation is based on 4 of the school’s themed ratings, including test scores, student/academic progress, college readiness, and equity. This information should only be used as a reference. Jome is not affiliated with GreatSchools and does not endorse or guarantee this information. Please reach out to schools directly to verify all information and enrollment eligibility. Data provided by GreatSchools.org © 2025
Places of interest
Getting around
Noise level
A Soundscore™ rating is a number between 50 (very loud) and 100 (very quiet) that tells you how loud a location is due to environmental noise.

Considering this home?
Our expert will guide your tour, in-person or virtual
Need more information?
Text or call (888) 545-5198
Financials
Estimated monthly payment
Let us help you find your dream home
How many bedrooms are you looking for?
Similar homes nearby
Recently added communities in this area
Nearby communities in Raleigh
New homes in nearby cities
More New Homes in Raleigh, NC
Taylor Morrison of Carolinas,, MLS 10116686
© 2025 Doorify MLS, Inc. of North Carolina. All rights reserved. Brokers make an effort to deliver accurate information, but buyers should independently verify any information on which they will rely in a transaction. The listing broker shall not be responsible for any typographical errors, misinformation, or misprints, and they shall be held totally harmless from any damages arising from reliance upon this data. This data is provided exclusively for consumers’ personal, non-commercial use. Some IDX listings have been excluded from this IDX display. Closed (sold) listings may have been listed and/or sold by a real estate firm other than the firm(s) featured on this website. Closed data is not available until the sale of the property is recorded in the MLS. Home sale data is not an appraisal, CMA, competitive or comparative market analysis, or home valuation of any property. Listings marked with an icon are provided courtesy of the Doorify MLS, Inc. of North Carolina, Internet Data Exchange Database.
Read moreLast checked Apr 14, 10:10 pm
- Jome
- New homes search
- North Carolina
- Raleigh-Durham Area
- Wake County
- Raleigh
- Forestville Station
- 8763 Wardle Ct, Raleigh, NC 27587




























