





































- 3 bd
- 2 ba
- 1,857 sqft
3057 Bent Willow Dr, Indian Trail, NC 28079
- Single-Family
- $239.9/sqft
- 0.20-acre lot
- 138 days on Jome
New Homes for Sale Near 3057 Bent Willow Dr, Indian Trail, NC 28079
About this Home
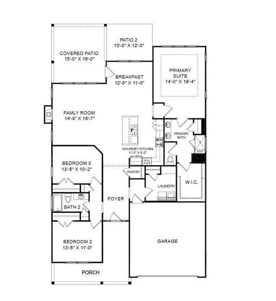
55+ Community! Discover 1,857 square feet of thoughtfully designed one-story living in this charming ranch-style floorplan, The Rylen. Featuring 3 spacious bedrooms and 2 full bathrooms, this home offers the ideal balance of comfort and functionality. The main-level primary suite provides everyday ease, while the kitchen—designed for both style and seamless flow—opens to the bright and airy living and breakfast areas, perfect for entertaining or simply relaxing. Enjoy your morning coffee or evening breeze from the screened porch overlooking the beautifully maintained lawn, or take in the charm of the rocking chair front porch. As a resident of this active adult community, you’ll enjoy resort-style amenities including a clubhouse, outdoor pool, pickleball courts, fitness center, and scenic nature trails. Live the lifestyle you’ve been dreaming of—schedule your private tour today!
SM North Carolina Brokerage, MLS CAR4291811
May also be listed on the Stanley Martin Homes website
Information last verified by Jome: Wednesday at 5:00 PM (October 29, 2025)
Home details
- Property status:
- Sold
- Lot size (acres):
- 0.20
- Size:
- 1,857 sqft
- Stories:
- 1
- Beds:
- 3
- Baths:
- 2
- Garage spaces:
- 2
Construction details
- Builder Name:
- Stanley Martin Homes
- Year Built:
- 2025
- Roof:
- Shingle Roofing
Home features & finishes
- Construction Materials:
- CementStone
- Cooling:
- Ceiling Fan(s)Central Air
- Flooring:
- Vinyl FlooringCarpet FlooringTile Flooring
- Foundation Details:
- Slab
- Garage/Parking:
- Door OpenerGarageFront Entry Garage/ParkingAttached Garage
- Home amenities:
- Home Accessibility Features
- Interior Features:
- Walk-In ClosetFoyerPantryStorageTray CeilingBreakfast Bar
- Kitchen:
- DishwasherMicrowave OvenOvenRefrigeratorDisposalGas CooktopKitchen Island
- Laundry facilities:
- Laundry Facilities On Main LevelUtility/Laundry Room
- Property amenities:
- Gas Log FireplacePatioFireplacePorch
- Rooms:
- Primary Bedroom On MainFamily RoomBreakfast AreaOpen Concept FloorplanPrimary Bedroom Downstairs
- Security system:
- Smoke DetectorCarbon Monoxide Detector
Utility information
- Heating:
- Water Heater, Forced Air Heating, Tankless water heater

Community details
Heritage
by Stanley Martin Homes, Indian Trail, NC
- 4 homes
- 1 plan
- 1,900 - 2,690 sqft
View Heritage details
Community amenities
- Fitness Center/Exercise Area
- Club House
- Sport Court
- Community Pool
- Game Room/Area
- Sidewalks Available
- Walking, Jogging, Hike Or Bike Trails
More homes in Heritage
Floor plans in Heritage
About the builder - Stanley Martin Homes
Neighborhood
Home address
- City:
- Indian Trail
- County:
- Union
- Zip Code:
- 28079
Schools in Union County Public Schools
GreatSchools’ Summary Rating calculation is based on 4 of the school’s themed ratings, including test scores, student/academic progress, college readiness, and equity. This information should only be used as a reference. Jome is not affiliated with GreatSchools and does not endorse or guarantee this information. Please reach out to schools directly to verify all information and enrollment eligibility. Data provided by GreatSchools.org © 2025
Places of interest
Getting around
Air quality
Noise level
A Soundscore™ rating is a number between 50 (very loud) and 100 (very quiet) that tells you how loud a location is due to environmental noise.
Natural hazards risk
Climate hazards can impact homes and communities, with risks varying by location. These scores reflect the potential impact of natural disasters and climate-related risks on Union County
Provided by FEMA
Financials
Nearby communities in Indian Trail
Homes in Indian Trail by Stanley Martin Homes
Recently added communities in this area
Other Builders in Indian Trail, NC
Nearby sold homes
New homes in nearby cities
More New Homes in Indian Trail, NC
SM North Carolina Brokerage, MLS CAR4291811
Based on information submitted to the MLS GRID as of 10/21/2024 2:31 PM CDT. All data is obtained from various sources and may not have been verified by the broker or MLS GRID. Supplied Open House Information is subject to change without notice. All information should be independently reviewed and verified for accuracy. Properties may or may not be listed by the office/agent presenting the information. Properties displayed may be listed or sold by various participants in the MLS. The Digital Millennium Copyright Act of 1998, 17 U.S.C. § 512 (the “DMCA”) provides recourse for copyright owners who believe that material appearing on the Internet infringes their rights under U.S. copyright law. If you believe in good faith that any content or material made available in connection with our website or services infringes your copyright, you (or your agent) may send us a notice requesting that the content or material be removed, or access to it blocked. Notices must be sent in writing by email to DMCAnotice@MLSGrid.com. The DMCA requires that your notice of alleged copyright infringement include the following information: (1) description of the copyrighted work that is the subject of claimed infringement; (2) description of the alleged infringing content and information sufficient to permit us to locate the content; (3) contact information for you, including your address, telephone number and email address; (4) a statement by you that you have a good faith belief that the content in the manner complained of is not authorized by the copyright owner, or its agent, or by the operation of any law; (5) a statement by you, signed under penalty of perjury, that the information in the notification is accurate and that you have the authority to enforce the copyrights that are claimed to be infringed; and (6) a physical or electronic signature of the copyright owner or a person authorized to act on the copyright owner’s behalf. Failure to include all of the above information may result in the delay of the processing of your complaint.
Read moreLast checked Dec 6, 11:00 am
- Home
- New homes
- North Carolina
- Charlotte Metropolitan Area
- Union County
- Indian Trail
- Heritage
- 3057 Bent Willow Dr, Indian Trail, NC 28079



























































