














Book your tour. Save an average of $18,473. We'll handle the rest.
- Confirmed tours
- Get matched & compare top deals
- Expert help, no pressure
- No added fees
Estimated value based on Jome data, T&C apply


































Why tour with Jome?
- No pressure toursTour at your own pace with no sales pressure
- Expert guidanceGet insights from our home buying experts
- Exclusive accessSee homes and deals not available elsewhere
Jome is featured in
- Single-Family
- Under construction
- $209.89/sqft
- 0.38-acre lot
Home description
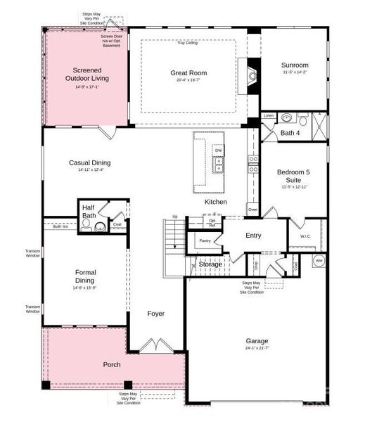
Proposed New Construction - June Completion! Built by America's Most Trusted Homebuilder. Welcome to the Rochester at 3041 Tramore Drive at Tramore. This bright and spacious two-story home features a sunroom, a striking kitchen island, and rear covered outdoor living with the option to screen it in. Just off the entrance, a formal dining room offers a touch of elegance, while the open-concept great room creates a natural flow for everyday living. Upstairs, the primary suite includes two walk-in closets, dual sinks and vanities, a freestanding tub, and a separate spa shower. A game room adds even more space to relax and unwind, and storage is easy with multiple linen closets and a convenient drop zone. This home is part of a welcoming Harrisburg community with 42 homes on wide 75-foot homesites, close to Charlotte’s best parks, concerts, and outdoor adventures. Additional highlights include dual tankless water heaters, additional windows at formal dining room, screened outdoor living, metal roof in lieu of shingles, tray ceilings at great room and primary suite. This is a proposed home, giving buyers the opportunity to personalize their selections. Photos are for representative purposes only. MLS#4300251
Taylor Morrison of Carolinas Inc, MLS CAR4300251
May also be listed on the Taylor Morrison website
Information last verified by Jome: Today at 12:11 AM (December 7, 2025)
Home highlights
Major public research university in Charlotte offering strong STEM programs and fueling regional innovation and growth.
Book your tour. Save an average of $18,473. We'll handle the rest.
We collect exclusive builder offers, book your tours, and support you from start to housewarming.
- Confirmed tours
- Get matched & compare top deals
- Expert help, no pressure
- No added fees
Estimated value based on Jome data, T&C apply
Home details
- Property status:
- Under construction
- Lot size (acres):
- 0.38
- Size:
- 4,486 sqft
- Stories:
- 2
- Beds:
- 5
- Baths:
- 4.5
- Garage spaces:
- 2
Construction details
- Builder Name:
- Taylor Morrison
- Year Built:
- 2026
- Roof:
- Shingle Roofing
Home features & finishes
- Construction Materials:
- CementBrickStone
- Cooling:
- Central Air
- Flooring:
- Laminate FlooringCarpet FlooringTile Flooring
- Foundation Details:
- Slab
- Garage/Parking:
- Door OpenerGarageFront Entry Garage/ParkingAttached Garage
- Interior Features:
- Walk-In ClosetFoyerPantryStorageWalk-In PantryGarden Tub
- Kitchen:
- DishwasherMicrowave OvenOvenDisposalGas CooktopKitchen IslandGas OvenKitchen Range
- Laundry facilities:
- Laundry Facilities On Upper LevelDryerWasherUtility/Laundry Room
- Property amenities:
- PatioFireplacePorch
- Rooms:
- AtticFamily Room
- Security system:
- Smoke DetectorCarbon Monoxide Detector
Utility information
- Heating:
- Water Heater, Gas Heating, Tankless water heater

Community details
Tramore
by Taylor Morrison, Harrisburg, NC
- 2 homes
- 5 plans
- 2,403 - 4,486 sqft
View Tramore details
Community amenities
- Sidewalks Available
- Walking, Jogging, Hike Or Bike Trails
More homes in Tramore
Floor plans in Tramore
About the builder - Taylor Morrison
Neighborhood
Home address
- City:
- Harrisburg
- County:
- Cabarrus
- Zip Code:
- 28075
Schools in Cabarrus County Schools
- Grades KG-05Publichickory ridge elementary0.2 mi9464 hickory ridge rdna
GreatSchools’ Summary Rating calculation is based on 4 of the school’s themed ratings, including test scores, student/academic progress, college readiness, and equity. This information should only be used as a reference. Jome is not affiliated with GreatSchools and does not endorse or guarantee this information. Please reach out to schools directly to verify all information and enrollment eligibility. Data provided by GreatSchools.org © 2025
Places of interest
Getting around
Noise level
A Soundscore™ rating is a number between 50 (very loud) and 100 (very quiet) that tells you how loud a location is due to environmental noise.
Natural hazards risk
Climate hazards can impact homes and communities, with risks varying by location. These scores reflect the potential impact of natural disasters and climate-related risks on Cabarrus County
Provided by FEMA

Considering this home?
Our expert will guide your tour, in-person or virtual
Need more information?
Text or call (888) 486-2818
Financials
Estimated monthly payment
Similar homes nearby
Recently added communities in this area
Nearby communities in Harrisburg
New homes in nearby cities
More New Homes in Harrisburg, NC
Taylor Morrison of Carolinas Inc, MLS CAR4300251
Based on information submitted to the MLS GRID as of 10/21/2024 2:31 PM CDT. All data is obtained from various sources and may not have been verified by the broker or MLS GRID. Supplied Open House Information is subject to change without notice. All information should be independently reviewed and verified for accuracy. Properties may or may not be listed by the office/agent presenting the information. Properties displayed may be listed or sold by various participants in the MLS. The Digital Millennium Copyright Act of 1998, 17 U.S.C. § 512 (the “DMCA”) provides recourse for copyright owners who believe that material appearing on the Internet infringes their rights under U.S. copyright law. If you believe in good faith that any content or material made available in connection with our website or services infringes your copyright, you (or your agent) may send us a notice requesting that the content or material be removed, or access to it blocked. Notices must be sent in writing by email to DMCAnotice@MLSGrid.com. The DMCA requires that your notice of alleged copyright infringement include the following information: (1) description of the copyrighted work that is the subject of claimed infringement; (2) description of the alleged infringing content and information sufficient to permit us to locate the content; (3) contact information for you, including your address, telephone number and email address; (4) a statement by you that you have a good faith belief that the content in the manner complained of is not authorized by the copyright owner, or its agent, or by the operation of any law; (5) a statement by you, signed under penalty of perjury, that the information in the notification is accurate and that you have the authority to enforce the copyrights that are claimed to be infringed; and (6) a physical or electronic signature of the copyright owner or a person authorized to act on the copyright owner’s behalf. Failure to include all of the above information may result in the delay of the processing of your complaint.
Read moreLast checked Dec 7, 5:00 pm
- Home
- New homes
- North Carolina
- Charlotte Metropolitan Area
- Cabarrus County
- Harrisburg
- Tramore
- 3041 Tramore Dr, Harrisburg, NC 28075
































