









Book your tour. Save an average of $18,473. We'll handle the rest.
We collect exclusive builder offers, book your tours, and support you from start to housewarming.
- Confirmed tours
- Get matched & compare top deals
- Expert help, no pressure
- No added fees
Estimated value based on Jome data, T&C apply







































Why tour with Jome?
- No pressure toursTour at your own pace with no sales pressure
- Expert guidanceGet insights from our home buying experts
- Exclusive accessSee homes and deals not available elsewhere
Jome is featured in
- Townhouse
- Under construction
- $199.34/sqft
- $120/monthly HOA
Home description
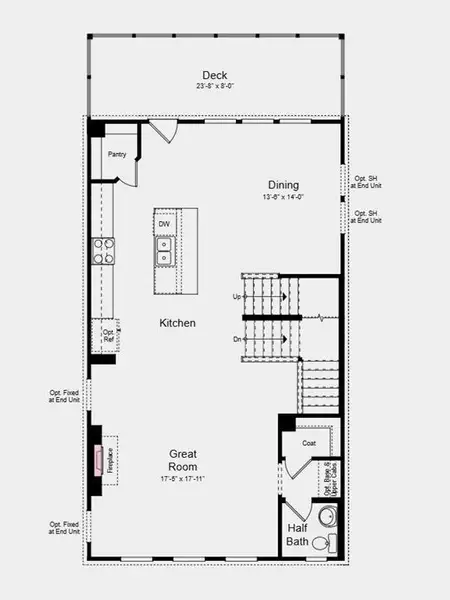
What's Special: Backs to Amenities | Fireplace | 3 Full Baths | North Facing Patio | Oversized Deck. New Construction - September Completion! Built by America's Most Trusted Home Builder. Welcome to the Tifton at 2734 Dreycott Lane in Dreycott Townhomes! This new townhome features a thoughtfully planned layout that feels open, bright, and easy to live in from the moment you step inside. The foyer leads to a private bedroom with a full bath and convenient access to the two-car garage, creating a flexible space for guests or a home office. On the main living level, the great room with a cozy fireplace flows seamlessly into the kitchen and dining area, where a large island and under cabinet lighting add warmth and everyday functionality. Just off the kitchen, the deck extends your living space outdoors and is perfect for relaxed mornings or casual evenings at home, while a powder room completes this level. Upstairs, the primary suite offers a comfortable retreat with a walk-in closet and a thoughtfully designed bath, along with two secondary bedrooms, a full bath, and a conveniently located laundry area. Dreycott offers a low-maintenance lifestyle just minutes from Coolray Field, The Exchange at Gwinnett, and major highways. Enjoy quick access to I-85, GA-20, Route 124, parks, dining, and shopping. Zoned for the top Mountain View High School district. Planned amenities include a pool with cabana, dog park, butterfly garden, walking trail, and sidewalks. Additional Highlights Include: fireplace in the great room, bench at the garage entry, pull out trash can cabinet in the kitchen, pendant lights in the kitchen, tiled showers, and LVP stair treads. Photos are for representative purposes only. MLS#7760945
Taylor Morrison Realty of Georgia, Inc., MLS 7760945
May also be listed on the Taylor Morrison website
Information last verified by Jome: Today at 7:40 AM (April 30, 2026)
Home highlights
Versatile arena in Duluth hosting concerts, sports, and events near Gwinnett’s shops and residential communities.
Book your tour. Save an average of $18,473. We'll handle the rest.
We collect exclusive builder offers, book your tours, and support you from start to housewarming.
- Confirmed tours
- Get matched & compare top deals
- Expert help, no pressure
- No added fees
Estimated value based on Jome data, T&C apply
Home details
- Property status:
- Under construction
- Collection:
- Dreycott
- Size:
- 2,340 sqft
- Beds:
- 4
- Baths:
- 3
- Half baths:
- 1
- Garage spaces:
- 2
- Fence:
- No Fence
Construction details
- Builder Name:
- Taylor Morrison
- Year Built:
- 2026
- Roof:
- Roof Gutter, Composition Roofing
Home features & finishes
- Construction Materials:
- CementBrick
- Cooling:
- Ceiling Fan(s)Central Air
- Flooring:
- Vinyl FlooringCarpet FlooringTile Flooring
- Foundation Details:
- Slab
- Garage/Parking:
- Door OpenerGarageRear Entry Garage/ParkingAttached Garage
- Interior Features:
- Ceiling-HighWalk-In ClosetCrown MoldingFoyerPantryTray CeilingDouble Vanity
- Kitchen:
- DishwasherMicrowave OvenDisposalKitchen IslandKitchen RangeElectric Oven
- Laundry facilities:
- Laundry Facilities In HallLaundry Facilities On Upper LevelDryerLaundry Facilities In Closet
- Lighting:
- Lighting
- Property amenities:
- DeckElectric FireplaceFireplaceYardSmart Home SystemPorch
- Rooms:
- AtticKitchenDining RoomFamily Room
- Security system:
- Smoke Detector

Get a consultation with our New Homes Expert
- See how your home builds wealth
- Plan your home-buying roadmap
- Discover hidden gems
Utility information
- Heating:
- Electric Heating, Heat Pump, Zoned Heating, Water Heater, Central Heating
- Sewer:
- Public Sewer
- Utilities:
- Natural Gas Available, Underground Utilities, Sewer Available
- Water source:
- Public

Community details
Dreycott
by Taylor Morrison, Lawrenceville, GA
- 14 homes
- 7 plans
- 1,893 - 3,504 sqft
View Dreycott details
Community amenities
- Dog Park
- Community Pool
- Sidewalks Available
- Greenbelt View
- Waterfront View
More homes in Dreycott
- Home at address 2732 Dreycott Ln, Lawrenceville, GA 30043

Tifton
SavingsDreycott Townhomes
$464,990
- 4 bd
- 3.5 ba
- 2,340 sqft
2732 Dreycott Ln, Lawrenceville, GA 30043
- Home at address 2732 Dreycott Ln, Lawrenceville, GA 30043

Home
SavingsDreycott
$464,990
- 4 bd
- 3.5 ba
- 2,340 sqft
2732 Dreycott Ln, Lawrenceville, GA 30043
- Home at address 2734 Dreycott Ln, Lawrenceville, GA 30043

Tifton
SavingsDreycott Townhomes
$466,460
- 4 bd
- 3.5 ba
- 2,340 sqft
2734 Dreycott Ln, Lawrenceville, GA 30043
- Home at address 2736 Dreycott Ln, Lawrenceville, GA 30043

Tifton
SavingsDreycott Townhomes
$467,580
- 4 bd
- 3.5 ba
- 2,340 sqft
2736 Dreycott Ln, Lawrenceville, GA 30043
- Home at address 2736 Dreycott Ln, Lawrenceville, GA 30043

Home
SavingsDreycott
$467,580
- 4 bd
- 3.5 ba
- 2,340 sqft
2736 Dreycott Ln, Lawrenceville, GA 30043
- Home at address 2730 Dreycott Ln, Lawrenceville, GA 30043

Tifton
SavingsDreycott Townhomes
$480,080
- 4 bd
- 3.5 ba
- 2,340 sqft
2730 Dreycott Ln, Lawrenceville, GA 30043
Floor plans in Dreycott
About the builder - Taylor Morrison

- 315communities on Jome
- 1,346homes on Jome
Neighborhood
Home address
- City:
- Lawrenceville
- County:
- Gwinnett
- Zip Code:
- 30043
Schools in Gwinnett County School District
GreatSchools’ Summary Rating calculation is based on 4 of the school’s themed ratings, including test scores, student/academic progress, college readiness, and equity. This information should only be used as a reference. Jome is not affiliated with GreatSchools and does not endorse or guarantee this information. Please reach out to schools directly to verify all information and enrollment eligibility. Data provided by GreatSchools.org © 2025
Places of interest
Getting around
Air quality
Noise level
A Soundscore™ rating is a number between 50 (very loud) and 100 (very quiet) that tells you how loud a location is due to environmental noise.

Considering this home?
Our expert will guide your tour, in-person or virtual
Need more information?
Text or call (888) 545-5198
Financials
Estimated monthly payment
Let us help you find your dream home
How many bedrooms are you looking for?
Similar homes nearby
Recently added communities in this area
Nearby communities in Lawrenceville
New homes in nearby cities
More New Homes in Lawrenceville, GA
Taylor Morrison Realty of Georgia, Inc., MLS 7760945
Some IDX listings have been excluded from this IDX display. Listings identified with the FMLS IDX logo come from FMLS and are held by brokerage firms other than the owner of this website. The listing brokerage is identified in any listing details. Information is deemed reliable but is not guaranteed. If you believe any FMLS listing contains material that infringes your copyrighted work please click here to review our DMCA policy and learn how to submit a takedown request. © 2025 First Multiple Listing Service, Inc.
Read moreLast checked Apr 30, 1:40 pm
- Jome
- New homes search
- Georgia
- Atlanta Metropolitan Area
- Gwinnett County
- Lawrenceville
- Dreycott
- Dreycott
- 2734 Dreycott Ln, Lawrenceville, GA 30043


























