








Book your tour. Save an average of $18,473. We'll handle the rest.
We collect exclusive builder offers, book your tours, and support you from start to housewarming.
- Confirmed tours
- Get matched & compare top deals
- Expert help, no pressure
- No added fees
Estimated value based on Jome data, T&C apply


























Why tour with Jome?
- No pressure toursTour at your own pace with no sales pressure
- Expert guidanceGet insights from our home buying experts
- Exclusive accessSee homes and deals not available elsewhere
Jome is featured in
- Townhouse
- Under construction
- $205.16/sqft
- $120/monthly HOA
Home description
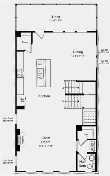
What's Special: Close to Amenities | 1st Floor Guest Bedroom | 3 Full Baths| Extended Patio | Close to Trails. New Construction - September Completion! Built by America's Most Trusted Home Builder. Welcome to the Tifton at 2730 Dreycott Lane in Dreycott Townhomes! Step inside this new end-unit townhome from the covered porch and discover a welcoming foyer with a private bedroom and full bath, and access to the rear two-car garage. The main living level opens to a bright great room with a cozy fireplace, that flows effortlessly into the kitchen and dining area, where a large island, pantry, and access to the deck make everyday living and entertaining feel easy. A convenient half bath is thoughtfully placed on this level for guests. Upstairs, the primary suite feels like a true escape with a tray ceiling, spacious bath, and walk-in closet, while two additional bedrooms, a full bath, and a centrally located laundry room keep everything close at hand. Dreycott offers a low-maintenance lifestyle just minutes from Coolray Field, The Exchange at Gwinnett, and major highways. Enjoy quick access to I-85, GA-20, Route 124, parks, dining, and shopping. Zoned for the top Mountain View High School district. Planned amenities include a pool with cabana, dog park, butterfly garden, walking trail, and sidewalks. Additional Highlights Include: electric fireplace in great room, tile walls at primary bath, luxury vinyl plank tread at stairs, bench at garage entry, refrigerator, and GE laundry package. Photos are for representative purposes only. MLS#7758545
Taylor Morrison Realty of Georgia, Inc., MLS 7758545
May also be listed on the Taylor Morrison website
Information last verified by Jome: Today at 7:41 PM (April 24, 2026)
Home highlights
Versatile arena in Duluth hosting concerts, sports, and events near Gwinnett’s shops and residential communities.
Book your tour. Save an average of $18,473. We'll handle the rest.
We collect exclusive builder offers, book your tours, and support you from start to housewarming.
- Confirmed tours
- Get matched & compare top deals
- Expert help, no pressure
- No added fees
Estimated value based on Jome data, T&C apply
Home details
- Property status:
- Under construction
- Collection:
- Dreycott
- Size:
- 2,340 sqft
- Beds:
- 4
- Baths:
- 3
- Half baths:
- 1
- Garage spaces:
- 2
- Fence:
- No Fence
Construction details
- Builder Name:
- Taylor Morrison
- Year Built:
- 2026
- Roof:
- Shingle Roofing
Home features & finishes
- Construction Materials:
- Brick
- Cooling:
- Central Air
- Flooring:
- Ceramic FlooringVinyl FlooringCarpet FlooringTile Flooring
- Foundation Details:
- Slab
- Garage/Parking:
- GarageRear Entry Garage/ParkingAttached Garage
- Home amenities:
- Green Construction
- Interior Features:
- Walk-In ClosetFoyerTray CeilingWalk-In PantryDouble Vanity
- Kitchen:
- Kitchen IslandKitchen Range
- Laundry facilities:
- Laundry Facilities In HallLaundry Facilities On Upper LevelUtility/Laundry Room
- Lighting:
- Lighting
- Property amenities:
- DeckLandscapingElectric FireplaceFireplace
- Rooms:
- KitchenFamily RoomOpen Concept Floorplan
- Security system:
- Fire Alarm SystemSmoke DetectorCarbon Monoxide Detector

Get a consultation with our New Homes Expert
- See how your home builds wealth
- Plan your home-buying roadmap
- Discover hidden gems
Utility information
- Heating:
- Electric Heating, Zoned Heating, Central Heating
- Sewer:
- Public Sewer
- Utilities:
- Natural Gas Available, Underground Utilities, Sewer Available
- Water source:
- Public

Community details
Dreycott
by Taylor Morrison, Lawrenceville, GA
- 8 homes
- 7 plans
- 1,893 - 3,504 sqft
View Dreycott details
Community amenities
- Dog Park
- Community Pool
- Sidewalks Available
More homes in Dreycott
- Home at address 2732 Dreycott Ln, Lawrenceville, GA 30043

Home
SavingsDreycott
$464,990
- 4 bd
- 3.5 ba
- 2,340 sqft
2732 Dreycott Ln, Lawrenceville, GA 30043
- Home at address 2732 Dreycott Ln, Lawrenceville, GA 30043

Tifton
SavingsDreycott Townhomes
$464,990
- 4 bd
- 3.5 ba
- 2,340 sqft
2732 Dreycott Ln, Lawrenceville, GA 30043
- Home at address 2730 Dreycott Ln, Lawrenceville, GA 30043

Tifton
SavingsDreycott Townhomes
$480,080
- 4 bd
- 3.5 ba
- 2,340 sqft
2730 Dreycott Ln, Lawrenceville, GA 30043
- Home at address 2160 Dreycott Ln, Lawrenceville, GA 30043

Home
SavingsDreycott
$643,640
- 5 bd
- 4.5 ba
- 3,067 sqft
2160 Dreycott Ln, Lawrenceville, GA 30043
Floor plans in Dreycott
About the builder - Taylor Morrison

- 315communities on Jome
- 1,348homes on Jome
Neighborhood
Home address
- City:
- Lawrenceville
- County:
- Gwinnett
- Zip Code:
- 30043
Schools in Gwinnett County School District
GreatSchools’ Summary Rating calculation is based on 4 of the school’s themed ratings, including test scores, student/academic progress, college readiness, and equity. This information should only be used as a reference. Jome is not affiliated with GreatSchools and does not endorse or guarantee this information. Please reach out to schools directly to verify all information and enrollment eligibility. Data provided by GreatSchools.org © 2025
Places of interest
Getting around
Air quality
Noise level
A Soundscore™ rating is a number between 50 (very loud) and 100 (very quiet) that tells you how loud a location is due to environmental noise.

Considering this home?
Our expert will guide your tour, in-person or virtual
Need more information?
Text or call (888) 545-5198
Financials
Estimated monthly payment
Let us help you find your dream home
How many bedrooms are you looking for?
Similar homes nearby
Recently added communities in this area
Nearby communities in Lawrenceville
New homes in nearby cities
More New Homes in Lawrenceville, GA
Taylor Morrison Realty of Georgia, Inc., MLS 7758545
Some IDX listings have been excluded from this IDX display. Listings identified with the FMLS IDX logo come from FMLS and are held by brokerage firms other than the owner of this website. The listing brokerage is identified in any listing details. Information is deemed reliable but is not guaranteed. If you believe any FMLS listing contains material that infringes your copyrighted work please click here to review our DMCA policy and learn how to submit a takedown request. © 2025 First Multiple Listing Service, Inc.
Read moreLast checked Apr 24, 7:40 pm
- Jome
- New homes search
- Georgia
- Atlanta Metropolitan Area
- Gwinnett County
- Lawrenceville
- Dreycott
- Dreycott
- 2730 Dreycott Ln, Lawrenceville, GA 30043




























