








Book your tour. Save an average of $18,473. We'll handle the rest.
We collect exclusive builder offers, book your tours, and support you from start to housewarming.
- Confirmed tours
- Get matched & compare top deals
- Expert help, no pressure
- No added fees
Estimated value based on Jome data, T&C apply



















































- 5 bd
- 4 ba
- 2,749 sqft
139 Marble Tree Wy, Ball Ground, GA 30107
Why tour with Jome?
- No pressure toursTour at your own pace with no sales pressure
- Expert guidanceGet insights from our home buying experts
- Exclusive accessSee homes and deals not available elsewhere
Jome is featured in
- Single-Family
- Under construction
- $206.98/sqft
- $1,000/annual HOA
Home description
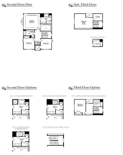
Ready in July 2026. Welcome to homesite 39 featuring our Abbeyville floorplan located in the highly desirable neighborhood of Marble Tree in Ball Ground. This spacious 5 bedroom, 4 bathroom plus bonus room home combines modern elegance with thoughtful design, making it the perfect retreat for comfortable family living. Conveniently located on the main level the guest bedroom is perfect for visitors, accompanied with full bath for added comfort. A dedicated office space on the main level floor provides a quiet sunlit area for work or study. The heart of the home is a gourmet kitchen featuring top of the line finishes including quartz countertops stainless steel appliances custom cabinetry and a large island ideal for casual dining. The second floor has 3 bedrooms including a
unusually large owners suite with a spa inspired en-suite bathroom that boosts a luxury shower perfect for unwinding at the end of the day. 3rd floor features an oversized bonus room with bathroom. This home backs up to a natural wooded area.
Peggy Slappey Properties Inc., MLS 7738817
May also be listed on the Eastwood Homes website
Information last verified by Jome: Yesterday at 2:20 AM (April 17, 2026)
Home highlights
Popular North Georgia lake offering boating, fishing, and lakeside living near metro Atlanta and mountain getaways.
Book your tour. Save an average of $18,473. We'll handle the rest.
We collect exclusive builder offers, book your tours, and support you from start to housewarming.
- Confirmed tours
- Get matched & compare top deals
- Expert help, no pressure
- No added fees
Estimated value based on Jome data, T&C apply
Home details
- Property status:
- Under construction
- Lot size (acres):
- 0.13
- Size:
- 2,749 sqft
- Stories:
- 3+
- Beds:
- 5
- Baths:
- 4
- Garage spaces:
- 2
Construction details
- Builder Name:
- Eastwood Homes
- Year Built:
- 2026
- Roof:
- Roof Gutter, Composition Roofing, Shingle Roofing
Home features & finishes
- Construction Materials:
- Cement
- Cooling:
- Central Air
- Flooring:
- Ceramic FlooringLaminate FlooringCarpet FlooringTile Flooring
- Foundation Details:
- Slab
- Garage/Parking:
- GarageAttached Garage
- Interior Features:
- Ceiling-HighWalk-In ClosetCrown MoldingCoffered CeilingPantryTray CeilingBreakfast BarWalk-In PantryDouble Vanity
- Kitchen:
- DishwasherMicrowave OvenOvenDisposalGas CooktopKitchen IslandDouble OvenElectric Oven
- Laundry facilities:
- Laundry Facilities In HallLaundry Facilities On Upper LevelUtility/Laundry Room
- Property amenities:
- BarBackyardGas FireplaceCabinetsPatioFireplaceYardSmart Home SystemPorch
- Rooms:
- Bonus RoomKitchenGuest SuiteOffice/StudyGuest RoomFamily RoomLiving RoomBreakfast AreaPrimary Bedroom Upstairs
- Security system:
- Smoke Detector

Get a consultation with our New Homes Expert
- See how your home builds wealth
- Plan your home-buying roadmap
- Discover hidden gems
Utility information
- Heating:
- Water Heater, Gas Heating, Forced Air Heating
- Sewer:
- Public Sewer
- Utilities:
- Electricity Available, Water Available
- Water source:
- Public

Community details
Marble Tree
by Eastwood Homes, Ball Ground, GA
- 9 homes
- 12 plans
- 1,738 - 3,047 sqft
View Marble Tree details
Community amenities
- Woods View
- Park Nearby
- Sidewalks Available
- Waterfront View
- Walking, Jogging, Hike Or Bike Trails
- Shopping Nearby
More homes in Marble Tree
- Home at address 317 Conifer Ln, Ball Ground, GA 30107

Cypress
$569,900
- 5 bd
- 4 ba
- 2,788 sqft
317 Conifer Ln, Ball Ground, GA 30107
Floor plans in Marble Tree
About the builder - Eastwood Homes
Neighborhood
Home address
- City:
- Ball Ground
- County:
- Cherokee
- Zip Code:
- 30107
Schools in Cherokee County School District
- Grades PK-KGPrivatethe carpenter's shop4.8 mi367 green drna
GreatSchools’ Summary Rating calculation is based on 4 of the school’s themed ratings, including test scores, student/academic progress, college readiness, and equity. This information should only be used as a reference. Jome is not affiliated with GreatSchools and does not endorse or guarantee this information. Please reach out to schools directly to verify all information and enrollment eligibility. Data provided by GreatSchools.org © 2025
Places of interest
Getting around
Air quality
Noise level
A Soundscoreâ„¢ rating is a number between 50 (very loud) and 100 (very quiet) that tells you how loud a location is due to environmental noise.

Considering this home?
Our expert will guide your tour, in-person or virtual
Need more information?
Text or call (888) 545-5198
Financials
Estimated monthly payment
Let us help you find your dream home
How many bedrooms are you looking for?
Similar homes nearby
Recently added communities in this area
Nearby communities in Ball Ground
New homes in nearby cities
More New Homes in Ball Ground, GA
Peggy Slappey Properties Inc., MLS 7738817
Some IDX listings have been excluded from this IDX display. Listings identified with the FMLS IDX logo come from FMLS and are held by brokerage firms other than the owner of this website. The listing brokerage is identified in any listing details. Information is deemed reliable but is not guaranteed. If you believe any FMLS listing contains material that infringes your copyrighted work please click here to review our DMCA policy and learn how to submit a takedown request. © 2025 First Multiple Listing Service, Inc.
Read moreLast checked Apr 17, 7:40 pm
- Jome
- New homes search
- Georgia
- Atlanta Metropolitan Area
- Cherokee County
- Ball Ground
- Marble Tree
- 139 Marble Tree Wy, Ball Ground, GA 30107



























