














Book your tour. Save an average of $18,473. We'll handle the rest.
- Confirmed tours
- Get matched & compare top deals
- Expert help, no pressure
- No added fees
Estimated value based on Jome data, T&C apply























- 3 bd
- 3.5 ba
- 1,874 sqft
2580 Astaire Ct, Atlanta, GA 30318
Why tour with Jome?
- No pressure toursTour at your own pace with no sales pressure
- Expert guidanceGet insights from our home buying experts
- Exclusive accessSee homes and deals not available elsewhere
Jome is featured in
- Townhouse
- Ready by March 2026
- $238.58/sqft
- $350/monthly HOA
Home description
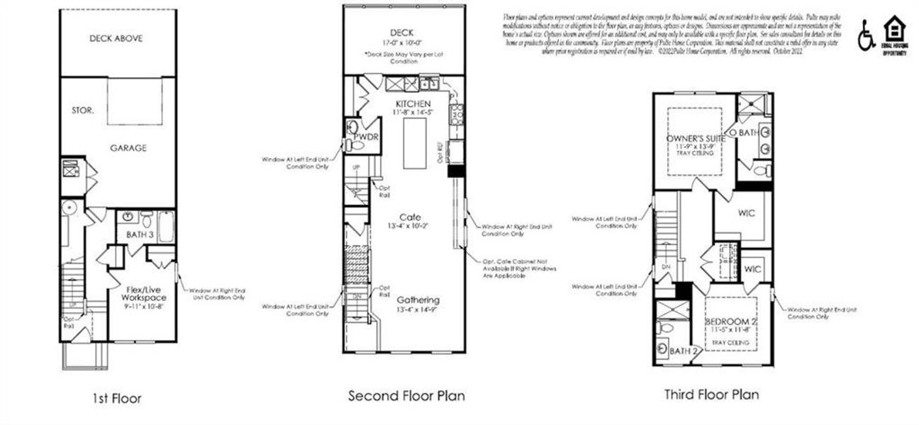
To-Be-Built! Welcome to 1871 Hollywood, a modern new construction townhome community by Pulte Homes on the Upper Westside of Atlanta. This stunning home offers an unparalleled living experience with 3 levels of modern, sleek design. A spacious bedroom with a full en-suite bathroom awaits on the 1st level. Step into the main level to discover a beautiful kitchen equipped with top-of-the-line appliances, sleek quartz countertops and soft-close cabinetry offering ample prep space. The open-concept layout seamlessly flows into the gathering room, creating a thoughtfully designed space. The primary bedroom boasts an en-suite bathroom, complete with spa like rain showerhead offering a serene retreat after a long day. Secondary bedroom upstairs offers an en-suite bathroom and privacy. This townhome is located in the trendy Upper Westside area of Atlanta, this property offers easy access to dining and entertainment choices at Provisions Westside, Westside Village, The Works, and Bellwood Coffee to shopping and outdoor activities. The HOA includes AT&T Fiber Internet, water, sewer and trash. Don't miss the opportunity to make this modern and sophisticated residence your own. Estimated completion April- June 2026! Please note pictures are of the model home! Pricing is adjusted to match the builder's current special incentive for the home of the month and is subject to change.
Pulte Realty of Georgia, Inc., MLS 7678613
May also be listed on the Pulte Homes website
Information last verified by Jome: Today at 2:23 AM (January 20, 2026)
Home highlights
Thrill-packed theme park near Atlanta with coasters, water rides, and family fun in a wooded, suburban setting.
Book your tour. Save an average of $18,473. We'll handle the rest.
We collect exclusive builder offers, book your tours, and support you from start to housewarming.
- Confirmed tours
- Get matched & compare top deals
- Expert help, no pressure
- No added fees
Estimated value based on Jome data, T&C apply
Home details
- Property status:
- Under construction
- Neighborhood:
- Riverside
- Lot size (acres):
- 0.01
- Size:
- 1,874 sqft
- Stories:
- 3+
- Beds:
- 3
- Baths:
- 3
- Half baths:
- 1
- Garage spaces:
- 1
- Fence:
- No Fence

Floor plan details
Teravista 3-Story
- 3 bd
- 3.5 ba
- 1,723 sqft
View Teravista 3-Story details
Construction details
- Builder Name:
- Pulte Homes
- Completion Date:
- March, 2026
- Year Built:
- 2025
- Roof:
- Composition Roofing, Shingle Roofing
Home features & finishes
- Construction Materials:
- CementBrick
- Cooling:
- Ceiling Fan(s)Central Air
- Flooring:
- Carpet FlooringTile FlooringHardwood Flooring
- Foundation Details:
- Slab
- Garage/Parking:
- Door OpenerGarageRear Entry Garage/ParkingAttached Garage
- Home amenities:
- InternetGreen Construction
- Interior Features:
- Ceiling-HighWalk-In ClosetFoyerPantryTray CeilingDouble Vanity
- Kitchen:
- DishwasherMicrowave OvenDisposalGas CooktopKitchen IslandElectric Oven
- Laundry facilities:
- Laundry Facilities In HallLaundry Facilities On Upper LevelLaundry Facilities In ClosetUtility/Laundry Room
- Lighting:
- Security Lights
- Property amenities:
- BalconyDeckLandscapingCabinetsPatioSmart Home SystemPorch
- Rooms:
- Bonus RoomKitchenDining RoomFamily RoomOpen Concept FloorplanPrimary Bedroom Upstairs
- Security system:
- Fire Sprinkler SystemSmoke DetectorCarbon Monoxide Detector

Get a consultation with our New Homes Expert
- See how your home builds wealth
- Plan your home-buying roadmap
- Discover hidden gems
Utility information
- Heating:
- Electric Heating, Heat Pump, Zoned Heating, Water Heater, Forced Air Heating
- Utilities:
- Electricity Available, Natural Gas Available, Underground Utilities, Phone Available, Cable Available, Sewer Available, Water Available, High Speed Internet Access

Community details
1871 Hollywood
by Pulte Homes, Atlanta, GA
- 5 homes
- 2 plans
- 1,723 - 1,874 sqft
View 1871 Hollywood details
Community amenities
- Dog Park
- Park Nearby
- Sidewalks Available
- Walking, Jogging, Hike Or Bike Trails
- Shopping Nearby
More homes in 1871 Hollywood
- Home at address 2578 Astaire Ct, Atlanta, GA 30318

Teravista 3-Story
$459,899
- 3 bd
- 3.5 ba
- 1,871 sqft
2578 Astaire Ct, Atlanta, GA 30318
- Home at address 2582 Astaire Ct, Atlanta, GA 30318

Teravista 3-Story
$474,074
- 3 bd
- 3.5 ba
- 1,874 sqft
2582 Astaire Ct, Atlanta, GA 30318
- Home at address 2584 Astaire Ct, Atlanta, GA 30318

Teravista 3-Story
$496,555
- 3 bd
- 3.5 ba
- 1,874 sqft
2584 Astaire Ct, Atlanta, GA 30318
- Home at address 2576 Astaire Ct, Atlanta, GA 30318

Teravista 3-Story
$508,307
- 3 bd
- 3.5 ba
- 1,874 sqft
2576 Astaire Ct, Atlanta, GA 30318
Floor plans in 1871 Hollywood
About the builder - Pulte Homes

- 268communities on Jome
- 1,649homes on Jome
Neighborhood
Home address
Schools in Atlanta City School District
- Grades 06-12Publiccorretta scott king young womens' leadership academy1.3 mi1190 northwest dr nw7/10
GreatSchools’ Summary Rating calculation is based on 4 of the school’s themed ratings, including test scores, student/academic progress, college readiness, and equity. This information should only be used as a reference. Jome is not affiliated with GreatSchools and does not endorse or guarantee this information. Please reach out to schools directly to verify all information and enrollment eligibility. Data provided by GreatSchools.org © 2025
Places of interest
Getting around
4 nearby routes: 4 bus, 0 rail, 0 otherAir quality
Noise level
A Soundscore™ rating is a number between 50 (very loud) and 100 (very quiet) that tells you how loud a location is due to environmental noise.

Considering this home?
Our expert will guide your tour, in-person or virtual
Need more information?
Text or call (888) 486-2818
Financials
Estimated monthly payment
Let us help you find your dream home
How many bedrooms are you looking for?
Similar homes nearby
Recently added communities in this area
Nearby communities in Atlanta
New homes in nearby cities
More New Homes in Atlanta, GA
Pulte Realty of Georgia, Inc., MLS 7678613
Some IDX listings have been excluded from this IDX display. Listings identified with the FMLS IDX logo come from FMLS and are held by brokerage firms other than the owner of this website. The listing brokerage is identified in any listing details. Information is deemed reliable but is not guaranteed. If you believe any FMLS listing contains material that infringes your copyrighted work please click here to review our DMCA policy and learn how to submit a takedown request. © 2025 First Multiple Listing Service, Inc.
Read moreLast checked Jan 20, 1:40 am
- Jome
- New homes search
- Georgia
- Atlanta Metropolitan Area
- Fulton County
- Atlanta
- 1871 Hollywood
- 2580 Astaire Ct, Atlanta, GA 30318



























