









Book your tour. Save an average of $18,473. We'll handle the rest.
We collect exclusive builder offers, book your tours, and support you from start to housewarming.
- Confirmed tours
- Get matched & compare top deals
- Expert help, no pressure
- No added fees
Estimated value based on Jome data, T&C apply















- 5 bd
- 4 ba
- 3,046 sqft
303 Rockledge Bnd Sw, Powder Springs, GA 30127
Why tour with Jome?
- No pressure toursTour at your own pace with no sales pressure
- Expert guidanceGet insights from our home buying experts
- Exclusive accessSee homes and deals not available elsewhere
Jome is featured in
- Single-Family
- Under construction
- $221.44/sqft
- $385/quarterly HOA
Home description
New construction located in renowned Lost Mountain/Harrison High School District! This beautiful Continental floorplan, with it's welcoming front porch will not disappoint! Situated on a flat and private homesite, surrounded by naturally preserved green space, offering lots of privacy and space for outdoor entertaining! Open concept floorplan with lots of natural light with a wall of windows in the rear of the house in both the gathering room and the sunroom addition. Guest en-suite on main- ideal for guests or office/playroom. Included 3rd car garage PLUS additional storage space in the garage adds great value to this plan. Upstairs boasts a great loft area for your family's retreat and relaxation.
Incredibly low HOA dues covers your lawn maintenance in addition to your monthly internet. Enjoy lock and go living in this low maintenance new home.
Neighborhood is ideally located near shopping, dining, amenities and recreation, healthcare plus quick access to major thoroughfares. Still time to impact design selections and put your personal touch!
This home is To-Be-Built so pictures are of the model. Price reflects base price, homesite premium, structural upgrades Limited time to pick your design finishes to personalize to your taste and budget.
Pulte Realty of Georgia, Inc., MLS 7738660
May also be listed on the Pulte Homes website
Information last verified by Jome: Today at 7:51 PM (March 20, 2026)
Home highlights
Home of the Atlanta Braves with modern ballpark vibes, dining, and housing in the vibrant Battery Atlanta district.
Book your tour. Save an average of $18,473. We'll handle the rest.
We collect exclusive builder offers, book your tours, and support you from start to housewarming.
- Confirmed tours
- Get matched & compare top deals
- Expert help, no pressure
- No added fees
Estimated value based on Jome data, T&C apply
Home details
- Property status:
- Under construction
- Lot size (acres):
- 0.83
- Size:
- 3,046 sqft
- Stories:
- 2
- Beds:
- 5
- Baths:
- 4
- Half baths:
- 1
- Garage spaces:
- 2
- Fence:
- No Fence
Construction details
- Builder Name:
- Pulte Homes
- Year Built:
- 2026
- Roof:
- Roof Gutter, Shingle Roofing
Home features & finishes
- Construction Materials:
- Brick
- Cooling:
- Central Air
- Flooring:
- Ceramic FlooringCarpet FlooringTile FlooringHardwood Flooring
- Foundation Details:
- Slab
- Garage/Parking:
- Door OpenerGarageFront Entry Garage/Parking
- Home amenities:
- Internet
- Interior Features:
- Ceiling-HighWalk-In ClosetCrown MoldingWalk-In PantryLoftDouble Vanity
- Kitchen:
- DishwasherMicrowave OvenOvenDisposalGas CooktopSelf Cleaning OvenKitchen IslandGas Oven
- Laundry facilities:
- Laundry Facilities On Upper LevelDryerUtility/Laundry Room
- Property amenities:
- BackyardButler's PantryLandscapingCabinetsYardPorch
- Rooms:
- Sitting AreaKitchenSitting RoomOffice/StudyDining RoomSeparate Living and Dining
- Security system:
- Smoke DetectorCarbon Monoxide Detector

Get a consultation with our New Homes Expert
- See how your home builds wealth
- Plan your home-buying roadmap
- Discover hidden gems
Utility information
- Heating:
- Central Heating, Forced Air Heating
- Utilities:
- Electricity Available, Natural Gas Available, Underground Utilities, Phone Available, Cable Available, Sewer Available, Water Available, High Speed Internet Access

Community details
Ashworth Estates
by Pulte Homes, Powder Springs, GA
- 5 homes
- 4 plans
- 2,869 - 3,554 sqft
View Ashworth Estates details
Community amenities
- Woods View
- Sidewalks Available
- Walking, Jogging, Hike Or Bike Trails
- Shopping Nearby
More homes in Ashworth Estates
- Home at address 248 Rockledge Bnd, Powder Springs, GA 30127

Riverton
$717,520
- 5 bd
- 4.5 ba
- 3,554 sqft
248 Rockledge Bnd, Powder Springs, GA 30127
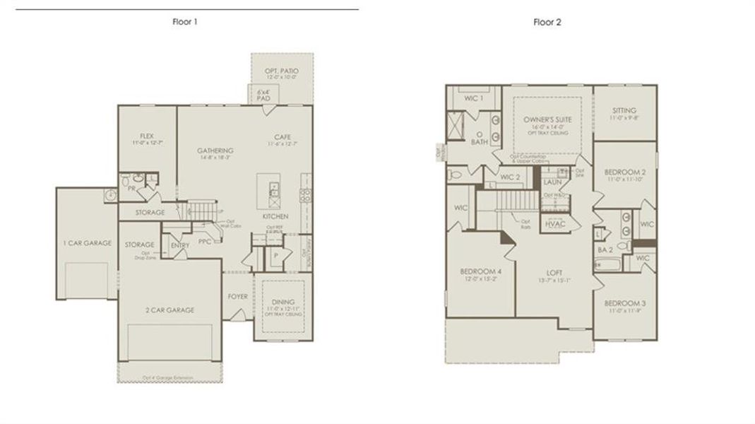
Floor plans in Ashworth Estates
About the builder - Pulte Homes

- 276communities on Jome
- 1,590homes on Jome
Neighborhood
Home address
- City:
- Powder Springs
- County:
- Cobb
- Zip Code:
- 30127
Schools in Cobb County School District
GreatSchools’ Summary Rating calculation is based on 4 of the school’s themed ratings, including test scores, student/academic progress, college readiness, and equity. This information should only be used as a reference. Jome is not affiliated with GreatSchools and does not endorse or guarantee this information. Please reach out to schools directly to verify all information and enrollment eligibility. Data provided by GreatSchools.org © 2025
Places of interest
Getting around
Air quality
Noise level
A Soundscore™ rating is a number between 50 (very loud) and 100 (very quiet) that tells you how loud a location is due to environmental noise.

Considering this home?
Our expert will guide your tour, in-person or virtual
Need more information?
Text or call (888) 545-5198
Financials
Estimated monthly payment
Let us help you find your dream home
How many bedrooms are you looking for?
Similar homes nearby
Recently added communities in this area
Nearby communities in Powder Springs
New homes in nearby cities
More New Homes in Powder Springs, GA
Pulte Realty of Georgia, Inc., MLS 7738660
Some IDX listings have been excluded from this IDX display. Listings identified with the FMLS IDX logo come from FMLS and are held by brokerage firms other than the owner of this website. The listing brokerage is identified in any listing details. Information is deemed reliable but is not guaranteed. If you believe any FMLS listing contains material that infringes your copyrighted work please click here to review our DMCA policy and learn how to submit a takedown request. © 2025 First Multiple Listing Service, Inc.
Read moreLast checked Mar 20, 7:40 pm
- Jome
- New homes search
- Georgia
- Atlanta Metropolitan Area
- Cobb County
- Powder Springs
- Ashworth Estates
- 303 Rockledge Bnd Sw, Powder Springs, GA 30127































