














Book your tour. Save an average of $18,473. We'll handle the rest.
- Confirmed tours
- Get matched & compare top deals
- Expert help, no pressure
- No added fees
Estimated value based on Jome data, T&C apply























Why tour with Jome?
- No pressure toursTour at your own pace with no sales pressure
- Expert guidanceGet insights from our home buying experts
- Exclusive accessSee homes and deals not available elsewhere
Jome is featured in
- Townhouse
- Quick move-in
- $198.68/sqft
- $190/monthly HOA
Home description
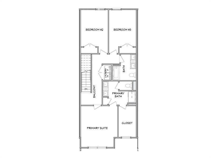
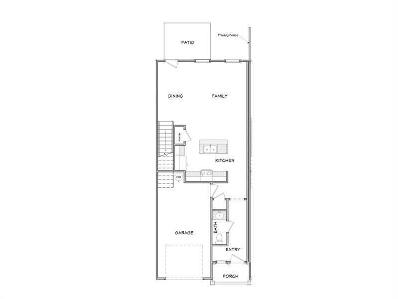
The Holly plan built by Create Homes. Quick Move-In! Enjoy the convenience of prime location close to shopping, dining, Hartsfield-Jackson International Airport, I-285, I-20, I-75 and the East-West Connector. Within walking distance to vibrant downtown Austell, this stunning new residence seamlessly blends contemporary style with functional living, creating a space that elevates your everyday. Enter into the open-concept main level which offers a modern kitchen featuring stylish countertops, stainless steel appliances, a spacious island, and soft-close cabinets and drawers. This space seamlessly flows into the dining and living areas, making it ideal for both everyday living and entertaining. A private rear patio extends your living space, providing a great spot to unwind and enjoy the outdoors. Upstairs you'll find the primary suite offers a spacious retreat with a double vanity, a walk-in closet, and modern hardware and fixtures for a sleek, contemporary feel. The laundry room is conveniently located nearby, and two secondary bedrooms with a full bath completes this floor. Built by Create Homes, this energy-efficient townhome features smart home technology and quality construction. Ask us about our up to $7,500 closing costs incentive with use of preferred lender with binding contract by 12/31/2025. Secondary photos are of the standing Model Home, listing color selections vary. Kitchen and Master Bath are of the actual home.
RE/MAX Tru, MLS 7650179
May also be listed on the Create Homes website
Information last verified by Jome: Today at 2:25 AM (December 17, 2025)
Home highlights
Thrill-packed theme park near Atlanta with coasters, water rides, and family fun in a wooded, suburban setting.
Book your tour. Save an average of $18,473. We'll handle the rest.
We collect exclusive builder offers, book your tours, and support you from start to housewarming.
- Confirmed tours
- Get matched & compare top deals
- Expert help, no pressure
- No added fees
Estimated value based on Jome data, T&C apply
Home details
- Property status:
- Move-in ready
- Size:
- 1,585 sqft
- Stories:
- 2
- Beds:
- 3
- Baths:
- 2
- Half baths:
- 1
- Garage spaces:
- 1
- Fence:
- No Fence
Construction details
- Builder Name:
- Create Homes
- Year Built:
- 2025
- Roof:
- Composition Roofing, Shingle Roofing
Home features & finishes
- Construction Materials:
- Cement
- Cooling:
- Ceiling Fan(s)Central Air
- Flooring:
- Ceramic FlooringCarpet FlooringTile Flooring
- Foundation Details:
- Slab
- Garage/Parking:
- Door OpenerGarage
- Interior Features:
- Ceiling-HighDouble Vanity
- Kitchen:
- DishwasherMicrowave OvenElectric Oven
- Laundry facilities:
- Laundry Facilities On Upper Level
- Property amenities:
- BackyardLandscapingSmart Home System
- Rooms:
- Family RoomOpen Concept Floorplan
- Security system:
- Smoke Detector

Get a consultation with our New Homes Expert
- See how your home builds wealth
- Plan your home-buying roadmap
- Discover hidden gems
Utility information
- Heating:
- Central Heating
- Utilities:
- Electricity Available, Water Available

Community details
Medlock Park
by Create Homes, Austell, GA
- 5 homes
- 2 plans
- 1,585 - 1,585 sqft
View Medlock Park details
More homes in Medlock Park
Floor plans in Medlock Park
About the builder - Create Homes
Neighborhood
Home address
Schools in Cobb County School District
GreatSchools’ Summary Rating calculation is based on 4 of the school’s themed ratings, including test scores, student/academic progress, college readiness, and equity. This information should only be used as a reference. Jome is not affiliated with GreatSchools and does not endorse or guarantee this information. Please reach out to schools directly to verify all information and enrollment eligibility. Data provided by GreatSchools.org © 2025
Places of interest
Getting around
Air quality
Noise level
A Soundscore™ rating is a number between 50 (very loud) and 100 (very quiet) that tells you how loud a location is due to environmental noise.
Natural hazards risk
Climate hazards can impact homes and communities, with risks varying by location. These scores reflect the potential impact of natural disasters and climate-related risks on Cobb County
Provided by FEMA

Considering this home?
Our expert will guide your tour, in-person or virtual
Need more information?
Text or call (888) 486-2818
Financials
Estimated monthly payment
Let us help you find your dream home
How many bedrooms are you looking for?
Similar homes nearby
Recently added communities in this area
Nearby communities in Austell
New homes in nearby cities
More New Homes in Austell, GA
RE/MAX Tru, MLS 7650179
Some IDX listings have been excluded from this IDX display. Listings identified with the FMLS IDX logo come from FMLS and are held by brokerage firms other than the owner of this website. The listing brokerage is identified in any listing details. Information is deemed reliable but is not guaranteed. If you believe any FMLS listing contains material that infringes your copyrighted work please click here to review our DMCA policy and learn how to submit a takedown request. © 2025 First Multiple Listing Service, Inc.
Read moreLast checked Dec 17, 7:40 pm
- Jome
- New homes search
- Georgia
- Atlanta Metropolitan Area
- Cobb County
- Austell
- Medlock Park
- 27 Benscot Dr, Austell, GA 30106

































