














Book your tour. Save an average of $18,473. We'll handle the rest.
- Confirmed tours
- Get matched & compare top deals
- Expert help, no pressure
- No added fees
Estimated value based on Jome data, T&C apply













- 4 bd
- 2 ba
- 1,565 sqft
1118 Buckhead Lp Se-, Unit 12, Allenhurst, GA 31301
Why tour with Jome?
- No pressure toursTour at your own pace with no sales pressure
- Expert guidanceGet insights from our home buying experts
- Exclusive accessSee homes and deals not available elsewhere
Jome is featured in
- Single-Family
- Quick move-in
- $176.13/sqft
- 0.67-acre lot
Home description
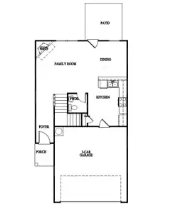
This charming 4-bedroom, 2-bathroom ranch is located in the peaceful countryside of Sassafras Phase 2 on a spacious 0.67-acre homesite with great curb appeal and a beautiful brick skirt. This home offers ample storage and flexible living spaces, making it perfect for families of all sizes. The open-concept layout provides clear sight lines from the kitchen and breakfast area, making entertaining easy. The private primary suite features a large walk-in closet and a relaxing bath with dual vanity, garden tub, and separate shower. Artistic renderings are for informational purposes only. Actual floor plans, features, and inclusions may vary.
May also be listed on the RTS Homes website
Information last verified by Jome: Today at 12:03 PM (December 5, 2025)
Home highlights
Book your tour. Save an average of $18,473. We'll handle the rest.
We collect exclusive builder offers, book your tours, and support you from start to housewarming.
- Confirmed tours
- Get matched & compare top deals
- Expert help, no pressure
- No added fees
Estimated value based on Jome data, T&C apply
Home details
- Property status:
- Move-in ready
- Lot size (acres):
- 0.67
- Size:
- 1,565 sqft
- Stories:
- 1
- Beds:
- 4
- Baths:
- 2
- Garage spaces:
- 2
Construction details
- Builder Name:
- RTS Homes
- Completion Date:
- October, 2025
Home features & finishes
- Garage/Parking:
- Garage
- Rooms:
- Primary Bedroom On MainPrimary Bedroom Downstairs

Community details
The Village at Sassafras
by RTS Homes, Allenhurst, GA
- 18 homes
- 17 plans
- 1,280 - 2,813 sqft
View The Village at Sassafras details
More homes in The Village at Sassafras
Floor plans in The Village at Sassafras
About the builder - RTS Homes
Neighborhood
Home address
- City:
- Allenhurst
- Zip Code:
- 31301
Schools in Long County School District
GreatSchools’ Summary Rating calculation is based on 4 of the school’s themed ratings, including test scores, student/academic progress, college readiness, and equity. This information should only be used as a reference. Jome is not affiliated with GreatSchools and does not endorse or guarantee this information. Please reach out to schools directly to verify all information and enrollment eligibility. Data provided by GreatSchools.org © 2025
Getting around

Considering this home?
Our expert will guide your tour, in-person or virtual
Need more information?
Text or call (888) 486-2818
Financials
Estimated monthly payment
Similar homes nearby
Recently added communities in this area
Nearby communities in Allenhurst
New homes in nearby cities
More New Homes in Allenhurst, GA
- Home
- New homes
- Georgia
- Allenhurst
- The Village at Sassafras
- 1118 Buckhead Lp Se-, Unit 12, Allenhurst, GA 31301







































