














Book your tour. Save an average of $18,473. We'll handle the rest.
- Confirmed tours
- Get matched & compare top deals
- Expert help, no pressure
- No added fees
Estimated value based on Jome data, T&C apply































- 3 bd
- 3 ba
- 2,499 sqft
3507 Fishpond Cir, Dacula, GA 30019
Why tour with Jome?
- No pressure toursTour at your own pace with no sales pressure
- Expert guidanceGet insights from our home buying experts
- Exclusive accessSee homes and deals not available elsewhere
Jome is featured in
- Single-Family
- Quick move-in
- $235.73/sqft
- $185/monthly HOA
Home description
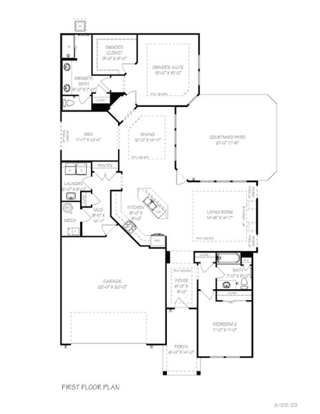
Quick Move-In opportunity on Homesite 100, a large pie-shaped homesite across from the lake, just shy of ¼ acre, at The Courtyards at Bailey Farms! Limited Time Opportunity - 4.5% Interest Rate - See onsite sales consultant for details. Our award-winning Portico floor plan, with a bonus suite, has 3 bedrooms and 3 bathrooms with a large, very open, courtyard in our 55+ Active Lifestyle Community. A deluxe kitchen with a gas cooktop, quartz countertops, light wicker color stain full overlay kitchen cabinets, soft closing doors and drawers, roll out shelves and pull-out trash center. Wall ovens with microwave and French 3 door refrigerator included. The open-concept family room, with a fireplace, flows seamlessly into the kitchen and dining area, allowing you to be a part of all your gatherings, even while cooking in the well-equipped kitchen. Enjoy all the natural light from the many over-sized Pella windows at the front and side of the home along with views of the lake from the private courtyard. The owner’s bath features a spa-like zero-entry shower, dual quartz vanities with undermount sinks, and a large linen closet. Spacious bonus suite with large bedroom, bathroom with a walk-in shower, and a fabulous view of the lake from the living area. Located in a prestigious Epcon community, The Courtyards at Bailey Farms, residents enjoy resort-style amenities including a pool, large clubhouse with fitness center, pickleball courts, fenced-in dog park, fire pit area and a lake with a dock and plenty of fish! With easy access to I-85 and just minutes from the local grocery and other shopping and dining, 15 minutes to Mall of GA, golf courses, Little Mulberry Park, this home offers both convenience and an active lifestyle. Amenities and lawncare is covered by monthly HOA fees of $185. Ask agent for special quick move in promotions.
Plowman Properties, LLC, MLS 7626321
May also be listed on the Epcon Communities website
Information last verified by Jome: Today at 2:31 AM (December 5, 2025)
Home highlights
Versatile arena in Duluth hosting concerts, sports, and events near Gwinnett’s shops and residential communities.
Book your tour. Save an average of $18,473. We'll handle the rest.
We collect exclusive builder offers, book your tours, and support you from start to housewarming.
- Confirmed tours
- Get matched & compare top deals
- Expert help, no pressure
- No added fees
Estimated value based on Jome data, T&C apply
Home details
- Property status:
- Move-in ready
- Lot size (acres):
- 0.23
- Size:
- 2,499 sqft
- Stories:
- 1.5
- Beds:
- 3
- Baths:
- 3
- Garage spaces:
- 2
- Fence:
- Wrought Iron Fence
- Facing direction:
- Southwest
Construction details
- Builder Name:
- Epcon Communities
- Completion Date:
- July, 2025
- Year Built:
- 2025
- Roof:
- Composition Roofing, Shingle Roofing
Home features & finishes
- Construction Materials:
- Cement
- Cooling:
- Central Air
- Flooring:
- Laminate Flooring
- Foundation Details:
- Slab
- Garage/Parking:
- Door OpenerGarageFront Entry Garage/ParkingAttached Garage
- Home amenities:
- InternetHome Accessibility FeaturesGreen Construction
- Interior Features:
- Walk-In ClosetCrown MoldingFoyerPantryTray CeilingBreakfast BarLoftDouble Vanity
- Kitchen:
- DishwasherMicrowave OvenOvenRefrigeratorDisposalGas CooktopKitchen IslandDouble OvenElectric Oven
- Laundry facilities:
- DryerLaundry Facilities On Main LevelUtility/Laundry Room
- Lighting:
- Exterior Lighting
- Property amenities:
- BarGas Log FireplaceCourtyardLandscapingCabinetsFireplaceYardSmart Home SystemPorch
- Rooms:
- Primary Bedroom On MainKitchenDen RoomOffice/StudyMudroomDining RoomFamily RoomLiving RoomBreakfast AreaOpen Concept FloorplanSeparate Living and DiningPrimary Bedroom Downstairs
- Security system:
- Smoke DetectorCarbon Monoxide Detector
Utility information
- Heating:
- Water Heater, Central Heating
- Utilities:
- Electricity Available, Natural Gas Available, Phone Available, Cable Available, Sewer Available, High Speed Internet Access

Community details
The Courtyards at Bailey Farm
by Epcon Communities, Dacula, GA
- 5 homes
- 4 plans
- 1,520 - 2,826 sqft
View The Courtyards at Bailey Farm details
Community amenities
- Dog Park
- Fitness Center/Exercise Area
- Club House
- Community Pool
- Dock
- Sidewalks Available
- Walking, Jogging, Hike Or Bike Trails
- Pickleball Court
- Shopping Nearby
More homes in The Courtyards at Bailey Farm
Floor plans in The Courtyards at Bailey Farm
About the builder - Epcon Communities
Neighborhood
Home address
Schools in Gwinnett County School District
GreatSchools’ Summary Rating calculation is based on 4 of the school’s themed ratings, including test scores, student/academic progress, college readiness, and equity. This information should only be used as a reference. Jome is not affiliated with GreatSchools and does not endorse or guarantee this information. Please reach out to schools directly to verify all information and enrollment eligibility. Data provided by GreatSchools.org © 2025
Places of interest
Getting around
Air quality
Noise level
A Soundscore™ rating is a number between 50 (very loud) and 100 (very quiet) that tells you how loud a location is due to environmental noise.
Natural hazards risk
Climate hazards can impact homes and communities, with risks varying by location. These scores reflect the potential impact of natural disasters and climate-related risks on Gwinnett County
Provided by FEMA

Considering this home?
Our expert will guide your tour, in-person or virtual
Need more information?
Text or call (888) 486-2818
Financials
Estimated monthly payment
Similar homes nearby
Recently added communities in this area
Nearby communities in Dacula
New homes in nearby cities
More New Homes in Dacula, GA
Plowman Properties, LLC, MLS 7626321
Some IDX listings have been excluded from this IDX display. Listings identified with the FMLS IDX logo come from FMLS and are held by brokerage firms other than the owner of this website. The listing brokerage is identified in any listing details. Information is deemed reliable but is not guaranteed. If you believe any FMLS listing contains material that infringes your copyrighted work please click here to review our DMCA policy and learn how to submit a takedown request. © 2025 First Multiple Listing Service, Inc.
Read moreLast checked Dec 5, 7:40 am
- Home
- New homes
- Georgia
- Atlanta Metropolitan Area
- Gwinnett County
- Dacula
- The Courtyards at Bailey Farm
- 3507 Fishpond Cir, Dacula, GA 30019
































