














Book your tour. Save an average of $18,473. We'll handle the rest.
We collect exclusive builder offers, book your tours, and support you from start to housewarming.
- Confirmed tours
- Get matched & compare top deals
- Expert help, no pressure
- No added fees
Estimated value based on Jome data, T&C apply




































- 2 bd
- 2.5 ba
- 1,071 sqft
722 Urban Grange Wy, Suwanee, GA 30024
Why tour with Jome?
- No pressure toursTour at your own pace with no sales pressure
- Expert guidanceGet insights from our home buying experts
- Exclusive accessSee homes and deals not available elsewhere
Jome is featured in
- Condo
- Quick move-in
- $451.28/sqft
- $3,000/annual HOA
Home description
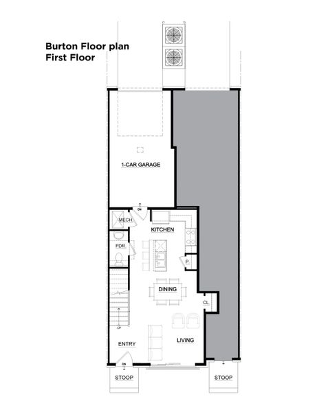
The Burton plan is a two story contemporary condominium with a layout both practical and well-suited for entertaining. Upon entry, you’re met with a sophisticated open-concept first floor living area which features a seamless flow from living room to dining room and kitchen. Garage entry is connected to the kitchen in the back of the space with a convenient powder room as well. Downstairs is the perfect space for lifestyle and entertaining, while the second floor provides privacy for the secondary bedroom and the beautiful primary suite. Highlights include a decadent primary bathroom with his and hers sinks and a spacious walk-in closet and laundry located just across the hall.
May also be listed on the UnionMain Homes website
Information last verified by Jome: Thursday at 10:28 AM (March 5, 2026)
Book your tour. Save an average of $18,473. We'll handle the rest.
We collect exclusive builder offers, book your tours, and support you from start to housewarming.
- Confirmed tours
- Get matched & compare top deals
- Expert help, no pressure
- No added fees
Estimated value based on Jome data, T&C apply
Home details
- Property status:
- Move-in ready
- Size:
- 1,071 sqft
- Stories:
- 2
- Beds:
- 2
- Baths:
- 2.5
- Garage spaces:
- 1
- Facing direction:
- Southwest
Construction details
- Builder Name:
- UnionMain Homes
- Completion Date:
- October, 2025
Home features & finishes
- Garage/Parking:
- GarageAttached Garage
- Interior Features:
- Walk-In ClosetPantry
- Laundry facilities:
- Utility/Laundry Room
- Rooms:
- KitchenPowder RoomLiving RoomOpen Concept FloorplanPrimary Bedroom Upstairs

Get a consultation with our New Homes Expert
- See how your home builds wealth
- Plan your home-buying roadmap
- Discover hidden gems

Community details
Echo Park
by UnionMain Homes, Suwanee, GA
- 21 homes
- 1,071 - 3,054 sqft
View Echo Park details
More homes in Echo Park
- Home at address 754 Urban Grange Wy, Suwanee, GA 30024

Home
$415,000
- 2 bd
- 2.5 ba
- 1,071 sqft
754 Urban Grange Wy, Suwanee, GA 30024
- Home at address 742 Urban Grange Wy, Suwanee, GA 30024

Burton
$423,000
- 2 bd
- 2.5 ba
- 1,071 sqft
742 Urban Grange Wy, Suwanee, GA 30024
- Home at address 692 Urban Grange Wy, Suwanee, GA 30024

Burton
$455,000
- 2 bd
- 2.5 ba
- 1,071 sqft
692 Urban Grange Wy, Suwanee, GA 30024
- Home at address 734 Urban Grange Wy, Suwanee, GA 30024

The Sinclair
$484,000
- 3 bd
- 2.5 ba
- 1,923 sqft
734 Urban Grange Wy, Suwanee, GA 30024
- Home at address 744 Urban Grange Wy, Suwanee, GA 30024

The Sinclair
$484,000
- 3 bd
- 2.5 ba
- 1,923 sqft
744 Urban Grange Wy, Suwanee, GA 30024
- Home at address 714 Urban Grange Wy, Suwanee, GA 30024

The Sinclair
$484,000
- 3 bd
- 2.5 ba
- 1,923 sqft
714 Urban Grange Wy, Suwanee, GA 30024
About the builder - UnionMain Homes
Neighborhood
Home address
Schools in Gwinnett County School District
GreatSchools’ Summary Rating calculation is based on 4 of the school’s themed ratings, including test scores, student/academic progress, college readiness, and equity. This information should only be used as a reference. Jome is not affiliated with GreatSchools and does not endorse or guarantee this information. Please reach out to schools directly to verify all information and enrollment eligibility. Data provided by GreatSchools.org © 2025
Places of interest
Getting around
Air quality
Noise level
A Soundscore™ rating is a number between 50 (very loud) and 100 (very quiet) that tells you how loud a location is due to environmental noise.

Considering this home?
Our expert will guide your tour, in-person or virtual
Need more information?
Text or call (888) 488-9243
Financials
Estimated monthly payment
Let us help you find your dream home
How many bedrooms are you looking for?
Similar homes nearby
Recently added communities in this area
Nearby communities in Suwanee
New homes in nearby cities
More New Homes in Suwanee, GA
- Jome
- New homes search
- Georgia
- Atlanta Metropolitan Area
- Gwinnett County
- Suwanee
- Echo Park
- 722 Urban Grange Wy, Suwanee, GA 30024



























