




Book your tour. Save an average of $18,473. We'll handle the rest.
- Confirmed tours
- Get matched & compare top deals
- Expert help, no pressure
- No added fees
Estimated value based on Jome data, T&C apply
- 4 bd
- 3 ba
- 2,316 sqft
7244 Millbrae Walk, Flowery Branch, GA 30542
Why tour with Jome?
- No pressure toursTour at your own pace with no sales pressure
- Expert guidanceGet insights from our home buying experts
- Exclusive accessSee homes and deals not available elsewhere
Jome is featured in
- Single-Family
- Quick move-in
- $227.94/sqft
- $1,240/annual HOA
Home description
Discover the Brookpark in Clark Farms, an outstanding community designed by McKinley Homes in the city of Flowery Branch. This newly constructed home uses high-quality materials and finishes to create a luxurious ambiance you'll love coming home to for years.
Located at Millbrae Walk, Georgia 30542 in the prestigious Clark Farms, you'll find a collection of other new construction homes created with various layouts, along with a welcoming community of neighbors and a variety of amenities to enrich your lifestyle.
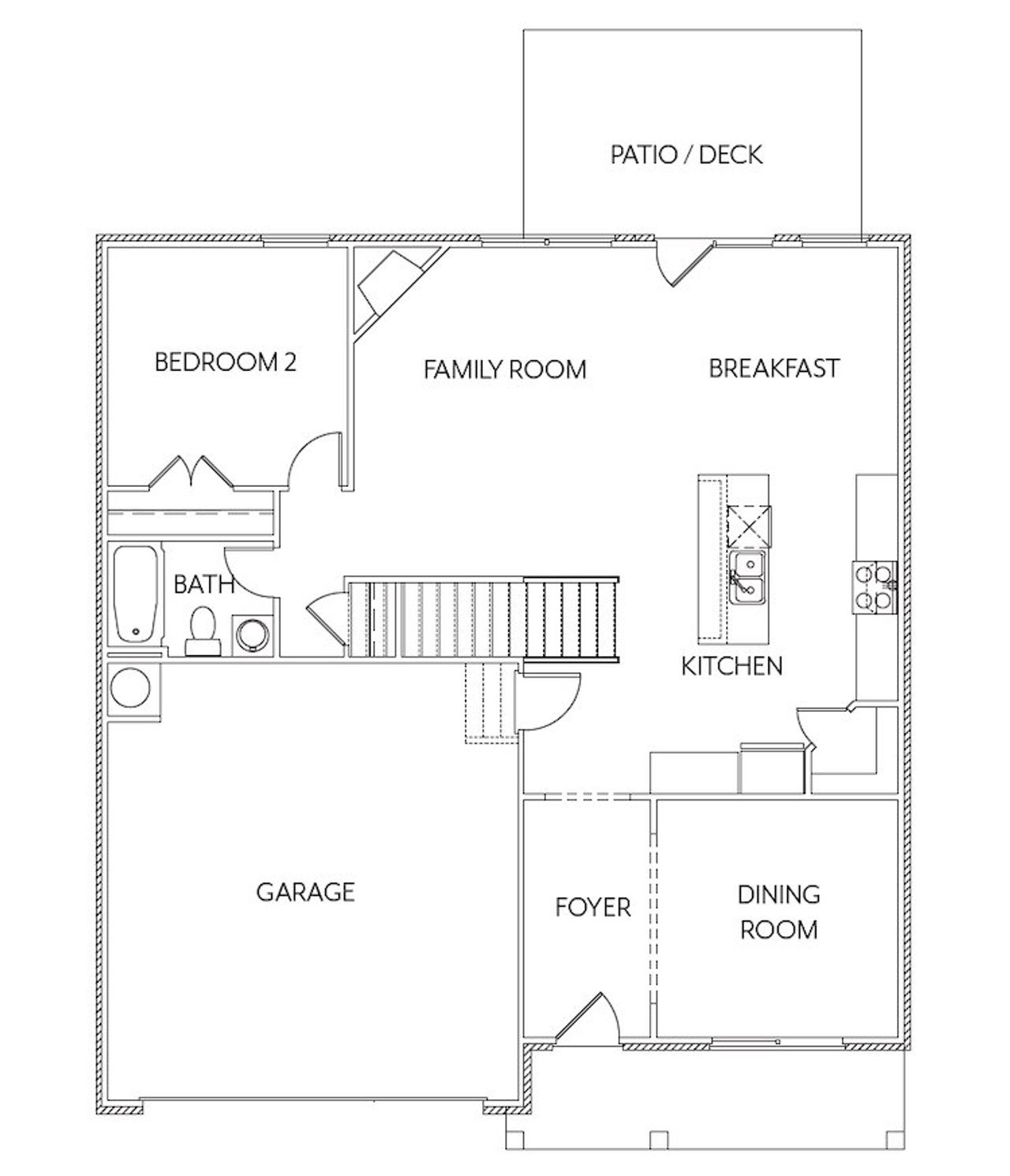
The Brookpark is a beautiful 2-story home with 4 spacious bedrooms, and 3 modern bathrooms spread over 2,316 square feet. This home also includes a garage with 2 spaces for parking vehicles, extra storage, or hobby essentials.
You'll love the convenience of being close to fantastic shopping, top-notch dining options, entertainment, and opportunities for outdoor adventures. Plus, Clark Farms is zoned to the reputable Hall County School District, providing easy access to the best schools in the area.
Does Brookpark sound like your dream home? Work with Jome to make it a reality. Contact a New Construction Specialist to take the first step towards a lifestyle of convenience and luxury in this wonderfully located crafted home.
McKinley Properties, LLC.
May also be listed on the McKinley Homes website
Information last verified by Jome: Thursday at 10:06 PM (August 14, 2025)
Home highlights
Popular North Georgia lake offering boating, fishing, and lakeside living near metro Atlanta and mountain getaways.
Book your tour. Save an average of $18,473. We'll handle the rest.
We collect exclusive builder offers, book your tours, and support you from start to housewarming.
- Confirmed tours
- Get matched & compare top deals
- Expert help, no pressure
- No added fees
Estimated value based on Jome data, T&C apply
Home details
- Property status:
- Move-in ready
- Size:
- 2,316 sqft
- Stories:
- 2
- Beds:
- 4
- Baths:
- 3
- Garage spaces:
- 2
- Facing direction:
- Northwest
Construction details
- Builder Name:
- McKinley Homes
- Year Built:
- 2025
Home features & finishes
- Garage/Parking:
- GarageAttached Garage
- Interior Features:
- Walk-In ClosetFoyerPantryLoft
- Laundry facilities:
- Utility/Laundry Room
- Property amenities:
- PatioFireplace
- Rooms:
- KitchenDining RoomFamily RoomBreakfast AreaOpen Concept FloorplanPrimary Bedroom Upstairs

Get a consultation with our New Homes Expert
- See how your home builds wealth
- Plan your home-buying roadmap
- Discover hidden gems

Community details
Clark Farms
by McKinley Homes, Flowery Branch, GA
- 10 homes
- 6 plans
- 2,316 - 2,626 sqft
View Clark Farms details
More homes in Clark Farms
Floor plans in Clark Farms
About the builder - McKinley Homes
Neighborhood
Home address
- City:
- Flowery Branch
- County:
- Hall
- Zip Code:
- 30542
Schools in Hall County School District
GreatSchools’ Summary Rating calculation is based on 4 of the school’s themed ratings, including test scores, student/academic progress, college readiness, and equity. This information should only be used as a reference. Jome is not affiliated with GreatSchools and does not endorse or guarantee this information. Please reach out to schools directly to verify all information and enrollment eligibility. Data provided by GreatSchools.org © 2025
Places of interest
Getting around
Noise level
A Soundscore™ rating is a number between 50 (very loud) and 100 (very quiet) that tells you how loud a location is due to environmental noise.
Natural hazards risk
Climate hazards can impact homes and communities, with risks varying by location. These scores reflect the potential impact of natural disasters and climate-related risks on Hall County
Provided by FEMA

Considering this home?
Our expert will guide your tour, in-person or virtual
Need more information?
Text or call (888) 486-2818
Financials
Estimated monthly payment
Let us help you find your dream home
How many bedrooms are you looking for?
Similar homes nearby
Recently added communities in this area
Nearby communities in Flowery Branch
New homes in nearby cities
More New Homes in Flowery Branch, GA
- Jome
- New homes search
- Georgia
- Atlanta Metropolitan Area
- Hall County
- Flowery Branch
- Clark Farms
- 7244 Millbrae Walk, Flowery Branch, GA 30542







































