




















- 3 bd
- 2.5 ba
- 1,442 sqft
34 Downing Dr, Adairsville, GA 30103
- Townhouse
- $159.49/sqft
- $90/monthly HOA
- 110 days on Jome
New Homes for Sale Near 34 Downing Dr, Adairsville, GA 30103
About this Home
Welcome to General Chase- the lowest priced new townhomes in Bartow County in Adairsville, GA.
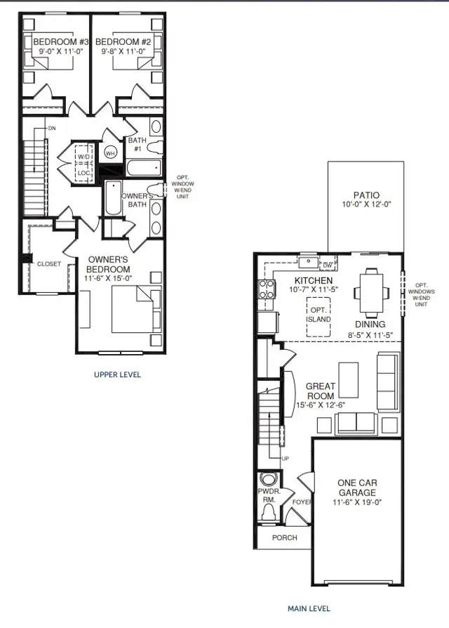
This quick move-in Poplar features 3 bedrooms, 2.5 baths and a 1-car garage. Enjoy an open concept design and a beautiful gourmet kitchen, with granite countertops, a kitchen island, and all appliances included. This unit also comes with upgraded cabinets and flooring, as well as a 10x12 foot patio. Upstairs experience the convenience of a 2nd level laundry closet and best of all, the washer and dryer are included!
Sit back and relax with HOA provided lawn care and irrigation.
Buy today and enjoy your new home for the holidays!
May also be listed on the Ryan Homes website
Information last verified by Jome: Monday at 1:30 AM (October 27, 2025)
Home details
- Property status:
- Sold
- Size:
- 1,442 sqft
- Stories:
- 2
- Beds:
- 3
- Baths:
- 2
- Half baths:
- 1
- Garage spaces:
- 1
Construction details
- Builder Name:
- Ryan Homes
- Completion Date:
- September, 2025
Home features & finishes
- Garage/Parking:
- GarageAttached Garage
- Interior Features:
- Walk-In ClosetFoyerPantry
- Kitchen:
- Kitchen Island
- Laundry facilities:
- Utility/Laundry Room
- Property amenities:
- PatioPorch
- Rooms:
- KitchenPowder RoomDining RoomFamily RoomPrimary Bedroom Upstairs
About the builder - Ryan Homes
Neighborhood
Home address
- City:
- Adairsville
- County:
- Bartow
- Zip Code:
- 30103
Schools in Bartow County School District
GreatSchools’ Summary Rating calculation is based on 4 of the school’s themed ratings, including test scores, student/academic progress, college readiness, and equity. This information should only be used as a reference. Jome is not affiliated with GreatSchools and does not endorse or guarantee this information. Please reach out to schools directly to verify all information and enrollment eligibility. Data provided by GreatSchools.org © 2025
Places of interest
Getting around
Air quality
Noise level
A Soundscore™ rating is a number between 50 (very loud) and 100 (very quiet) that tells you how loud a location is due to environmental noise.
Natural hazards risk
Climate hazards can impact homes and communities, with risks varying by location. These scores reflect the potential impact of natural disasters and climate-related risks on Bartow County
Provided by FEMA
Financials
Nearby communities in Adairsville
Recently added communities in this area
Other Builders in Adairsville, GA
Nearby sold homes
New homes in nearby cities
More New Homes in Adairsville, GA
- Home
- New homes
- Georgia
- Atlanta Metropolitan Area
- Bartow County
- Adairsville
- General Chase
- 34 Downing Dr, Adairsville, GA 30103

























































