













Book your tour. Save an average of $18,473. We'll handle the rest.
- Confirmed tours
- Get matched & compare top deals
- Expert help, no pressure
- No added fees
Estimated value based on Jome data, T&C apply




























Why tour with Jome?
- No pressure toursTour at your own pace with no sales pressure
- Expert guidanceGet insights from our home buying experts
- Exclusive accessSee homes and deals not available elsewhere
Jome is featured in
- Single-Family
- Quick move-in
- $226.82/sqft
- $840/annual HOA
Home description
Seller is offering $15,000 towards closing costs or temporary rate buydown with an accepted offer!
Welcome to 165 Kerr Drive, a stunning 2024-built home tucked away on one of Twin Lakes’ most private cul-de-sac streets. Positioned on a premium lot with complete privacy, it captivates from the moment you arrive.
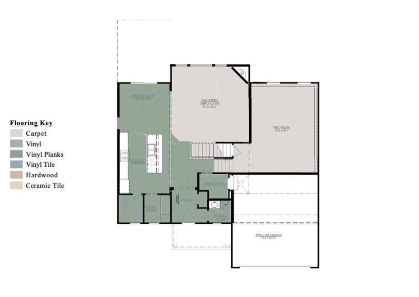
Less than a year old, this home offers a rare chance to skip the wait for new construction while enjoying a move-in-ready retreat. The open-concept main level is filled with natural light from soaring two-story windows and features a chef’s kitchen with a quartz island, stainless steel appliances, and a butler’s pantry perfect for a coffee bar or extra storage.
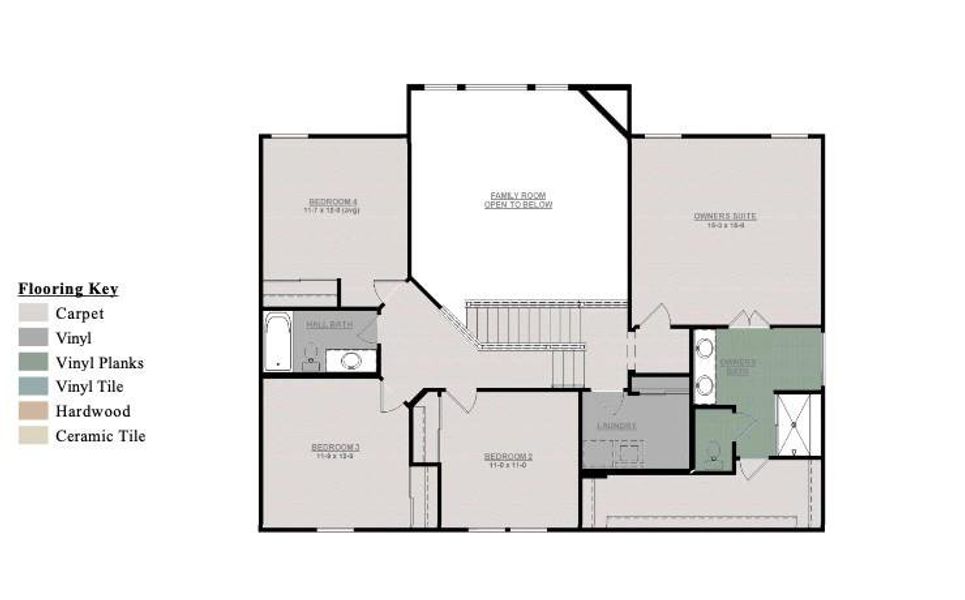
Upstairs, the primary suite boasts a spa-inspired bath and oversized walk-in closet, while three additional bedrooms share a full bath and a convenient laundry room. A versatile bonus room on the main level adds flexible living space, and the unfinished basement provides endless potential.
Step outside to a private deck and fenced backyard that overlooks lush greenspace, or enjoy Twin Lakes’ resort-style amenities—pools, tennis, fitness center, playgrounds, and scenic trails. With top-rated schools, nearby shopping such as Publix, Mall of Georgia, and downtown Braselton, and easy access to Atlanta, this home blends privacy, convenience, and modern living in one perfect package.
Exceptional value for a home of this size, condition, and location. Move in today and start living the Twin Lakes lifestyle!
Compass, MLS 7648910
May also be listed on the Fischer Homes website
Information last verified by Jome: Today at 2:24 AM (December 5, 2025)
Home highlights
Popular North Georgia lake offering boating, fishing, and lakeside living near metro Atlanta and mountain getaways.
Book your tour. Save an average of $18,473. We'll handle the rest.
We collect exclusive builder offers, book your tours, and support you from start to housewarming.
- Confirmed tours
- Get matched & compare top deals
- Expert help, no pressure
- No added fees
Estimated value based on Jome data, T&C apply
Home details
- Property status:
- Move-in ready
- Lot size (acres):
- 0.20
- Size:
- 2,535 sqft
- Stories:
- 2
- Beds:
- 4
- Baths:
- 2.5
- Garage spaces:
- 2
- Fence:
- Wrought Iron Fence, No Fence
Construction details
- Builder Name:
- Fischer Homes
- Year Built:
- 2024
- Roof:
- Composition Roofing, Shingle Roofing
Home features & finishes
- Construction Materials:
- CementStone
- Cooling:
- Ceiling Fan(s)Central Air
- Flooring:
- Vinyl FlooringCarpet Flooring
- Foundation Details:
- SlabConcrete Perimeter
- Garage/Parking:
- GarageAttached Garage
- Home amenities:
- InternetGreen Construction
- Interior Features:
- Ceiling-HighWalk-In ClosetFoyerBreakfast BarWalk-In PantrySeparate ShowerDouble Vanity
- Kitchen:
- DishwasherMicrowave OvenDisposalGas CooktopSelf Cleaning OvenKitchen IslandGas OvenKitchen Range
- Laundry facilities:
- Laundry Facilities On Upper LevelUtility/Laundry Room
- Property amenities:
- BasementBarDeckGas Log FireplaceBackyardButler's PantrySoaking TubLandscapingCabinetsPatioFireplaceYardPorch
- Rooms:
- AtticKitchenDen RoomFamily RoomBreakfast Area
- Security system:
- Smoke DetectorCarbon Monoxide Detector
Utility information
- Heating:
- Water Heater, Central Heating, Gas Heating, Forced Air Heating
- Utilities:
- Electricity Available, Natural Gas Available, Underground Utilities, Phone Available, Cable Available, Sewer Available, Water Available, High Speed Internet Access

Community details
Twin Lakes at Twin Lakes
by Fischer Homes, Hoschton, GA
- 10 homes
- 27 plans
- 1,730 - 4,069 sqft
View Twin Lakes details
Community amenities
- Energy Efficient
- Woods View
- Playground
- Fitness Center/Exercise Area
- Club House
- Tennis Courts
- Community Pool
- Sidewalks Available
- Pickleball Court
- Shopping Nearby
More homes in Twin Lakes
Floor plans in Twin Lakes
About the builder - Fischer Homes
Neighborhood
Home address
Schools in Jackson County School District
GreatSchools’ Summary Rating calculation is based on 4 of the school’s themed ratings, including test scores, student/academic progress, college readiness, and equity. This information should only be used as a reference. Jome is not affiliated with GreatSchools and does not endorse or guarantee this information. Please reach out to schools directly to verify all information and enrollment eligibility. Data provided by GreatSchools.org © 2025
Places of interest
Getting around
Air quality
Noise level
A Soundscore™ rating is a number between 50 (very loud) and 100 (very quiet) that tells you how loud a location is due to environmental noise.
Natural hazards risk
Climate hazards can impact homes and communities, with risks varying by location. These scores reflect the potential impact of natural disasters and climate-related risks on Jackson County
Provided by FEMA

Considering this home?
Our expert will guide your tour, in-person or virtual
Need more information?
Text or call (888) 486-2818
Financials
Estimated monthly payment
Similar homes nearby
Recently added communities in this area
Nearby communities in Hoschton
New homes in nearby cities
More New Homes in Hoschton, GA
Compass, MLS 7648910
Some IDX listings have been excluded from this IDX display. Listings identified with the FMLS IDX logo come from FMLS and are held by brokerage firms other than the owner of this website. The listing brokerage is identified in any listing details. Information is deemed reliable but is not guaranteed. If you believe any FMLS listing contains material that infringes your copyrighted work please click here to review our DMCA policy and learn how to submit a takedown request. © 2025 First Multiple Listing Service, Inc.
Read moreLast checked Dec 5, 7:40 am
- Home
- New homes
- Georgia
- Atlanta Metropolitan Area
- Jackson County
- Hoschton
- Twin Lakes
- 165 Kerr Dr, Hoschton, GA 30548







































