









Book your tour. Save an average of $18,473. We'll handle the rest.
We collect exclusive builder offers, book your tours, and support you from start to housewarming.
- Confirmed tours
- Get matched & compare top deals
- Expert help, no pressure
- No added fees
Estimated value based on Jome data, T&C apply


















Why tour with Jome?
- No pressure toursTour at your own pace with no sales pressure
- Expert guidanceGet insights from our home buying experts
- Exclusive accessSee homes and deals not available elsewhere
Jome is featured in
- Single-Family
- Ready by September 2026
- $277.03/sqft
- $95/monthly HOA
Home description
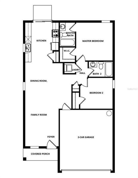
Welcome to the Alafia model in the sought-after Tula Parc community—an inviting 2-bedroom, 2-bathroom home designed for easy living with modern finishes and added privacy with no rear neighbors.
Inside, you’ll find a bright, open layout that seamlessly connects the living, dining, and kitchen areas, creating a comfortable space for both everyday life and entertaining. The kitchen features granite countertops, stainless steel Whirlpool® appliances, and 36” upper wood cabinets with crown molding, offering both style and functionality.
This home is equipped with energy-efficient features including double-pane Low-E windows, LED flush-mount Energy Star® lighting, and a programmable thermostat, helping you stay comfortable while keeping energy costs in check.
The private master suite is a relaxing retreat, complete with a soaking tub, dual shower, spacious vanity, and a large walk-in closet. Additional conveniences include a separate laundry room, a hallway linen closet, and a two-car garage.
Enjoy the outdoors with a covered front porch and professionally maintained front yard landscaping, while the backyard offers added peace with no rear neighbors.
Residents of Tula Parc enjoy access to a community gazebo and playground, and are just minutes from Little Lake Harris and the Chain of Lakes, perfect for boating, fishing, and kayaking. With nearby parks and easy access to Orlando’s shopping, dining, and attractions, this home offers both tranquility and convenience.
The Alafia model is the perfect blend of comfort, privacy, and location—schedule your showing today!
LGI REALTY- FLORIDA, LLC, MLS TB8490942
May also be listed on the LGI Homes website
Information last verified by Jome: Today at 9:45 AM (May 16, 2026)
Home highlights
Natural spring park near Orlando with clear swimming waters, canoeing, and trails amid lush Central Florida forest.
Book your tour. Save an average of $18,473. We'll handle the rest.
We collect exclusive builder offers, book your tours, and support you from start to housewarming.
- Confirmed tours
- Get matched & compare top deals
- Expert help, no pressure
- No added fees
Estimated value based on Jome data, T&C apply
Home details
- Property status:
- Under construction
- Lot size (acres):
- 0.11
- Size:
- 1,032 sqft
- Stories:
- 1
- Beds:
- 2
- Baths:
- 2
- Garage spaces:
- 2
- Facing direction:
- East
Construction details
- Builder Name:
- LGI Homes
- Completion Date:
- September, 2026
- Year Built:
- 2026
- Roof:
- Shingle Roofing
Home features & finishes
- Appliances:
- Exhaust FanIce Maker
- Construction Materials:
- StuccoBlock
- Cooling:
- Ceiling Fan(s)Central Air
- Flooring:
- Vinyl FlooringCarpet Flooring
- Foundation Details:
- Slab
- Garage/Parking:
- Door OpenerGarageAttached Garage
- Home amenities:
- InternetENERGY STAR Certified
- Interior Features:
- Window TreatmentsWalk-In ClosetBlindsSliding Doors
- Kitchen:
- DishwasherMicrowave OvenRefrigeratorDisposalKitchen Range
- Laundry facilities:
- Laundry Facilities In KitchenDryerWasherUtility/Laundry Room
- Lighting:
- Exterior LightingStreet Lights
- Pets:
- Pets Allowed
- Property amenities:
- SidewalkIrrigationPorch
- Rooms:
- Primary Bedroom On MainFamily RoomOpen Concept FloorplanPrimary Bedroom Downstairs
- Security system:
- Smoke Detector

Get a consultation with our New Homes Expert
- See how your home builds wealth
- Plan your home-buying roadmap
- Discover hidden gems
Utility information
- Heating:
- Electric Heating, Heat Pump, Thermostat, Water Heater
- Sewer:
- Public Sewer
- Utilities:
- Electricity Available, Underground Utilities, Internet-Fiber, Phone Available, Cable Available, Water Available
- Water source:
- Public

Community details
Tula Parc
by LGI Homes, Astatula, FL
- 25 homes
- 8 plans
- 1,032 - 2,461 sqft
View Tula Parc details
Community amenities
- Playground
- Sidewalks Available
More homes in Tula Parc
- Home at address 13319 Tula Lp, Astatula, FL 34705

Home
$280,900
- 2 bd
- 2 ba
- 1,032 sqft
13319 Tula Lp, Astatula, FL 34705
- Home at address 13316 Tula Lp, Astatula, FL 34705

Home
$280,900
- 2 bd
- 2 ba
- 1,032 sqft
13316 Tula Lp, Astatula, FL 34705
- Home at address 13328 Tula Lp, Astatula, FL 34705

Home
$285,900
- 2 bd
- 2 ba
- 1,032 sqft
13328 Tula Lp, Astatula, FL 34705
- Home at address 13303 Tula Lp, Astatula, FL 34705

Home
$303,900
- 3 bd
- 2 ba
- 1,206 sqft
13303 Tula Lp, Astatula, FL 34705
- Home at address 13332 Tula Lp, Astatula, FL 34705

Home
$303,900
- 3 bd
- 2 ba
- 1,206 sqft
13332 Tula Lp, Astatula, FL 34705
- Home at address 13315 Tula Lp, Astatula, FL 34705

Home
$303,900
- 3 bd
- 2 ba
- 1,206 sqft
13315 Tula Lp, Astatula, FL 34705
Floor plans in Tula Parc
About the builder - LGI Homes

- 117communities on Jome
- 1,171homes on Jome
Neighborhood
Home address
Schools in Lake County School District
- Grades PK-03Privateadventure christian academy3.4 mi3501 n eichelberger rdna
GreatSchools’ Summary Rating calculation is based on 4 of the school’s themed ratings, including test scores, student/academic progress, college readiness, and equity. This information should only be used as a reference. Jome is not affiliated with GreatSchools and does not endorse or guarantee this information. Please reach out to schools directly to verify all information and enrollment eligibility. Data provided by GreatSchools.org © 2025
Places of interest
Getting around
Noise level
A Soundscore™ rating is a number between 50 (very loud) and 100 (very quiet) that tells you how loud a location is due to environmental noise.

Considering this home?
Our expert will guide your tour, in-person or virtual
Need more information?
Text or call (888) 545-5198
Financials
Estimated monthly payment
Let us help you find your dream home
How many bedrooms are you looking for?
Similar homes nearby
Recently added communities in this area
Nearby communities in Astatula
New homes in nearby cities
More New Homes in Astatula, FL
LGI REALTY- FLORIDA, LLC, MLS TB8490942
Based on information submitted to the MLS GRID as of 10/21/2024 2:31 PM CDT. All data is obtained from various sources and may not have been verified by broker or MLS GRID. Supplied Open House Information is subject to change without notice. All information should be independently reviewed and verified for accuracy. Properties may or may not be listed by the office/agent presenting the information. Some IDX listings have been excluded from this website. Properties displayed may be listed or sold by various participants in the MLS. IDX information is provided exclusively for personal, non-commercial use, and may not be used for any purpose other than to identify prospective properties consumers may be interested in purchasing. Information is deemed reliable but not guaranteed. Use of the MLS GRID Data may be subject to an end user license agreement prescribed by the Member Participant’s applicable MLS if any and as amended from time to time. The Digital Millennium Copyright Act of 1998, 17 U.S.C. § 512 (the “DMCA”) provides recourse for copyright owners who believe that material appearing on the Internet infringes their rights under U.S. copyright law. If you believe in good faith that any content or material made available in connection with our website or services infringes your copyright, you (or your agent) may send us a notice requesting that the content or material be removed, or access to it blocked. Notices must be sent in writing by email to DMCAnotice@MLSGrid.com. The DMCA requires that your notice of alleged copyright infringement include the following information: (1) description of the copyrighted work that is the subject of claimed infringement; (2) description of the alleged infringing content and information sufficient to permit us to locate the content; (3) contact information for you, including your address, telephone number and email address; (4) a statement by you that you have a good faith belief that the content in the manner complained of is not authorized by the copyright owner, or its agent, or by the operation of any law; (5) a statement by you, signed under penalty of perjury, that the information in the notification is accurate and that you have the authority to enforce the copyrights that are claimed to be infringed; and (6) a physical or electronic signature of the copyright owner or a person authorized to act on the copyright owner’s behalf. Failure to include all of the above information may result in the delay of the processing of your complaint. Listing Information presented by local MLS brokerage: NewHomesMate LLC, DBA Jome (888) 545-5198
Read moreLast checked May 16, 3:10 pm
- Jome
- New homes search
- Florida
- Greater Orlando Area
- Lake County
- Astatula
- Tula Parc
- 13336 Tula Lp, Astatula, FL 34705
































