









Book your tour. Save an average of $18,473. We'll handle the rest.
We collect exclusive builder offers, book your tours, and support you from start to housewarming.
- Confirmed tours
- Get matched & compare top deals
- Expert help, no pressure
- No added fees
Estimated value based on Jome data, T&C apply










































- 4 bd
- 3.5 ba
- 2,387 sqft
10707 Torchwood Sea Wy, San Antonio, FL 33576
Why tour with Jome?
- No pressure toursTour at your own pace with no sales pressure
- Expert guidanceGet insights from our home buying experts
- Exclusive accessSee homes and deals not available elsewhere
Jome is featured in
- Single-Family
- Ready by December 2026
- $287.14/sqft
- $248/quarterly HOA
Home description
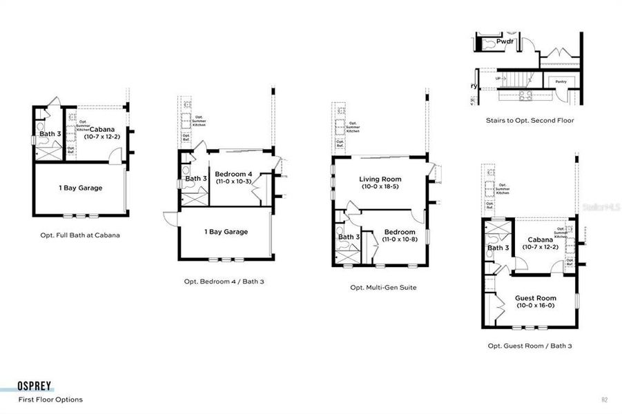
Step into the stunning Coastal Elevation Osprey, a thoughtfully crafted single-story home that effortlessly blends elegance, comfort, and versatility. This beautifully designed residence features 4 spacious bedrooms, an airy open-concept layout, and the rare convenience of two separate garages — a 2-car attached garage and a private detached 1-car garage. At the heart of the home, you’ll find an inviting gourmet kitchen complete with a generous walk-in pantry, an oversized island, and stylish finishes — perfect for both everyday living and entertaining. The kitchen flows seamlessly into the sun-filled dining area and welcoming family room**, creating a warm and cohesive living space. Retreat to the luxurious private primary suite, where comfort meets sophistication. Enjoy a dual-sink vanity, an expansive walk-in closet, and a spa-inspired wet room featuring a gorgeous soaking tub set within a sleek tiled shower enclosure. Two well-appointed secondary bedrooms share a convenient Jack and Jill bathroom, offering both privacy and functionality. A thoughtfully placed powder room and a well-equipped laundry room add to the home’s everyday ease. One of the home’s most charming features is the picturesque courtyard that is a beautiful focal point of the family room from the large sliding glass door. The courtyard creates a serene outdoor living space with a covered walkway leading to a private fourth bedroom and full bath. Connected to the detached garage, this versatile space is ideal for guests, a home office, or a quiet retreat. This home is perfectly designed to fit your lifestyle beautifully. *Photos may not be of actual home. Photos may be of similar home/floorplan or model home if home is under construction.
DRB GROUP REALTY, LLC, MLS TB8488446
May also be listed on the DRB Homes website
Information last verified by Jome: Today at 9:11 PM (May 5, 2026)
Home highlights
Historic Florida park with river rapids, hiking, and camping under towering oaks near Tampa’s northeast suburbs.
Book your tour. Save an average of $18,473. We'll handle the rest.
We collect exclusive builder offers, book your tours, and support you from start to housewarming.
- Confirmed tours
- Get matched & compare top deals
- Expert help, no pressure
- No added fees
Estimated value based on Jome data, T&C apply
Home details
- Property status:
- Under construction
- Lot size (acres):
- 0.18
- Size:
- 2,387 sqft
- Stories:
- 1
- Beds:
- 4
- Baths:
- 3
- Half baths:
- 1
- Garage spaces:
- 3
- Facing direction:
- Southeast
Construction details
- Builder Name:
- DRB Homes
- Completion Date:
- December, 2026
- Year Built:
- 2026
- Roof:
- Shingle Roofing
Home features & finishes
- Appliances:
- Sprinkler System
- Construction Materials:
- StuccoBlockConcrete
- Cooling:
- Central Air
- Flooring:
- Carpet FlooringTile Flooring
- Foundation Details:
- Slab
- Garage/Parking:
- Door OpenerGarageRear Entry Garage/ParkingAttached Garage
- Home amenities:
- Internet
- Interior Features:
- Ceiling-HighWalk-In ClosetSliding Doors
- Kitchen:
- DishwasherMicrowave OvenOvenDisposalBuilt-In OvenCooktop
- Laundry facilities:
- DryerWasherUtility/Laundry Room
- Lighting:
- Exterior LightingLighting
- Pets:
- Pets Allowed
- Property amenities:
- SidewalkCourtyardLandscapingCabinetsLanaiIrrigationPatioPorch
- Rooms:
- Primary Bedroom On MainKitchenDining RoomFamily RoomLiving RoomOpen Concept FloorplanPrimary Bedroom Downstairs
- Security system:
- Fire Alarm SystemSmoke Detector

Get a consultation with our New Homes Expert
- See how your home builds wealth
- Plan your home-buying roadmap
- Discover hidden gems
Utility information
- Heating:
- Electric Heating, Heat Pump, Thermostat, Water Heater, Central Heating
- Sewer:
- Public Sewer
- Utilities:
- Electricity Available, Underground Utilities, Phone Available, Cable Available, Water Available
- Water source:
- Public

Community details
Eagles Cove at Mirada at Mirada
by DRB Homes, San Antonio, FL
- 3 homes
- 6 plans
- 2,148 - 4,194 sqft
View Eagles Cove at Mirada details
Community amenities
- Woods View
- Dog Park
- Playground
- Community Pool
- Sidewalks Available
More homes in Eagles Cove at Mirada
- Home at address 10757 Torchwood Sea Wy, San Antonio, FL 33576

Osprey
$670,068
- 4 bd
- 3.5 ba
- 2,387 sqft
10757 Torchwood Sea Wy, San Antonio, FL 33576
- Home at address 32298 Wetland Bird Vw, San Antonio, FL 33576

Osprey
$944,990
- 5 bd
- 4.5 ba
- 3,272 sqft
32298 Wetland Bird Vw, San Antonio, FL 33576
Floor plans in Eagles Cove at Mirada
About the builder - DRB Homes
Neighborhood
Home address
- City:
- San Antonio
- County:
- Pasco
- Zip Code:
- 33576
Schools in Pasco County School District
- Grades 09-12Publickirkland ranch academy of innovation1.7 mi32555 innovation drivena
- Grades M-MPublickirkland ranch k-81.7 mi33137 innovation drivena
GreatSchools’ Summary Rating calculation is based on 4 of the school’s themed ratings, including test scores, student/academic progress, college readiness, and equity. This information should only be used as a reference. Jome is not affiliated with GreatSchools and does not endorse or guarantee this information. Please reach out to schools directly to verify all information and enrollment eligibility. Data provided by GreatSchools.org © 2025
Places of interest
Getting around
Air quality
Noise level
A Soundscore™ rating is a number between 50 (very loud) and 100 (very quiet) that tells you how loud a location is due to environmental noise.

Considering this home?
Our expert will guide your tour, in-person or virtual
Need more information?
Text or call (888) 545-5198
Financials
Estimated monthly payment
Let us help you find your dream home
How many bedrooms are you looking for?
Similar homes nearby
Recently added communities in this area
Nearby communities in San Antonio
New homes in nearby cities
More New Homes in San Antonio, FL
DRB GROUP REALTY, LLC, MLS TB8488446
Based on information submitted to the MLS GRID as of 10/21/2024 2:31 PM CDT. All data is obtained from various sources and may not have been verified by broker or MLS GRID. Supplied Open House Information is subject to change without notice. All information should be independently reviewed and verified for accuracy. Properties may or may not be listed by the office/agent presenting the information. Some IDX listings have been excluded from this website. Properties displayed may be listed or sold by various participants in the MLS. IDX information is provided exclusively for personal, non-commercial use, and may not be used for any purpose other than to identify prospective properties consumers may be interested in purchasing. Information is deemed reliable but not guaranteed. Use of the MLS GRID Data may be subject to an end user license agreement prescribed by the Member Participant’s applicable MLS if any and as amended from time to time. The Digital Millennium Copyright Act of 1998, 17 U.S.C. § 512 (the “DMCA”) provides recourse for copyright owners who believe that material appearing on the Internet infringes their rights under U.S. copyright law. If you believe in good faith that any content or material made available in connection with our website or services infringes your copyright, you (or your agent) may send us a notice requesting that the content or material be removed, or access to it blocked. Notices must be sent in writing by email to DMCAnotice@MLSGrid.com. The DMCA requires that your notice of alleged copyright infringement include the following information: (1) description of the copyrighted work that is the subject of claimed infringement; (2) description of the alleged infringing content and information sufficient to permit us to locate the content; (3) contact information for you, including your address, telephone number and email address; (4) a statement by you that you have a good faith belief that the content in the manner complained of is not authorized by the copyright owner, or its agent, or by the operation of any law; (5) a statement by you, signed under penalty of perjury, that the information in the notification is accurate and that you have the authority to enforce the copyrights that are claimed to be infringed; and (6) a physical or electronic signature of the copyright owner or a person authorized to act on the copyright owner’s behalf. Failure to include all of the above information may result in the delay of the processing of your complaint. Listing Information presented by local MLS brokerage: NewHomesMate LLC, DBA Jome (888) 545-5198
Read moreLast checked May 5, 9:10 pm
- Jome
- New homes search
- Florida
- Tampa Bay Area
- Pasco County
- San Antonio
- Eagles Cove at Mirada
- 10707 Torchwood Sea Wy, San Antonio, FL 33576






























