








Book your tour. Save an average of $18,473. We'll handle the rest.
We collect exclusive builder offers, book your tours, and support you from start to housewarming.
- Confirmed tours
- Get matched & compare top deals
- Expert help, no pressure
- No added fees
Estimated value based on Jome data, T&C apply












- 5 bd
- 3.5 ba
- 3,120 sqft
819 38Th Ave Ne, St. Petersburg, FL 33701
Why tour with Jome?
- No pressure toursTour at your own pace with no sales pressure
- Expert guidanceGet insights from our home buying experts
- Exclusive accessSee homes and deals not available elsewhere
Jome is featured in
- Single-Family
- $625/sqft
- South facing
- 0.26-acre lot
Home description
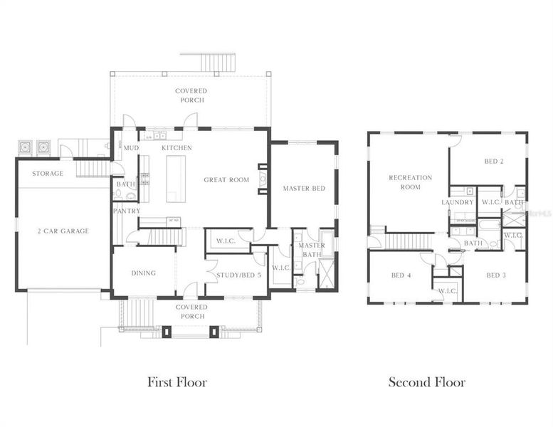
Est. Completion: July 2026. This is your opportunity to step into luxury with a home by Canopy Builders—St. Petersburg’s most trusted name in luxury home construction. This brand-new custom build offers 5 Bedrooms with the primary bedroom located on the FIRST floor + Dining Room + Recreation Room, 3.5 Baths, and an oversized 2-car garage with space for storage for a total of 3,120 sq ft. Set on an extra-large 90' × 127' lot, this home offers a spacious back porch with room for both dining and living, plus a generously sized backyard perfect for relaxing, entertaining, or a future pool. Located in the Northeast Park neighborhood, experience the convenience of minutes from downtown St. Petersburg and walking distance to parks, trails, and Coffee Pot Bayou. Enjoy morning coffee on the covered front porch before stepping inside, where thoughtful design meets elevated finishes. To the left of the entry is a designated dining room featuring classic wainscoting with a butlers pantry that seamlessly connects the dining room and kitchen, adorned with custom cabinetry, decorative open shelving, and designer lighting – as well as a walk in pantry to store all the essential kitchen items. To the right, a study that easily doubles as a guest bedroom offers flexibility. Continue into the great room and kitchen, where the heart of the home truly shines. The kitchen features quartz countertops with a full-height slab backsplash, cream cabinetry, and a contrasting white oak island. Panel-ready appliances — including the refrigerator, dishwasher, and wine fridge — complete the seamless, high-end look, paired with a custom Aga range with decorative brass accents. Just off the kitchen is a mudroom with dark sage built-in cabinetry, accented by gold hardware and pendant lighting. Nearby, the downstairs powder bath impresses with a floating custom vanity, mercury glass inset mirror, dark sage trim and paint, and gold finishes throughout. Tucked off the great room is the downstairs primary suite, complete with two spacious walk-in closets. The spa-like primary bath features white oak cabinetry, a marble shower, marble wall and floor tile, and gold hardware and lighting for a timeless, luxurious feel. Upstairs, a versatile recreation room offers endless possibilities. The laundry room continues the home’s cohesive design with cream cabinetry, tongue-and-groove detailing, and gold hardware and lighting. Three additional bedrooms are also located upstairs. Bedroom two’s bathroom showcases marble countertops, floors, and shower tile, paired with a white oak vanity and gold finishes. The bathroom connected to bedroom three features dark sage cabinetry, marble countertops and flooring, and coordinating gold hardware and lighting. Several key features have already been planned, including Hardie Board plank siding, a tankless gas water heater, impact-resistant windows, and engineered hardwood flooring throughout. Dual digital thermostats allow independent climate control on both levels. Additional luxury elements include 10’ ceilings on both floors, as well as 8’ interior doors. Canopy’s signature gas sconce adds an elegant touch to the front porch. The expansive backyard offers ample space for lounging and entertaining. Enjoy a 20-min drive to St. Pete Beach and Tampa. Don’t miss the opportunity to make this breathtaking home yours today! Schedule a private showing to learn more about the custom finishes and selections — and how this home can be tailored to you.
COMPASS FLORIDA LLC, MLS TB8456626
May also be listed on the Canopy Builders website
Information last verified by Jome: Today at 9:48 AM (April 2, 2026)
Book your tour. Save an average of $18,473. We'll handle the rest.
We collect exclusive builder offers, book your tours, and support you from start to housewarming.
- Confirmed tours
- Get matched & compare top deals
- Expert help, no pressure
- No added fees
Estimated value based on Jome data, T&C apply
Home details
- Property status:
- Pending/Under contract
- Lot size (acres):
- 0.26
- Size:
- 3,120 sqft
- Stories:
- 2
- Beds:
- 5
- Baths:
- 3
- Half baths:
- 1
- Garage spaces:
- 2
- Facing direction:
- South
Construction details
- Builder Name:
- Canopy Builders
- Completion Date:
- July, 2026
- Year Built:
- 2026
- Roof:
- Roof Gutter, Shingle Roofing
Home features & finishes
- Appliances:
- Exhaust Fan
- Construction Materials:
- StuccoBlock
- Cooling:
- Central Air
- Flooring:
- Tile FlooringHardwood Flooring
- Foundation Details:
- Slab
- Garage/Parking:
- GarageAttached Garage
- Interior Features:
- Ceiling-HighWalk-In ClosetCrown Molding
- Kitchen:
- Wine RefrigeratorDishwasherMicrowave OvenRefrigeratorDisposalKitchen Range
- Laundry facilities:
- Laundry Facilities On Upper LevelUtility/Laundry Room
- Lighting:
- Exterior Lighting
- Property amenities:
- SidewalkCabinetsIrrigationFireplace
- Rooms:
- KitchenFamily RoomLiving RoomOpen Concept Floorplan

Get a consultation with our New Homes Expert
- See how your home builds wealth
- Plan your home-buying roadmap
- Discover hidden gems
Utility information
- Heating:
- Thermostat, Water Heater, Central Heating, Tankless water heater
About the builder - Canopy Builders
Neighborhood
Home address
- City:
- St. Petersburg
- County:
- Pinellas
- Zip Code:
- 33701
Schools in Pinellas County School District
GreatSchools’ Summary Rating calculation is based on 4 of the school’s themed ratings, including test scores, student/academic progress, college readiness, and equity. This information should only be used as a reference. Jome is not affiliated with GreatSchools and does not endorse or guarantee this information. Please reach out to schools directly to verify all information and enrollment eligibility. Data provided by GreatSchools.org © 2025
Places of interest
Getting around
2 nearby routes: 2 bus, 0 rail, 0 otherAir quality
Noise level
A Soundscore™ rating is a number between 50 (very loud) and 100 (very quiet) that tells you how loud a location is due to environmental noise.
Natural hazards risk
Provided by FEMA

Considering this home?
Our expert will guide your tour, in-person or virtual
Need more information?
Text or call (888) 545-5198
Financials
Estimated monthly payment
Let us help you find your dream home
How many bedrooms are you looking for?
Similar homes nearby
Recently added communities in this area
Nearby communities in St. Petersburg
New homes in nearby cities
More New Homes in St. Petersburg, FL
COMPASS FLORIDA LLC, MLS TB8456626
Based on information submitted to the MLS GRID as of 10/21/2024 2:31 PM CDT. All data is obtained from various sources and may not have been verified by broker or MLS GRID. Supplied Open House Information is subject to change without notice. All information should be independently reviewed and verified for accuracy. Properties may or may not be listed by the office/agent presenting the information. Some IDX listings have been excluded from this website. Properties displayed may be listed or sold by various participants in the MLS. IDX information is provided exclusively for personal, non-commercial use, and may not be used for any purpose other than to identify prospective properties consumers may be interested in purchasing. Information is deemed reliable but not guaranteed. Use of the MLS GRID Data may be subject to an end user license agreement prescribed by the Member Participant’s applicable MLS if any and as amended from time to time. The Digital Millennium Copyright Act of 1998, 17 U.S.C. § 512 (the “DMCA”) provides recourse for copyright owners who believe that material appearing on the Internet infringes their rights under U.S. copyright law. If you believe in good faith that any content or material made available in connection with our website or services infringes your copyright, you (or your agent) may send us a notice requesting that the content or material be removed, or access to it blocked. Notices must be sent in writing by email to DMCAnotice@MLSGrid.com. The DMCA requires that your notice of alleged copyright infringement include the following information: (1) description of the copyrighted work that is the subject of claimed infringement; (2) description of the alleged infringing content and information sufficient to permit us to locate the content; (3) contact information for you, including your address, telephone number and email address; (4) a statement by you that you have a good faith belief that the content in the manner complained of is not authorized by the copyright owner, or its agent, or by the operation of any law; (5) a statement by you, signed under penalty of perjury, that the information in the notification is accurate and that you have the authority to enforce the copyrights that are claimed to be infringed; and (6) a physical or electronic signature of the copyright owner or a person authorized to act on the copyright owner’s behalf. Failure to include all of the above information may result in the delay of the processing of your complaint. Listing Information presented by local MLS brokerage: NewHomesMate LLC, DBA Jome (888) 545-5198
Read moreLast checked Apr 2, 3:10 pm
- Jome
- New homes search
- Florida
- Tampa Bay Area
- Pinellas County
- St. Petersburg
- 819 38Th Ave Ne, St. Petersburg, FL 33701



























