














Book your tour. Save an average of $18,473. We'll handle the rest.
- Confirmed tours
- Get matched & compare top deals
- Expert help, no pressure
- No added fees
Estimated value based on Jome data, T&C apply


























- 4 bd
- 4 ba
- 3,108 sqft
1393 Zesty Citrus Ln, Minneola, FL 34715
Why tour with Jome?
- No pressure toursTour at your own pace with no sales pressure
- Expert guidanceGet insights from our home buying experts
- Exclusive accessSee homes and deals not available elsewhere
Jome is featured in
- Single-Family
- Quick move-in
- $289.25/sqft
- $384/monthly HOA
Home description
Del Webb at Minneola is a luxurious guard-gated 55+ active adult community offering new construction single-family homes in an unrivaled location on one of the highest peaks in Central Florida. Del Webb Minneola will offer an abundance of resort-style amenities with social events and activities planned by a full-time Lifestyle Director - centered in the stunning clubhouse which offers views of Sugarloaf Mountain. Planned community amenities include a zero-entry resort-style pool, in-ground heated spa, sports courts, on-site bar & grille with indoor and outdoor seating, a fitness center and walking/biking trails. Monthly HOA includes 1 GB high-speed internet, 75 streaming channels and your home's yard maintenance. Visit today to learn more and see for yourself why Del Webb Minneola is the absolute best place to call home!
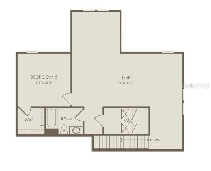
Experience the perfect blend of luxury and convenience with this brand-new, ready-to-move-in Mystique Grand home by Pulte. This two-story home offers a thoughtfully designed layout featuring 4 bedrooms, an enclosed flex room, 4 bathrooms, and a 2-car garage. The owner's suite is conveniently located on the first floor, offering a private retreat with a spa-inspired en suite bathroom. The heart of the home is the open-concept kitchen, café, and gathering room, where natural light floods the space, creating a welcoming and airy atmosphere. Tall ceilings, expansive windows, and a pocket sliding glass door leading to the screened-in extended covered lanai and outdoor kitchen seamlessly blend the indoor and outdoor living areas, ideal for effortless entertaining. The gourmet kitchen is a true highlight, featuring built-in Whirlpool appliances – including a natural gas cooktop, 42” soft-close cabinetry with clear glass uppers, quartz countertops, and a decorative tile backsplash. A spacious walk-in pantry, upgraded faucet, and stainless-steel single-bowl sink completes this culinary space, which is both stylish and functional. The owner's suite is designed for relaxation, with an en suite bathroom that includes a frameless glass enclosed shower, garden tub, dual vanity with quartz countertops, a linen closet, and an enclosed toilet for added privacy. On the first floor, you’ll also find 2 spare bedrooms and 2 bathrooms (one of which is an en suite) and an enclosed flex room that can easily serve as an office, hobby room, or guest retreat. Upstairs, the expansive loft provides additional space for leisure, and the third bedroom features its own walk-in closet and private bathroom. Throughout the home, designer-curated finishes enhance the sense of luxury, including comfort height toilets, brushed nickel hardware and plumbing fixtures, garage floor epoxy finish, crown molding in the main living areas, and under cabinet lighting in the kitchen. The entire home is outfitted with beautiful tile, with the exception of the loft, stairs, and upstairs bedroom, which are complemented by plush, stain-resistant Shaw brand carpet. This home is also equipped with the latest in-home technology, including a smart thermostat, video doorbell, LED downlights, digital IP camera pre-wire, electric car plug-in, retractable hose central vacuum package, surround sound speakers, and garage lighting package. Don’t miss the opportunity to own this beautifully designed home with unparalleled functionality and elegance. Schedule your tour today!
PULTE REALTY OF NORTH FLORIDA LLC, MLS O6362906
May also be listed on the Del Webb website
Information last verified by Jome: Today at 10:27 AM (December 6, 2025)
Home highlights
Natural spring park near Orlando with clear swimming waters, canoeing, and trails amid lush Central Florida forest.
Book your tour. Save an average of $18,473. We'll handle the rest.
We collect exclusive builder offers, book your tours, and support you from start to housewarming.
- Confirmed tours
- Get matched & compare top deals
- Expert help, no pressure
- No added fees
Estimated value based on Jome data, T&C apply
Home details
- Property status:
- Move-in ready
- Lot size (acres):
- 0.14
- Size:
- 3,108 sqft
- Stories:
- 2
- Beds:
- 4
- Baths:
- 4
- Garage spaces:
- 2
- Facing direction:
- Northwest
Construction details
- Builder Name:
- Del Webb
- Completion Date:
- December, 2025
- Year Built:
- 2025
- Roof:
- Shingle Roofing
Home features & finishes
- Appliances:
- Sprinkler System
- Construction Materials:
- StuccoWood FrameBlock
- Cooling:
- Central Air
- Flooring:
- Carpet FlooringTile Flooring
- Foundation Details:
- Slab
- Garage/Parking:
- Door OpenerGarageAttached Garage
- Home amenities:
- InternetGreen Construction
- Interior Features:
- Walk-In ClosetFoyerPantrySliding DoorsLoftGarden Tub
- Kitchen:
- DishwasherMicrowave OvenOvenRefrigeratorDisposalBuilt-In OvenCook Top
- Laundry facilities:
- Utility/Laundry Room
- Lighting:
- Exterior LightingLighting
- Pets:
- Pets AllowedPets Allowed with Weight Restrictions
- Property amenities:
- SidewalkLandscapingBathtub in primaryLanaiPatioPorch
- Rooms:
- Flex RoomPrimary Bedroom On MainKitchenDen RoomOffice/StudyFamily RoomBreakfast AreaOpen Concept FloorplanPrimary Bedroom Downstairs
Utility information
- Heating:
- Electric Heating, Heat Pump, Thermostat, Water Heater, Central Heating, Tankless water heater
- Utilities:
- Electricity Available, Natural Gas Available, Underground Utilities, Phone Available, HVAC, Water Available

Community details
Del Webb Minneola at Hills of Minneola
by Del Webb, Minneola, FL
- 10 homes
- 15 plans
- 1,405 - 3,453 sqft
View Del Webb Minneola details
Community amenities
- Woods View
- Fitness Center/Exercise Area
- Club House
- Tennis Courts
- Gated Community
- Community Pool
- Security Guard/Safety Office
- Sidewalks Available
More homes in Del Webb Minneola
Floor plans in Del Webb Minneola
About the builder - Del Webb
Neighborhood
Home address
Schools in Lake County School District
- Grades PK-12Privatemontverde academy3.8 mi17235 7th stna
GreatSchools’ Summary Rating calculation is based on 4 of the school’s themed ratings, including test scores, student/academic progress, college readiness, and equity. This information should only be used as a reference. Jome is not affiliated with GreatSchools and does not endorse or guarantee this information. Please reach out to schools directly to verify all information and enrollment eligibility. Data provided by GreatSchools.org © 2025
Places of interest
Getting around
Natural hazards risk
Climate hazards can impact homes and communities, with risks varying by location. These scores reflect the potential impact of natural disasters and climate-related risks on Lake County
Provided by FEMA

Considering this home?
Our expert will guide your tour, in-person or virtual
Need more information?
Text or call (888) 486-2818
Financials
Estimated monthly payment
Similar homes nearby
Recently added communities in this area
Nearby communities in Minneola
New homes in nearby cities
More New Homes in Minneola, FL
PULTE REALTY OF NORTH FLORIDA LLC, MLS O6362906
Based on information submitted to the MLS GRID as of 10/21/2024 2:31 PM CDT. All data is obtained from various sources and may not have been verified by broker or MLS GRID. Supplied Open House Information is subject to change without notice. All information should be independently reviewed and verified for accuracy. Properties may or may not be listed by the office/agent presenting the information. Some IDX listings have been excluded from this website. Properties displayed may be listed or sold by various participants in the MLS. IDX information is provided exclusively for personal, non-commercial use, and may not be used for any purpose other than to identify prospective properties consumers may be interested in purchasing. Information is deemed reliable but not guaranteed. Use of the MLS GRID Data may be subject to an end user license agreement prescribed by the Member Participant’s applicable MLS if any and as amended from time to time. The Digital Millennium Copyright Act of 1998, 17 U.S.C. § 512 (the “DMCA”) provides recourse for copyright owners who believe that material appearing on the Internet infringes their rights under U.S. copyright law. If you believe in good faith that any content or material made available in connection with our website or services infringes your copyright, you (or your agent) may send us a notice requesting that the content or material be removed, or access to it blocked. Notices must be sent in writing by email to DMCAnotice@MLSGrid.com. The DMCA requires that your notice of alleged copyright infringement include the following information: (1) description of the copyrighted work that is the subject of claimed infringement; (2) description of the alleged infringing content and information sufficient to permit us to locate the content; (3) contact information for you, including your address, telephone number and email address; (4) a statement by you that you have a good faith belief that the content in the manner complained of is not authorized by the copyright owner, or its agent, or by the operation of any law; (5) a statement by you, signed under penalty of perjury, that the information in the notification is accurate and that you have the authority to enforce the copyrights that are claimed to be infringed; and (6) a physical or electronic signature of the copyright owner or a person authorized to act on the copyright owner’s behalf. Failure to include all of the above information may result in the delay of the processing of your complaint. Listing Information presented by local MLS brokerage: NewHomesMate LLC, DBA Jome (888) 486-2818
Read moreLast checked Dec 6, 3:10 pm
- Home
- New homes
- Florida
- Greater Orlando Area
- Lake County
- Minneola
- Del Webb Minneola
- 1393 Zesty Citrus Ln, Minneola, FL 34715

































