








Book your tour. Save an average of $18,473. We'll handle the rest.
We collect exclusive builder offers, book your tours, and support you from start to housewarming.
- Confirmed tours
- Get matched & compare top deals
- Expert help, no pressure
- No added fees
Estimated value based on Jome data, T&C apply











Why tour with Jome?
- No pressure toursTour at your own pace with no sales pressure
- Expert guidanceGet insights from our home buying experts
- Exclusive accessSee homes and deals not available elsewhere
Jome is featured in
- Single-Family
- Ready by October 2026
- $167.65/sqft
- $110/monthly HOA
Home description
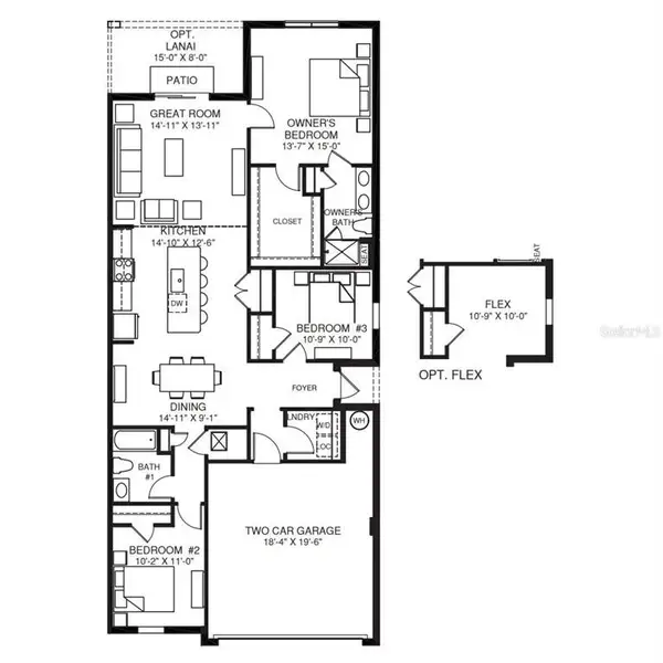
Pre-Permitted home, no rear neighbors. Welcome to Hammock Oaks Villas in Lady Lake, Florida! Enjoy included exterior maintenance so you can spend your days taking in the Florida sun at the pool and cabana. Take a trip to Lake Griffin State park only 15 minutes away where you can hike, kayak, and fish! Our single-story, open-concept villas are 1,509 square feet and feature three bedrooms, two bathrooms, a two-car garage, and a backyard space, perfect for hosting friends and family. Design your home with ease with your choice of our perfectly coordinated designer interior finishes. The Winterhaven floor plan gives you all the style and comfort you could want all on one level. Your convenient two-car garage opens to the laundry room. Step into the inviting foyer, which leads to either a spacious bedroom or into the wide-open dining area and adjoining gourmet kitchen. A large center island overlooks the welcoming great room and optional lanai. An additional bedroom and full bath offers family and guests a comfortable place to stay. Your luxurious owner’s suite includes a sprawling walk-in closet and a dual vanity master bath. You'll simply love the Winterhaven. All Ryan Homes now include WIFI-enabled garage opener and Ecobee thermostat. Closing cost assistance is available with use of Builder’s affiliated lender. DISCLAIMER: Prices, financing, promotion, and offers subject to change without notice. Offer valid on new sales only. See Community Sales and Marketing Representative for details. Promotions cannot be combined with any other offer. All uploaded photos are stock photos of this floor plan. Actual home may differ from photos.
MALTBIE REALTY GROUP, MLS W7880671
May also be listed on the Ryan Homes website
Information last verified by Jome: Today at 10:48 AM (April 21, 2026)
Home highlights
Gateway to Ocala’s top biking trails with access to wooded paths, pump tracks, and adventure in the Florida wilderness.
Book your tour. Save an average of $18,473. We'll handle the rest.
We collect exclusive builder offers, book your tours, and support you from start to housewarming.
- Confirmed tours
- Get matched & compare top deals
- Expert help, no pressure
- No added fees
Estimated value based on Jome data, T&C apply
Home details
- Property status:
- Under construction
- Collection:
- Hammock Oaks Villas
- Lot size (acres):
- 0.09
- Size:
- 1,509 sqft
- Stories:
- 1
- Beds:
- 3
- Baths:
- 2
- Garage spaces:
- 2
- Facing direction:
- Northwest
Construction details
- Builder Name:
- Ryan Homes
- Completion Date:
- October, 2026
- Year Built:
- 2026
- Roof:
- Shingle Roofing
Home features & finishes
- Construction Materials:
- StuccoWood FrameBlock
- Cooling:
- Central Air
- Flooring:
- Ceramic FlooringCarpet FlooringTile Flooring
- Foundation Details:
- Slab
- Garage/Parking:
- Door OpenerGarageAttached Garage
- Home amenities:
- ENERGY STAR CertifiedGreen Construction
- Interior Features:
- Ceiling-HighWalk-In ClosetSliding Doors
- Kitchen:
- DishwasherMicrowave OvenDisposalKitchen Range
- Lighting:
- Lighting
- Pets:
- Pets Allowed
- Property amenities:
- SidewalkIrrigationPatio
- Rooms:
- Primary Bedroom On MainPrimary Bedroom Downstairs
- Security system:
- Smoke Detector

Get a consultation with our New Homes Expert
- See how your home builds wealth
- Plan your home-buying roadmap
- Discover hidden gems
Utility information
- Heating:
- Thermostat, Central Heating
- Sewer:
- Public Sewer
- Utilities:
- HVAC
- Water source:
- Public

Community details
Hammock Oaks
by Ryan Homes, Lady Lake, FL
- 6 homes
- 6 plans
- 1,509 - 3,006 sqft
View Hammock Oaks details
Community amenities
- Dog Park
More homes in Hammock Oaks
- Home at address 1271 Turtle Island Rd, Lady Lake, FL 32159

Home
Hammock Oaks Villas
$252,990
- 3 bd
- 2 ba
- 1,509 sqft
1271 Turtle Island Rd, Lady Lake, FL 32159
- Home at address 378 Hammock Oaks Blvd, Lady Lake, FL 32159

Home
$297,990
- 3 bd
- 2 ba
- 1,549 sqft
378 Hammock Oaks Blvd, Lady Lake, FL 32159
- Home at address 454 Hammock Oaks Blvd, Lady Lake, FL 32159

Baymont
Hammock Oaks Single-Family
$314,990
- 3 bd
- 2 ba
- 2,021 sqft
454 Hammock Oaks Blvd, Lady Lake, FL 32159
- Home at address 423 Hammock Oaks Blvd, Lady Lake, FL 32159

Home
$368,990
- 3 bd
- 2.5 ba
- 2,748 sqft
423 Hammock Oaks Blvd, Lady Lake, FL 32159
- Home at address 290 Prickly Pear Ct, Lady Lake, FL 32159

Hadley Bay
Hammock Oaks Single-Family
$380,990
- 4 bd
- 2.5 ba
- 2,797 sqft
290 Prickly Pear Ct, Lady Lake, FL 32159
Floor plans in Hammock Oaks
About the builder - Ryan Homes
Neighborhood
Home address
Schools in Lake County School District
- Grades 02-12Privateheritage christian academy1.2 mi432 county road 466na
GreatSchools’ Summary Rating calculation is based on 4 of the school’s themed ratings, including test scores, student/academic progress, college readiness, and equity. This information should only be used as a reference. Jome is not affiliated with GreatSchools and does not endorse or guarantee this information. Please reach out to schools directly to verify all information and enrollment eligibility. Data provided by GreatSchools.org © 2025
Places of interest
Getting around
Air quality
Noise level
A Soundscore™ rating is a number between 50 (very loud) and 100 (very quiet) that tells you how loud a location is due to environmental noise.

Considering this home?
Our expert will guide your tour, in-person or virtual
Need more information?
Text or call (888) 545-5198
Financials
Estimated monthly payment
Let us help you find your dream home
How many bedrooms are you looking for?
Similar homes nearby
Recently added communities in this area
Nearby communities in Lady Lake
New homes in nearby cities
More New Homes in Lady Lake, FL
MALTBIE REALTY GROUP, MLS W7880671
Based on information submitted to the MLS GRID as of 10/21/2024 2:31 PM CDT. All data is obtained from various sources and may not have been verified by broker or MLS GRID. Supplied Open House Information is subject to change without notice. All information should be independently reviewed and verified for accuracy. Properties may or may not be listed by the office/agent presenting the information. Some IDX listings have been excluded from this website. Properties displayed may be listed or sold by various participants in the MLS. IDX information is provided exclusively for personal, non-commercial use, and may not be used for any purpose other than to identify prospective properties consumers may be interested in purchasing. Information is deemed reliable but not guaranteed. Use of the MLS GRID Data may be subject to an end user license agreement prescribed by the Member Participant’s applicable MLS if any and as amended from time to time. The Digital Millennium Copyright Act of 1998, 17 U.S.C. § 512 (the “DMCA”) provides recourse for copyright owners who believe that material appearing on the Internet infringes their rights under U.S. copyright law. If you believe in good faith that any content or material made available in connection with our website or services infringes your copyright, you (or your agent) may send us a notice requesting that the content or material be removed, or access to it blocked. Notices must be sent in writing by email to DMCAnotice@MLSGrid.com. The DMCA requires that your notice of alleged copyright infringement include the following information: (1) description of the copyrighted work that is the subject of claimed infringement; (2) description of the alleged infringing content and information sufficient to permit us to locate the content; (3) contact information for you, including your address, telephone number and email address; (4) a statement by you that you have a good faith belief that the content in the manner complained of is not authorized by the copyright owner, or its agent, or by the operation of any law; (5) a statement by you, signed under penalty of perjury, that the information in the notification is accurate and that you have the authority to enforce the copyrights that are claimed to be infringed; and (6) a physical or electronic signature of the copyright owner or a person authorized to act on the copyright owner’s behalf. Failure to include all of the above information may result in the delay of the processing of your complaint. Listing Information presented by local MLS brokerage: NewHomesMate LLC, DBA Jome (888) 545-5198
Read moreLast checked Apr 21, 9:10 am
- Jome
- New homes search
- Florida
- Gainesville-Ocala Area
- Lake County
- Lady Lake
- Hammock Oaks
- Hammock Oaks Villas
- 1186 Turtle Island Rd, Lady Lake, FL 32159
































