














Book your tour. Save an average of $18,473. We'll handle the rest.
- Confirmed tours
- Get matched & compare top deals
- Expert help, no pressure
- No added fees
Estimated value based on Jome data, T&C apply









































- 4 bd
- 2.5 ba
- 3,065 sqft
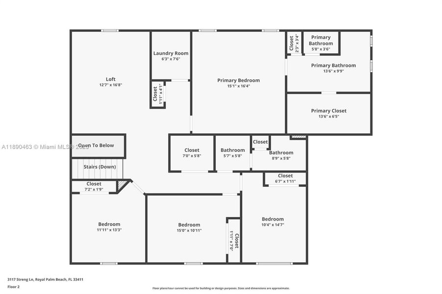
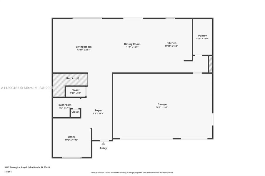
3117 Streng Ln, Royal Palm Beach, FL 33411
Why tour with Jome?
- No pressure toursTour at your own pace with no sales pressure
- Expert guidanceGet insights from our home buying experts
- Exclusive accessSee homes and deals not available elsewhere
Jome is featured in
- Single-Family
- $236.54/sqft
- $339/monthly HOA
- North facing
Home description
Stunning 4-Bedroom Home with Den, Loft & 3-Car Garage. Built in 2023 by Lennar, this beautifully designed property with complete HURRICANE IMPACT WINDOWS AND DOORS is located in a private, gated community with resort-style amenities and a low HOA. Step inside to discover a modern & sleek kitchen with quartz countertops, glass backsplash, SS appliances, and abundant cabinet space. The open-concept layout flows into the living and dining areas, enhanced by LED modern lighting and thoughtful finishes throughout. All bedrooms are generously sized with upgraded closets Community amenities include, pool, gym, clubhouse, tennis courts, children’s play area. Don’t miss this incredible opportunity to own a nearly new home with modern features and room to grow. Can easily convert into a 6 bedroom.
Compass Florida, LLC, MLS A11890463
Information last verified by Jome: Today at 12:05 AM (December 27, 2025)
Home highlights
Book your tour. Save an average of $18,473. We'll handle the rest.
We collect exclusive builder offers, book your tours, and support you from start to housewarming.
- Confirmed tours
- Get matched & compare top deals
- Expert help, no pressure
- No added fees
Estimated value based on Jome data, T&C apply
Home details
- Property status:
- Pending/Under contract
- Lot size (acres):
- 0.25
- Size:
- 3,065 sqft
- Stories:
- 2
- Beds:
- 4
- Baths:
- 2
- Half baths:
- 1
- Garage spaces:
- 3
- Facing direction:
- North
Construction details
- Year Built:
- 2023
Home features & finishes
- Appliances:
- Ice Maker
- Cooling:
- Central Air
- Flooring:
- Carpet FlooringTile Flooring
- Garage/Parking:
- GarageAttached Garage
- Interior Features:
- Walk-In ClosetFoyerPantryLibraryBlindsStorageLoftDouble Vanity
- Kitchen:
- DishwasherMicrowave OvenRefrigeratorDisposalSelf Cleaning OvenKitchen Range
- Laundry facilities:
- DryerWasherUtility/Laundry Room
- Lighting:
- Exterior Lighting
- Property amenities:
- CabinetsPatio
- Rooms:
- KitchenDen RoomOffice/StudyBreakfast AreaPrimary Bedroom Upstairs
Utility information
- Heating:
- Water Heater, Central Heating
Community amenities
- Fitness Center/Exercise Area
- Club House
- Tennis Courts
- Gated Community
- Community Pool
- Garden View
- Fully Maintained Lawns
Neighborhood
Home address
- City:
- Royal Palm Beach
- County:
- Palm Beach
- Zip Code:
- 33411
Schools in Palm Beach County School District
- Grades PK-08Privatenoahs ark academy2.7 mi14563 okeechobee blvdna
GreatSchools’ Summary Rating calculation is based on 4 of the school’s themed ratings, including test scores, student/academic progress, college readiness, and equity. This information should only be used as a reference. Jome is not affiliated with GreatSchools and does not endorse or guarantee this information. Please reach out to schools directly to verify all information and enrollment eligibility. Data provided by GreatSchools.org © 2025
Places of interest
Getting around
Air quality
Natural hazards risk
Climate hazards can impact homes and communities, with risks varying by location. These scores reflect the potential impact of natural disasters and climate-related risks on Palm Beach County
Provided by FEMA

Considering this home?
Our expert will guide your tour, in-person or virtual
Need more information?
Text or call (888) 486-2818
Financials
Similar homes nearby
Recently added communities in this area
Nearby communities in Royal Palm Beach
New homes in nearby cities
More New Homes in Royal Palm Beach, FL
Compass Florida, LLC, MLS A11890463
IDX information is provided exclusively for personal, non-commercial use, and may not be used for any purpose other than to identify prospective properties consumers may be interested in purchasing. Information is deemed reliable but not guaranteed.
Read moreLast checked Dec 27, 6:20 pm
- Jome
- New homes search
- Florida
- Miami Metropolitan Area
- Palm Beach County
- Royal Palm Beach
- 3117 Streng Ln, Royal Palm Beach, FL 33411



























