





































- 4 bd
- 3.5 ba
- 2,254 sqft
13663 Sw 158Th Ave, Miami, FL 33196
- Townhouse
- $297.25/sqft
- $137/monthly HOA
- 224 days on Jome
New Homes for Sale Near 13663 Sw 158Th Ave, Miami, FL 33196
About this Home
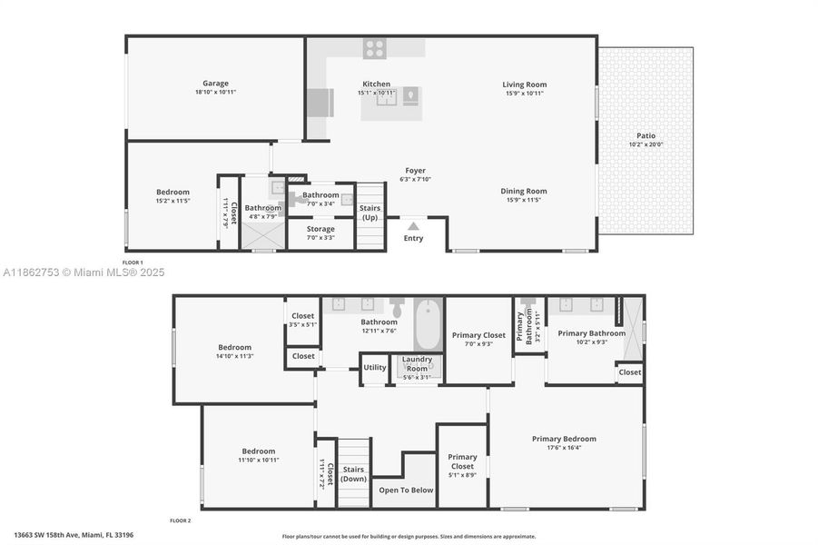
Like-new, spacious corner townhome in Century Gardens South. Built in 2023, it features 24” x 24” porcelain tile floors downstairs, laminate upstairs, European-style cabinetry, quartz countertops with matching backsplash, impact windows and doors, upgraded staircase railings, and exterior lighting. With six extra windows, this rare corner unit lives like a single-family home enjoying ample natural light. The floor plan includes one bedroom with en-suite bath on the ground level, ideal for guests or multigenerational living. Upstairs, the generous primary suite is joined by two additional bedrooms, a full bath, and laundry area. The fenced backyard is perfect for entertaining with a new paver patio, pergola, and low-maintenance turf. Low HOA and convenient location just west of Kendall.
Coldwell Banker Realty, MLS A11862753
Information last verified by Jome: Today at 12:03 AM (April 1, 2026)
Home details
- Property status:
- Sold
- Size:
- 2,254 sqft
- Stories:
- 2
- Beds:
- 4
- Baths:
- 3
- Half baths:
- 1
- Garage spaces:
- 1
Home features & finishes
- Garage/Parking:
- Door OpenerGarage
- Interior Features:
- Walk-In ClosetDouble Vanity
- Kitchen:
- DishwasherRefrigeratorDisposalKitchen Range
- Laundry facilities:
- DryerWasher
- Property amenities:
- Patio
- Rooms:
- Primary Bedroom Upstairs
Utility information
- Heating:
- Electric Heating, Water Heater
Neighborhood
Home address
- City:
- Miami
- County:
- Miami-Dade
- Zip Code:
- 33196
Schools in Dade County School District
- Grades 07-12Privatethird world education inc.0.8 mi15041 sw 141st lnna
GreatSchools’ Summary Rating calculation is based on 4 of the school’s themed ratings, including test scores, student/academic progress, college readiness, and equity. This information should only be used as a reference. Jome is not affiliated with GreatSchools and does not endorse or guarantee this information. Please reach out to schools directly to verify all information and enrollment eligibility. Data provided by GreatSchools.org © 2025
Places of interest
Natural hazards risk
Provided by FEMA
Financials
Nearby communities in Miami
Homes in Miami Neighborhoods
Recently added communities in this area
Other Builders in Miami, FL
Nearby sold homes
New homes in nearby cities
More New Homes in Miami, FL
Coldwell Banker Realty, MLS A11862753
IDX information is provided exclusively for personal, non-commercial use, and may not be used for any purpose other than to identify prospective properties consumers may be interested in purchasing. Information is deemed reliable but not guaranteed.
Read moreLast checked Apr 1, 12:20 pm
- Jome
- New homes search
- Florida
- Miami Metropolitan Area
- Miami-Dade County
- Miami
- 13663 Sw 158Th Ave, Miami, FL 33196














































