














Book your tour. Save an average of $18,473. We'll handle the rest.
- Confirmed tours
- Get matched & compare top deals
- Expert help, no pressure
- No added fees
Estimated value based on Jome data, T&C apply





























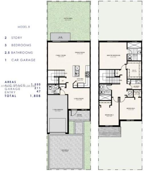
- 3 bd
- 2.5 ba
- 1,558 sqft
19114 Sw 345Th Ter, Unit 19114, Florida City, FL 33034
Why tour with Jome?
- No pressure toursTour at your own pace with no sales pressure
- Expert guidanceGet insights from our home buying experts
- Exclusive accessSee homes and deals not available elsewhere
Jome is featured in
- Townhouse
- Quick move-in
- $262.13/sqft
- $101/monthly HOA
Home description
New construction townhouse 2024 in Florida City, ideal for homeowners or investors. 3 bed / 2.5 bath, layout with no carpet: ceramic tile downstairs and modern laminate upstairs. Contemporary kitchen with clean lines and quality finishes. All impact windows. Includes garage, driveway, and private backyard. Low HOA $101/month. Located in a growing area with future appreciation potential. Vacant and easy to show. Seller is offering assistance toward buyer’s closing costs. An additional property is available in the same community-lower price. NO builder fee.
Keller Williams Capital Realty, MLS A11845564
May also be listed on the Century Homebuilders Group website
Information last verified by Jome: Today at 12:20 AM (December 7, 2025)
Home highlights
Homestead Air Reserve Base anchors a stable community with top-rated schools and diverse career opportunities.
Book your tour. Save an average of $18,473. We'll handle the rest.
We collect exclusive builder offers, book your tours, and support you from start to housewarming.
- Confirmed tours
- Get matched & compare top deals
- Expert help, no pressure
- No added fees
Estimated value based on Jome data, T&C apply
Home details
- Property status:
- Move-in ready
- Size:
- 1,558 sqft
- Stories:
- 2
- Beds:
- 3
- Baths:
- 2
- Half baths:
- 1
- Garage spaces:
- 1
Construction details
- Builder Name:
- Century Homebuilders Group
- Year Built:
- 2024
Home features & finishes
- Cooling:
- Central Air
- Flooring:
- Ceramic Flooring
- Garage/Parking:
- GarageAttached Garage
- Kitchen:
- DishwasherMicrowave OvenRefrigeratorDisposalSelf Cleaning OvenKitchen Range
- Laundry facilities:
- DryerWasher
- Property amenities:
- Patio
- Rooms:
- KitchenDining RoomLiving RoomBreakfast AreaPrimary Bedroom Upstairs
- Security system:
- Smoke Detector
Utility information
- Heating:
- Central Heating
About the builder - Century Homebuilders Group
Neighborhood
Home address
- City:
- Florida City
- County:
- Miami-Dade
- Zip Code:
- 33034
Schools in Dade County School District
GreatSchools’ Summary Rating calculation is based on 4 of the school’s themed ratings, including test scores, student/academic progress, college readiness, and equity. This information should only be used as a reference. Jome is not affiliated with GreatSchools and does not endorse or guarantee this information. Please reach out to schools directly to verify all information and enrollment eligibility. Data provided by GreatSchools.org © 2025
Places of interest
Getting around
Noise level
A Soundscore™ rating is a number between 50 (very loud) and 100 (very quiet) that tells you how loud a location is due to environmental noise.
Natural hazards risk
Climate hazards can impact homes and communities, with risks varying by location. These scores reflect the potential impact of natural disasters and climate-related risks on Miami-Dade County
Provided by FEMA

Considering this home?
Our expert will guide your tour, in-person or virtual
Need more information?
Text or call (888) 486-2818
Financials
Similar homes nearby
Recently added communities in this area
Nearby communities in Florida City
New homes in nearby cities
More New Homes in Florida City, FL
Keller Williams Capital Realty, MLS A11845564
IDX information is provided exclusively for personal, non-commercial use, and may not be used for any purpose other than to identify prospective properties consumers may be interested in purchasing. Information is deemed reliable but not guaranteed.
Read moreLast checked Dec 7, 12:20 pm
- Home
- New homes
- Florida
- Miami Metropolitan Area
- Miami-Dade County
- Florida City
- 19114 Sw 345Th Ter, Unit 19114, Florida City, FL 33034

























